Главная Юзердоски Каталог Трекер NSFW Настройки

Конец света

Ответить в тред Ответить в тред
Check this out!
<<
Назад | Вниз | Каталог | Обновить | Автообновление | 411 70 189
ПЕЧНОЕ Аноним Пнд 23 Июн 2014 15:16:00 126034 1
26Кб, 350x332
350x332

Сначала хотел поговорить про печное в треде о бичевальне,но подумав решил что этот интимный для жилища вопрос стоит обсудить в отдельном треде.
Бичевальню надо обогревать - без обогрева в ней можно замерзнуть.К.О. Традиционная печь мня мало привлекает, ибо сложна в строительстве : нужен кирпичь, дверки, колосники, и умение.
На днях наткнулся в инторнетах на печь-ракету (rocket stove), вот ссылка на вику, для общего ознакомления:
http://en.wikipedia.org/wiki/Rocket_stove русской нет.
Ну и так пошарьтесь в гуголе.
Что меня удивило - ей не нужна труба для создания тяги - на ютубе есть видео в котором показана такая печь и там дымовой охвосток трубы ниже загрузочного отверстия и дым спокойно выходит, а не чадит .
На другом видео показано как работает такая печь(открытого типа) в закрытом помещении , виден огонь в топке и помещение без дыма.
Чем меня и привлекло - если соорудить такую небольшенькую печку из говна и палок, то она будет как газовая плита - можно ставить хоть в палатке и не заморачиваться трубой.
Второй плюс - нет демаскировки бичевальни - дыма то нет.
Сразу упреждаю вопрос про противоречие : одна не дымит, вторая дымит - там кароч еще регулировка влияет, соотношение частей.

Я малость озадачился: как печь может работать без трубы.
Потом меня осенило : это же твердотопливный
мееедленный пульсирующий прямоточный реактивный двигатель.
Вот ссылка про движок http://www.popmech.ru/master-class/14456-reaktivnyy-dvigatel-svoimi-rukami/
там и схема - перевернутая на 90 градусов печка.
Пока у меня все, подумаю и напишу еще чего.

Аноним Пнд 23 Июн 2014 15:33:05 126035 2

Обратите внимание на взаиморасположение загрузочного окна и дымового охвостья.
Почему дым вообще идет? Предполагаю из-за длинного промежутка м/у загрузочным окном и баллоном - читал что эта промежность должна быть поменьше. Похоже что сгорание в этой(на видео) печи неполное.

Аноним Пнд 23 Июн 2014 15:41:34 126036 3

Это тоже реактивная печь, но без колпака. Обращаем внимание:
Топят щепками.
Топят в помещении.
Дыма почти нет.
То есть эта печка как газовая печь - не дымит и не чадит.
И изготовить такую можно из чего угодно негорючего: жестяные банки, глина, песок в разных комбинациях - смотря что под рукой.
Предположу, что подобную самоделку можно поставить в закрытом помещении и глаза не будут слезиться. Главное воздух к ней подвести - чтоб не задохнуться или не отравиться угарным газом.

Аноним Пнд 23 Июн 2014 15:47:40 126037 4
Аноним Пнд 23 Июн 2014 15:52:28 126038 5

>>126034
наверно годнота, но я ужэ делаю камин со сменной бочкой.
хотя можно с трубой поэксперементировать

Аноним Пнд 23 Июн 2014 16:14:18 126040 6

>>126038
Сделай в дополнение и такую - там делов то всего ничего, и материалы хоть с помойки.
>>126036
Что-то сразу внимания не обратил: вскипятили 0,5 литров воды за 3 минуты.
Удельная теплота парообразования воды 2256 кДж/кг
Удельная теплоемкость воды 4, 19 кДж/(кг*К)
Тотесть для нагрева с 20 до 100 одного кг воды требуется 80*4,19*1= 320 кДж энергии плюс 2256 для кипения =2576 кДж. На поллитра 1250 кДж.
3мин=180 сек, то есть мощность печи 1250кДж/180сек=7 кВт.

Аноним Пнд 23 Июн 2014 18:16:58 126044 7

>>126034
Неплохо, НО
1. выходная труба всё равно необходима и имеет даже больше ограничений чем обычная, т.к. тяги вырабатываемой вертикальным кожухом должно быть достаточно чтобы компенсировать неоптимальный выход трубы, иначе не взлетит.
2. про бездымность ты поторопился, это зависит от топлива итд как любой другой печи
Вот что действительно хорошо, так это отнесение открытого огня вдаль от на верху кожуха.
>Потом меня осенило : это же твердотопливный
мееедленный пульсирующий прямоточный реактивный двигатель.
Нет, она не пульсирует вообще, тяга создаётся за счёт теплообмена со стенками кожуха, давление постоянно, а в ПуВРД за счёт разности давлений между фазами цикла и кинетической энергии рабочего тела, это совершенно разные с физической точки зрения процессы.

Аноним Пнд 23 Июн 2014 23:09:25 126054 8

Получается, чтобы была тяга нужно охлаждать эту бочку на трубе и все норм будет?

Аноним Втр 24 Июн 2014 02:06:50 126062 9

>>126054
Чтобы была тяга нужна хорошая теплоизоляция внутренней трубы(та что под бочкой) - в первом видео изоляция это наружный баллон,по которому движутся горячие газы.
Во втором видео - опять же изоляцией служит воздух между трубой и баллоном, хотя по канону положено насыпать сыпучий теплоизолятор: перлит, вермикулит, минвату- кароч то что изолирует,но не горит.
На тубе есть другие видео , где показана такая печь и там видно что зазор между наружной и внутренней засыпан. Я имею ввиду открытце печи - как на видео >>126036

Теплоизоляция нужна для того чтоб происходило сгорание продуктов пиролиза древесины - для этого процесса нужна высокая температура. Если температура недостаточная, то получается обычная печь, а недожженные вещества улетают в виде дыма.

>>126044
>про бездымность ты поторопился, это зависит от топлива итд как любой другой печи
Ну не знаю - на видео же видно, что мужики не кашляют и глаза не трут, а жгли они сухую полынь. А как ты не суши полынь(да что угодно) - будет дым и чем больше горючего тем больше дыма. Да сигареты возьми - пиздюлька тоньше мизинца, а способна напускать дыма как коптильня. А на видео сожжено травы как из нескольких пачек сигарет.

>Вот что действительно хорошо, так это отнесение открытого огня вдаль от на верху кожуха.
Есль печь открытая, как на видео с зеленым баллоном то открытого огня не будет, а тепловое излучение будет. Так что я думают,если печь в горючем помещении(шалаш из сена) то лучше на верх поставить что-то : котелок с водой, сковородку, камень. Тут тебе и убережение от излучения и аккумулятор тепла.

>1. выходная труба всё равно необходима и имеет даже больше ограничений чем обычная, т.к. тяги вырабатываемой вертикальным кожухом должно быть достаточно чтобы компенсировать неоптимальный выход трубы, иначе не
Не уловил. Труба в печи с колпаком(верхнее видео) нужна не для тяги, а чтоб дым(если сгорание полное) , пар и углекислый не стелились по полу. Обрати внимание как выходит дым - он еле стелится, а не столбом вверх.
Как я еще понял у горизонтальной трубы желательно делать не подьем, а уклон вниз- шоб вода не потекла в печь, а капала наружу. Можно, конечно изолировать трубу чтоб пар конденсировался снаружи, но таким образом тепло оттрубы тоже будет уходить наружу.

>тяга создаётся за счёт теплообмена со стенками кожуха,
Нет, не так:
A vertical chimney above the combustion chamber to provide the updraft needed to maintain combustion
Вертикальная труба над камерой сгорания, чтобы обеспечить восходящий поток необходим для поддержания горения

А камера сгорания это внутренний край загрузочного окна:
Combustion chamber: At the end of the fuel magazine, where the fuel burns
Камера сгорания: В конце топливного складилища , где сгорает топливо

Аноним Втр 24 Июн 2014 02:54:18 126067 10

>>126062
>Ну не знаю - на видео же видно, что мужики не кашляют и глаза не трут, а жгли они сухую полынь.
со вторым видео хз, конструкцию печи он не показали, про полынь ни слова и чето оно не очень похоже на штуку из оппоста, например почему огонь наверх ебашит?
>Да сигареты возьми - пиздюлька тоньше мизинца, а способна напускать дыма как коптильня
потому что низкотемпературная, тлеть что угодно может с такими спецэффектами.
>Есль печь открытая, как на видео с зеленым баллоном то открытого огня не будет
ну ахуеть теперь, а на видео под миской у них что тогда??
>Тут тебе и убережение от излучения
а зачем от него уберегать, ты о чем вообще?
>Не уловил. Труба в печи с колпаком(верхнее видео) нужна не для тяги, а чтоб дым(если сгорание полное) , пар и углекислый не стелились по полу.
лол, а продуваться оно у тебя в параллельную вселенную будет? Я же и говорю, выходная труба не для тяги, тягу должен перепад на кожухе создавать.
>Нет, не так: Вертикальная труба над камерой сгорания, чтобы обеспечить восходящий поток необходим
И что тебе не нравится? это же только подтверждает мои слова.

Аноним Втр 24 Июн 2014 03:30:09 126069 11

>>126067
>конструкцию печи он не показали, про полынь ни слова
Ты видео не смотрел. А почему?
Про остальное спорит просто лень.

Аноним Втр 24 Июн 2014 07:15:57 126073 12

>>126069
а, ясно ясно, идите лесом.
перешел на твой уровень аргументации, надеюсь ты всё понял

Аноним Втр 24 Июн 2014 22:18:50 126107 13

>>126062
Видео видел. Если печь столь хороша, то почему в отоплении такой конструктив нигде, кроме ютуба, не встречается? Можешь подробнеетописать физику происходящих в этой печи процессов?

Аноним Втр 24 Июн 2014 23:59:24 126115 14
Аноним Срд 25 Июн 2014 07:22:39 126124 15

>>126115
Так ведь в выборке в основном тупые пиндосы. А видосики из мест, где действительно холодно нужно еще поискать.

Аноним Срд 25 Июн 2014 09:47:13 126125 16

>>126124
>А видосики из мест, где действительно холодно нужно еще поискать.
На дваче не принято читать чуже посты.
>The principles were described by Dr. Larry Winiarski from Aprovecho in 1982 and stoves based on this design won Ashden Awards in both 2005 and 2006. Interest in rocket stoves has led to the development of rocket mass heaters and other innovations.

Эту печку изобрели всего 30 лет назад, изобрели в Штатах.
Вот с чего ей быть распространенной в сибирях-якутиях?
Ты слышал . чтоб с Штатах самовар массово юзали? А ведь самовару уже несколько веков.

Аноним Срд 25 Июн 2014 14:46:34 126133 17

>>126125
Да ладно тебе, я ватник и тупая пидарашка, в ангельский не очень шарю, потому пропустить мог, но вот имя из твоей цитаты загуглю сейчас. Но если якуты, сибирцы, норвежцы, те же британцы, в общем люди, у кого мало дров и климат располагает к обогреву могли же искать разные варианты печей и могли бы дойти до такой конструкции эмпирически, может быть у неё есть фатальные недостатки, делающие её непригодной?

Аноним Срд 25 Июн 2014 17:17:19 126140 18

Как оттуда продукт горения вышкребать, угольки там всякие, зубы?

Аноним Срд 25 Июн 2014 18:32:52 126144 19

>>126133
>могли же искать разные варианты печей и могли бы дойти до такой конструкции эмпирически
Она ОЧЕНЬ неочевидна. У обычной печи дым уходит вверх, это интуитивно. А тут надо заставить ходить воздух через кривой кувшин.
Да и зачем, существенных преимуществ перед обычной печью у неё нет.
>может быть у неё есть фатальные недостатки, делающие её непригодной?
Так попробуй.
А вообще, штаты это не только субтропический техас, зимой жопу и там отморозить можно.
>>126140
либо окно загрузки делать не очень кривым, либо задвижку встроить дополнительную.

Аноним Чтв 26 Июн 2014 02:26:46 126152 20

че изобрели то? железки ваши прогорят нахуй, дым из обычной печки идет только во время растопки, кирпич всю ночь будет греть - в буржуйку только подкидывай.

Аноним Чтв 26 Июн 2014 03:57:45 126155 21

>>126035
>Обратите внимание на взаиморасположение загрузочного окна и дымового охвостья.
Хуйня, сквозняком просто продувает удачно. На рабочей конструкции в доме он нормальную трубу сделал. И правильно - внутри баллона газы не могут быть холоднее наружнего воздуха, а значит опускаться вниз на выход они не будут. Значит, труба нужна.

Аноним Чтв 26 Июн 2014 04:02:42 126157 22

>>126040
>плюс 2256 для кипения
Для полного выкипания вообще-то, так что урежь осетра. Меньше киловатта мощность.

Аноним Чтв 26 Июн 2014 04:36:12 126158 23
78Кб, 680x380
680x380

>>126157
>Меньше киловатта мощность.

320кДж/180=1,78 на поллитра 0,89кВт - чуть меньше.

>>126140
>Как оттуда продукт горения вышкребать, угольки там всякие, зубы?
Пикрелейтед - primary ash pit, secondary ash pit внизу.Сбоку сделать лючок под лопатку.

>>126133
>якуты, сибирцы, норвежцы, те же британцы, в общем люди, у кого мало дров
У кого мало дров? У якутов? У сибирцев? У древних норвегов и британцев?
В Британии леса извели в 17-18 веках, когда сталь стали лить массово -но как только извели леса -тут же перешли на каменный уголь - печь не понадобилось изобретать.
Сибирцев не рассматриваю - у них жизнь на грани выживания -не до экспериментов, да и не из чего им пилить печи : ни кирпича ни листовой стали они не имели.

> могли бы дойти до такой конструкции эмпирически
Этот анон >>126144 все объяснил -неочевидно все.

Аноним Чтв 26 Июн 2014 06:37:36 126159 24
38Кб, 640x480
640x480

>>126140
>Как оттуда продукт горения вышкребать, угольки там всякие, зубы?
Спицияльна для тибя нашол картинку -релейтид
Там где в кружочиках к каторым стрелачки идут от слова тхиз. Тхиз по английски значит этот.

Аноним Чтв 26 Июн 2014 07:01:33 126160 25

Норм тема, буду делать такое в землянке.
Привлекает то, что на выходе очень мало дыма, который быстро рассеивается. Это значительно улучшает маскировочные качества землянки.

Аноним Чтв 26 Июн 2014 07:25:58 126161 26

>>126160
>на выходе очень мало дыма
Ну хз, в обычной печи такого объема тоже все прекрасно сгорит. Другое дело, что здесь насматривается автоматизация подачи топлива.

Аноним Чтв 26 Июн 2014 09:16:35 126163 27

>>126161
Обычная печ дает столб дыма. Мне он не нужен.

Аноним Чтв 26 Июн 2014 09:17:34 126164 28

>>126161
>Ну хз, в обычной печи такого объема
Анон, ну возьми охапку укропа или лаврового листа или полыни пошлогодней и сожги хотя бы на остекленном балконе.

Аноним Чтв 26 Июн 2014 09:20:21 126165 29

>>126163
>Обычная печ дает столб дыма
Кстати очень много дыма . Два раза напускал дыма полую летнюю кухню у деда - реально дальше рук не видно было.
Кароч, один раз колодцы засрались, второй раз тое с колодцами проблема - решил проверить и неплотно запер один лючок. Как из вулкана, да плотный такой - пришлось водой тушить.

Аноним Чтв 26 Июн 2014 11:16:58 126171 30

Сам изобретатель показывает что к чему .

Аноним Чтв 26 Июн 2014 11:18:05 126172 31
Аноним Чтв 26 Июн 2014 16:41:05 126179 32

>>126164
>возьми охапку укропа
Не передергивай, они бросали траву в уже разогретую печь. А момент розжига в видео мудро пропущен.
>>126165
>Кстати очень много дыма
Холодная потому что, но это верно для любой конструкции печи. Разжигать надо недымящим топливом, вплоть до жидкого или даже газом. А уже как на режим выйдет, то нормальная печь с чистым дымоходом дыметь не будет и на лаврушке.

Аноним Птн 27 Июн 2014 10:34:36 126201 33

>>126171
Что блять за хуйня на видео? Мы такие складывали и жгли от нехуй делать в детстве, а тут изобретатель нахуй. Он гвоздь-то может забить, изобретатель, блять?

Аноним Пнд 30 Июн 2014 09:03:22 126336 34

>>126034
Эта печь пригодна для переработки евреев? Какая производительность в сутки?

Аноним Пнд 30 Июн 2014 16:32:17 126349 35
8Кб, 194x259
194x259

А вот самосжигающаяся рокет-печь, лол, "паровоз", который туристы делают из подгнивших брёвен. Пикрелейтед - финнская свеча, почти то же самое.

Аноним Пнд 30 Июн 2014 20:31:51 126369 36

>>126336
за что!???? ти евгеев так ненавидишь ? евгей выебал твою маму? пойми и простии отсоси

Аноним Втр 01 Июл 2014 03:46:11 126384 37

>>126349
>А вот самосжигающаяся рокет-печь, лол, "паровоз",
В закрытом помещении ее не поюзаешь - в ней не дожигаются газы -пламя же наружи и температуры не хватает.

Аноним Втр 01 Июл 2014 05:04:29 126385 38
128Кб, 1200x799
1200x799

>>126384
Хотя тут подумал - а что если сверху- на дырку поставить керамический цилиндр? Температура над торцом плахи будет высока и всякие там угарные газы и прочее будут догорать.
Пикрелейтед.

Аноним Втр 01 Июл 2014 07:34:24 126387 39

>>126369
Nein. Я хочу узнать возможности этой МАЛЫШКИ.

Аноним Втр 01 Июл 2014 12:19:39 126402 40

>>126384
Пока не прогорит эффект турбо-зажигалки присутствует: пламя с ревом вырывается из пенька, дыма нет. Я видел сам, но не на финнской свечке(там прорези), а на полене, прогнившем в середине до состояния трубы.

Я, кстати, не совсем понимаю в чем смысл бочки в оп-пике, можно же просто загнуть трубу коленом и на этом колене греть чайник. Вообще поясните зачем этот изврат с выхлопом, расположенным ниже плинтуса?

Аноним Втр 01 Июл 2014 15:18:09 126405 41

>>126034
Лол, какая то коптильня.

Аноним Втр 01 Июл 2014 17:45:53 126413 42

>>126405
поясните за копчение?
просто в дыму подержать и не портится?

Аноним Втр 01 Июл 2014 18:55:24 126419 43

>>126413
Если коротко. Берешь металлический контейнер. Вешаешь в нем жратву. Ложишь на дно деревянные щепки, лучше конечно что-то из фруктовых деревьев, вишню какую-нибудь, например. Контейнер ставишь на огонь. Продукт подсушивается/печется, щепка нагревается, начинает дымить и пропитывает мясо веществами которые убивают бактерии и прочую гадость. Различают холодное и горячее копчение. Отличие в температуре дыма и времени обработки. Горячее копчение - это такое запекание в дыму. Средняя рыбешка коптится час-два, температура в коптилке 100-200 градусов. У самого есть маленькая коптилка, таскаю с собой на рыбалки. Весьма вкусная хавка получается. Зависимость есть, брат умер от канцерогенов, содержащихся в дыму.
Холодное - это при температуре около 50 коптить дня три. Срок хранения, как я слышал, около двух месяцев. Сам не пробовал.

Аноним Втр 01 Июл 2014 19:51:16 126434 44

>>126419
а срок хранения горячего копчения?
и чо ето за вещества из древесины? антисептик какой? при перегонке как выделить?

Аноним Втр 01 Июл 2014 21:17:44 126450 45

>>126434
Яды, пропитав хавку они выполняют функцию консерванта.

Аноним Втр 01 Июл 2014 21:53:32 126457 46
196Кб, 960x720
960x720
Аноним Втр 01 Июл 2014 22:36:15 126458 47

>>126419
>при температуре около 50
15-30 оптимально.

Аноним Срд 02 Июл 2014 02:13:34 126470 48

>>126402
>на этом колене греть чайник
Херово, почти все тепло будет выделяться в вертикальной части колена. А тут основное тепловыделение под дном бочки, оно же поверхность для готовки - экономия. И на горизонтальной поверхности можно лежак например устроить, тоже экономия.

Аноним Срд 02 Июл 2014 02:15:51 126471 49

>>126434
Креозот и деготь, очевидно.

Аноним Срд 02 Июл 2014 02:55:19 126473 50

>>126419
>Отличие в температуре дыма и времени обработки.
И в сроке хранение: горячего копчения продукты хранятся столько же сколько и просто поджаренные - несколько дней, а вот холодного копчения могут храниться месяцами.
Ну как ты и написал:
>Срок хранения, как я слышал, около двух месяцев.
>Сам не пробовал.
Так гиморно же. Нужно строить специальную коптильню под это. Емнип, самый простой вариант : сарай на полу которого разводится дымящий костер, а мясы-рыбы подвещиваются на стропилах.
Или еще делали так: если дымоходв хорошем смысле широкий -то свиную рульку подвешивали в трубу и она там висела пока не дойдет до кондиции. естественно топить только деревом и только лиственным.

>>126434
>а срок хранения горячего копчения?
Несколько дней -так же как у жареного мяса-рыбы.

>>126434
>при перегонке как выделить?
Подвесить над костром большой металлический котел с холодной водой и периодически ее менять - та дрянь что скопится на днище и есть те самые вещества.
ну или сделать длинный металлический дымоход - вещества будут конденсироваться на стенках, а ты их тряпочкой собирать.

>>126402
>Я, кстати, не совсем понимаю в чем смысл бочки в оп-пике,
Смысл простой - дополнительная теплоизоляция внтуреннего цилиндра - воздух плохо проводит тепло. А процесс сгорания во внутреннем цилиндр тем полнее - чем выше температура, а температура тем выше чем лучше изоляция.
Плюс закрытая печь с бочкой служит для обогрева помещения - функция приготовления пищи - побочная. И бочка это теплообменник для нагрева воздуха - у не площать поверхности под 1,5 кв. метра.

А сделав колено ты тем самым ухудшишь теплоизоляцию рабочей части -температура в ней снизится и эффективность сгорания упадет. Можно конечно сделать толще стенки рабочей трубы, НО в таком разе в помещщение будет попадать меньше тепла.

>Вообще поясните зачем этот изврат с выхлопом, расположенным ниже плинтуса?
Во-первых, ПРОСТ. Так уж получилось - какой смысл ставить бочку и отводит газы от верхней ее части?
Во-вторых, почему не? Если газы ничего не имеют против сходить вниз, то почему бы не воспользоваться этим? тяга развивается не за счет наружной трубы как у обычных печей, а за счет внутренней трубы-топки.
В-третьих, дымоход внизу способствует большей эффективности прогрева помещения - нагреты от него воздух стремится вверх и образуются конвекционые потоки от пола и до потолка. если сделать дымоход сразу вверх то потоки будут образовываться от дымохода и до потолка, но большая часть воздуха в помещении не будут вовлечена в этот круговорот - дымоход же почти под потолком. И за счет дымохода прогреется только слой воздуха у потолка.

Аноним Срд 02 Июл 2014 02:59:13 126474 51
83Кб, 700x332
700x332

>>126470
> И на горизонтальной поверхности можно лежак например устроить
Лежак устраивают над дымоходом, делают его массивным, с толстыми стенками - чтоб он копил тепло и отдавал его.
Пикрелейтед тут >>126159 . Вот те пеплочистные лючки, выделенные красным располагаются у начала и конца лежака.
Во еще один пикрелейтед - глиняный диван справа от бочки и есть лежак над дымоходом

Аноним Срд 02 Июл 2014 03:02:19 126475 52

>>126474
>Во еще один пикрелейтед
Хотя честно меня малость раздражают эти зализанные формы, мне больше нравятся рубленные, как у современных стелс-эсминцев.
Во-первых площадь поверхности больше.
Во-вторых, на горизонтальные площадки можно что-нибудь поставить

Аноним Срд 02 Июл 2014 10:23:39 126504 53

>>126474
>Лежак устраивают над дымоходом
Ну да, я его и имел ввиду. Вообще конструкция-то интересная, но мне кажется, что с растопкой могут быть проблемы, пока тяги еще нет.

Аноним Срд 02 Июл 2014 10:50:01 126507 54

>>126471
крезот - очищенный дёготь? крезот попизжэ будет для здоровья
как нащщет фильтра при копчении? а использованный фильтр - такойто топливный брикет

Аноним Срд 02 Июл 2014 13:31:16 126522 55

>>126473
Спасибо, годно пояснил. Я упустил, что нужно греть трубу для полного сгорания.

Аноним Срд 02 Июл 2014 15:20:55 126537 56

>>126504
>но мне кажется, что с растопкой могут быть проблемы, пока тяги еще нет.
михаил_пореченков.жпг - у дядьки на видео вроде не наблюдается проблем с тягой.

>>126522
>Я упустил, что нужно греть трубу для полного сгорания
Не то что бы греть - не давать теплу уходить до того как все окислится кислородом, чтоб на выходе только вода и углекислый газ. А каким образом тепло удерживается то второстепенно - толстыми ли стенками трубы или слоем воздуха с высокой температурой.
Например, печь только для готовки, то есть когда труба открыта сверху , нужно очень хорошо теплоизолировать - так чтобы в трубе температура была около 1000.
Но готовить лучше или под вытяжкой или на улице. Ибо углекислый газ.
Представим грубо что горит древесный уголь, то есть С(углерод) и образуется СО2. Из 12 грамм углерода получается 44 грамма углекислого. Из 120г-440г,из 1200г-4400 г.
То есть грубо(очень грубо): из кило дров образуется 4 кг углекислого.
В воздухе 0,03% СО2, не помню правда обьемных илипо масае но не суть.
Положим помещение 3м на 3м на 2м , обьем 18 куб.м. плотность воздуха 1,2кг/куб.м, то есть в помещении 22 кг воздуха(4,4 кг кислорода)
А кило дров обратится в 4 кг углекислого, при этом свяжутся(в молекулах углекислого) 3,6 кг кислорода. То есть имеем :
в худшем случае - убыль 3,6 кгткислорода и прибыль3,6 кг углекислого, которого будет 20-25% (лень считать) вместо 0,03% при смертельной концентрации 12% емнип.
На самом деле такого не будет - с падение содержания кислорода в воздухе, а соответственно и в горючей смеси окисление остановится на стадии СО(угарный газ), а он еще опасней, например.
Ну или второй вариант - к поддувалу печи есть подвод забортного воздуха- и те 3,6 кг кислорода поступят извне. В таком разе из жерла печи будет вылетать углекислый, охлаждаться об потолок, стены и стекать вниз, накапливаясь у пола. И может так сложиться что высота слоя углекислого поднимется до например уровня постели. И если концентрация,будет выше 12% то можно прилечь и не встать - ибо сознание потеряется мигом. На Камчатке есть такие долины смерти, где углекислый стелется понизу и низкорослые животные зайдя туда так и не выходят. Примерно тоже самое может поизойти в бичовне,если ТБ не блюсти.

Аноним Срд 02 Июл 2014 15:27:53 126539 57

>>126537
упс, упустил. Упрощение "дрова=углерод" очень грубое, ибо кроме углерода в целлюлозе еще и кислород и вода.
Навскидку соотношение С-Н-О 72-12-80, то есть углерода около 45% то есть из кило дров выйдет 1,6 кг углекислого.
Но таки пренебрегать ТБ не стоит 1,6 кг из 22 кг воздуха это больше 7% - тоже мало полезного и голова таки будет болеть.

Аноним Срд 02 Июл 2014 15:29:11 126540 58

>>126539
>кислород и водород
естественно.

Аноним Срд 02 Июл 2014 18:27:40 126547 59
292Кб, 900x674
900x674
Аноним Чтв 03 Июл 2014 03:15:44 126592 60

>>126547
Мне то за что - не я химию придумал. А вообще приятно - продолжай

Аноним Птн 04 Июл 2014 07:21:06 126666 61

>>126537
>у дядьки на видео вроде не наблюдается проблем с тягой.
Дядька этими печками торгует, так что он вполне мог перед съемкой протопить. Алсо со своим кольцом для дров он тот еще вредитель и враг народа - после того как палки опустятся ниже края кольца, они весело разлетятся веером по полу, а ведь нижний конец у них горящий! Трубу надо водосточную и уголь в нее сыпать.
>Положим помещение 3м на 3м на 2м , обьем 18 куб.м.
>кило дров обратится в 4 кг углекислого
Ты зачем сжег в чулане кило угля, это же 31 МДж тепла, там температура воздуха 1400 градусов будет. Да даже в изолирующем противогазе чтобы поглотить такое количество тепла, анону придется потерять с потом 14 литров воды, чего он сделать не сможет из-за стопроцентной влажности и помрет от теплового удара. Не забывай, что для вентиляции человеку необходимо 50 куб.м. воздуха в час, иначе он и без всякого огня собственным выдохом задохнется. А вообще подход твой правильный, сфероконей в вакууме всегда надо прикидывать

Аноним Птн 04 Июл 2014 11:11:04 126671 62

>>126666
>Алсо со своим кольцом для дров он тот еще вредитель и враг народа - после того как палки опустятся ниже края кольца, они весело разлетятся веером по полу, а ведь нижний конец у них горящий!

И это уже не говоря о том, что заготавливать такие палочки куда сложнее обычных поленьев.

Аноним Птн 04 Июл 2014 12:17:44 126674 63

Пацаны, такой вопрос назрел.
На слишком ли сильная получается тяга у этой ебалы? Топливо сгорает с огромной температурой и теплообменник (бочка) не успевает все тепло передать в помещение, оно вылетает в трубу. Массивный лежак над дымоходом спасает ситуацию?
Вообще идея понравилась тем что можно сделать печку в доме на 2 комнаты - бочка для готовки еды стоит на кухне, а дымоход с лежаком выходит в смежную комнату через стену. Ну и конечно идея автоматизации пиздатая, можно сделать бункер побольше, насыпать в него пеллет и кайфовать.
Загорелся идеей построить такую у себя в частном доме.

Аноним Птн 04 Июл 2014 12:31:54 126675 64

>>126674
Много тяги не бывает. Хочешь уменьшить огонь - перекрой частично впуск воздуха заслонкой, на машине не ездил, что ли?

Аноним Птн 04 Июл 2014 12:42:51 126676 65

>>126675
Если перекрыть воздух, то вся реактивность пропадет. Здесь фишка как раз в том, что подается много воздуха, за счет этого обеспечивается полное сгорание топлива. Перекроешь подачу воздуха - НЕДОЖИГ НЕДОЖИГ КЛАДБИЩЕ ПИДОР. Получится обычная дымящая печка. Наверное поэтому и не прижилась такая конструкция в холодных лесных странах. Во всяких степях и прериях можно топиться ветками кустарника, и тепла будет достаточно и сгорание полное. В холоде же ветками уже не потопишь (или придется постоянно подкидывать ветки, не отходя от печки), а большие поленья либо не будут сгорать либо много тепла будет уходить в трубу.
Мне кажется идеальным топливом для такой печи являются пеллеты - они достаточно мелкие чтобы успевать сгорать и можно сравнительно просто организовать их автоматическую подачу в зону горения.

Аноним Суб 05 Июл 2014 05:28:28 126718 66

>>126676
>подается много воздуха, за счет этого обеспечивается полное сгорание топлива.
Ерунда. Пиролиз происходит на самом входе, а дальше в высокотемпературной зоне, то есть во внутренней трубе бочки, все прекрасно догорает. Она поэтому огнеупорным кирпичом и выложена. То есть фишек у этой печи несколько - гравитационная подача топлива, компактное быстроразогревающееся высокотемпературное ядро, эффективная варочная поверхность, низкая материалоемкость.
>обычная дымящая печка
Еще раз - обычная печка не дымит, если прогрелась. Дым это туманообразные продукты возгонки древесины, не успевшие прореагировать с кислородом воздуха из-за быстрого покидания горячей зоны.

Аноним Суб 05 Июл 2014 10:44:11 126727 67

>>126718
аноны, а если дерево покрасить серебрянкой, это улучшит его противопожарные характиристики?

Аноним Суб 05 Июл 2014 11:29:18 126729 68

>>126727
>а если дерево покрасить серебрянкой, это улучшит его противопожар
Вряд ли - краску делают на основе горючих лаков: ПФ, нитро-, а эти пыхнут еще сильнее дерева.
Что задумал то?

Аноним Суб 05 Июл 2014 12:20:56 126735 69

>>126729
да чет палевно каркас стен над камином ставить
хуй с фотками из треда про землянку

Аноним Суб 05 Июл 2014 12:48:12 126740 70

>>126735
Каркас планируешь в плотную к камину? Сделай разделительный слой из глины.
Или ты вообще боишься ,что на палку каркаса попадет искра и все пыхнет? Это вряд ли.

Аноним Суб 05 Июл 2014 12:52:09 126741 71

>>126735
Как я понял, ты планируешь что то типа юрты: каркас, а сверху пупырчатый полиэтилен? Ну у кочевников не всегда были буржуйки в юртах, а каркас тоже деревянный. И не парились.
>>126740 -анон

Аноним Суб 05 Июл 2014 15:49:55 126753 72

>>126741
нет не вплотную,около метра ближнии.
я прост думал апгрейдить до кузни, а там температура больше
алсо, надо ставить цементно стружэчную плиту богов

Аноним Суб 05 Июл 2014 16:03:27 126754 73

>>126753
>я прост думал апгрейдить до кузни, а там температура больше
Там как бэ и не камин нужен, а горн, а в горне пламя вверх и искры. Лучше, конечно что-то негорючее.

Аноним Вск 06 Июл 2014 20:36:23 126801 74
116Кб, 640x480
640x480

>>126754
>а горн
сорта гомна печей
наверн буду несколько листов металла делать вокруг

Аноним Пнд 07 Июл 2014 12:18:58 126824 75

>>126718
>Ерунда. Пиролиз происходит на самом входе, а дальше в высокотемпературной зоне, то есть во внутренней трубе бочки, все прекрасно догорает.

А высокая температура там по твоему откуда берется? Именно из-за повышенной подачи воздуха. Перекрывая воздух, мы превращаем ракетную печь в обычную буржуйку.

Аноним Пнд 07 Июл 2014 12:37:02 126825 76

>>126824
Высокая температура берется из-за малых размеров ядра и теплоизоляции в виде кирпичей во внутренней трубе. Никакой повышенной подачи воздуха у ракеты нет, у буржуйки с такой же трубой будет такая же тяга. Потому что тягу создает труба посредством архимедовой силы, действующей на горячие газы внутри нее. Да ты буржуйку-то вживую видел? Уверяю тебя, на режиме она прекрасно раскаляется докрасна и ревет как пылесос.

Аноним Втр 08 Июл 2014 07:15:39 126875 77

>>126044
> реактивный
Почему?

Аноним Втр 08 Июл 2014 08:05:47 126876 78

>>126824
> Именно из-за повышенной подачи воздуха.
Не важно, важно вот это:
Стехиометрический состав горючей смеси (от др.-греч. στοιχεῖον — основа, элемент и μετρέω — измеряю) — состав смеси, в которой окислителя ровно столько, сколько необходимо для полного окисления горючего. Для двигателей внутреннего сгорания с искровым зажиганием, стехиометрическим считается соотношение воздух / топливо, равное 14,7:1 (массовые части). Для пропана это соотношение равно 15.6:1

Аноним Втр 08 Июл 2014 10:13:10 126885 79
11Кб, 360x338
360x338

>>126473
> воздух плохо проводит тепло

Аноним Втр 08 Июл 2014 10:26:24 126886 80

>>126885
хуёова физику прогуливать, да?

Аноним Втр 08 Июл 2014 10:44:21 126887 81

>>126885
>>126886
Ну-ка, котятки, быстро пояснили мне за конвекционную теплопередачу.

Аноним Втр 08 Июл 2014 10:58:33 126889 82

>>126887
смешивание жи, но таки воздух неплотен

Аноним Втр 08 Июл 2014 11:08:46 126890 83

>>126887
Проводит тепло плохо кирпич по сравнению с воздухом, а воздух очень даже быстро нагревается.

Аноним Втр 08 Июл 2014 11:21:09 126892 84

>>126890
томучо пористый - с воздухом, но изолированным

Аноним Втр 08 Июл 2014 11:50:19 126895 85

>>126885
Ты стервец, решил меня уличить в незнании физики?
Открой вики и почитай за теплопроводность , особенно формулу посмотри, на "дельту Т" глянь и вникни почему она сверху и как это влияет на теплопотери.

Поясню. Дельта Т это разность температур и чем разность больше- тем больше теплопотери. То есть когда в трубе где горят продукты пиролиза темпратура +1000, а на улице +20 , дельта 980. А когда трубу окружает железная бочка по которой двигаются горячие продукты горения с температурой, положим +500, то дельта Т уже 500.
А величина теплопотерь прямо пропорциональна этой дельте, то есть разница почти в два раза.

Аноним Втр 08 Июл 2014 11:57:22 126896 86

>>126895
ай лол ты однобокий, внутри среды - любое аморфное вещество будет в теплопотери, а я номекал на плотность - чем меньше плотность, тем меньше энергопередача - ты прав с воздухом только если он не изолирован от внешнего воздуха, а изолированный заебись тепло держит

Аноним Втр 08 Июл 2014 12:02:54 126897 87

>>126896
тащемто я в контексте теплоизоляционных материалов пощщу, про сгорание в трубах сложной формы я не очень шарю....

Аноним Втр 08 Июл 2014 12:19:52 126900 88

>>126825
>Высокая температура берется из-за малых размеров ядра и теплоизоляции в виде кирпичей во внутренней трубе.
Да из-за этого тоже, но и воздух нужен.
>Никакой повышенной подачи воздуха у ракеты нет, у буржуйки с такой же трубой будет такая же тяга. Потому что тягу создает труба посредством архимедовой силы, действующей на горячие газы внутри нее. Да ты буржуйку-то вживую видел? Уверяю тебя, на режиме она прекрасно раскаляется докрасна и ревет как пылесос.

Все так, но только для буржуйки такой режим работы не стандартный, потому что отбор тепла в помещение происходит только с поверхости печки, и соответственно большое количество тепла прост улетает в трубу. Для этого и уменьшют подачу кислорода и уменьшают тягу, закрывая дверцу поддувала, чтобы замедлить процесс горения и отдачу тепла. Но с этим появляются и признаки недожига - сажа и дым.
В ракетной печи (точнее в ракетном награвтеле массы) теплообменник находится после камеры сгорания, что позволяет нам сжигать топливо при более высокой температуре, не опасаясь его потерь и недожига топлива.

>>126876
>Не важно, важно вот это:
>Стехиометрический состав горючей смеси

Тоже верно, но в реальной жизни, при сжигании дров (особенно крупных поленьев) не хватает именно кислорода, а не топлива. Если кислород будет в избытке, то это ничего не изменит, а вот если его не будет хватать, то топливо полностью сгорать не будет.

Аноним Втр 08 Июл 2014 22:34:55 126931 89


>>126892
То есть если создать две стены, между которыми воздух- тепла будет теряться меньше, чем если между ними положить утеплитель? Зачем тогда ставят утеплители и всякую вату?
Олсо вакуум же вообще не теплопроводен, получается если выкачать воздух- можно хоть при -600 жить.

Аноним Втр 08 Июл 2014 23:12:39 126937 90
62Кб, 234x376
234x376

>>126931
вата таки снижает конвекцию. если выкачать воздух то можно хоть при -273, при -600 можно ужэ и не жить

Аноним Срд 09 Июл 2014 08:22:59 126942 91

>>126900
Проблема буржуйки и вообще дровяных печей в том, что режим работы очень сильно зависит от режима подачи дров. Если накидать сразу много, то пиролиз пойдет во всей куче разом, воздуха будет не хватать и отсюда недожог и сажа. А подбрасывать помалу задолбаешься. А в ракете пиролиз только в маленьком участке внизу дров, потому что тяга вбок, и дрова сами опускаются по мере надобности - закинул магазин и занимайся чем хочешь.

Аноним Срд 09 Июл 2014 08:24:58 126943 92

>>126937
>если выкачать воздух то можно хоть при -273
-273 это температура чего? Не воздуха, ты его выкачал.

Аноним Срд 09 Июл 2014 08:47:11 126944 93

>>126943
припекло за школьную физику и ты решил меня потроазазаза?
-273 по цельсию вроде вакуум теоритический в космосе, алсо без ваты 2х стен не хватит - нужно много стен или ячейками.
ваще годно запустить в стены выхлоп печки

Аноним Срд 09 Июл 2014 10:39:48 126959 94

>>126944
Подсказываю - температура бывает у вещества и у излучения. Вакуум это вещество или излучение?

Аноним Срд 09 Июл 2014 10:44:20 126960 95

>>126959
блестяшку дописать? ты так к термосу подводиш штоле?

Аноним Срд 09 Июл 2014 10:53:05 126962 96

>>126944
>ваще годно запустить в стены выхлоп печки

Так делают, только запускают горячую воду по трубе. Если запустить выхлоп напрямую, то будет пожароопасно, непредсказуемо по температуре и неремонтопригодно. Да и сама затея геморная.

Аноним Срд 09 Июл 2014 11:01:03 126963 97
80Кб, 960x720
960x720

>>126959
вот, думал сосну, но нагуглил тебе пруф

Аноним Срд 09 Июл 2014 11:10:16 126964 98

>>126962
тащемто воду по трубе рациональнее в пол накласть, алсо согласен: выхлоп в стены - гемор

Аноним Срд 09 Июл 2014 11:52:36 126965 99

>>126964
Не помню почему пускают именно в стены, но там тоже были свои плюсы.

Аноним Срд 09 Июл 2014 12:09:10 126970 100
Аноним Срд 09 Июл 2014 22:45:56 127006 101

>>126963
Ты дебил бля? В пластиковых окнах вакум, бля.

Аноним Срд 09 Июл 2014 22:50:07 127007 102

>>127006
>вакум
Надеюсь, ты просто троллишь.

Аноним Чтв 10 Июл 2014 08:00:26 127017 103

>>126970
Эфироебок дохуя?

Аноним Чтв 10 Июл 2014 08:39:04 127018 104

>>127006
неа, хотя в герметичных пакетах бывает осушенный воздух.

Аноним Чтв 10 Июл 2014 08:48:52 127019 105

>>127006
на пике слева картинка из учебника, я повторюсь: хуёва физику прогуливать.
еще вспомни как твоя мамка заклеивает окна на зиму

Аноним Птн 11 Июл 2014 13:33:24 127082 106
Аноним Птн 11 Июл 2014 20:19:33 127095 107
Аноним Суб 12 Июл 2014 04:40:13 127103 108

>>126959
>Вакуум это вещество или излучение?
Ва́куум (от лат. vacuus — пустой) — пространство, свободное от вещества. В технике и прикладной физике под вакуумом понимают среду, содержащую газ при давлении значительно ниже атмосферного[1
И таки полный вакуум(практически ноль вещества это в космосе, технически получить его невозможно).

>>126944
>алсо без ваты 2х стен не хватит - нужно много стен или ячейками.
Точно. Ибо конвекцию никто не отменял - хоть воздух сам по себе плохой проводник тепла, но потоки воздуха очень хорошо переносят тепло. И вот вата или ячейки замедляют эти самые конвекционные потоки.

Аноним Суб 12 Июл 2014 12:53:46 127121 109

>>127103
>практически ноль вещества это в космосе, технически получить его невозможно
это википедия так пиздит?
в космосе таки не вакум, хороший вакум тока технически и получают

Аноним Срд 16 Июл 2014 10:43:28 127259 110
9Кб, 189x267
189x267

А можно сделать настольный вариант, с камерой сгорания со стакан размером, типа кальцинатора из Моровинда?

Аноним Срд 16 Июл 2014 12:48:13 127272 111

>>127259
удвою, чо там с перделом по размеру для рекативного двигателя?

Аноним Срд 16 Июл 2014 14:30:59 127278 112

>>127259
>>127272
В домаче кидали ссылку на книгу одного чувака, который занимается этими печами. У него проскакивало упоминание о печи, сделанной из пивных банок. Там же говорилось что топить ее было довольно заебисто, и что видимо такой размер и является пределом.

Аноним Чтв 17 Июл 2014 17:44:35 127342 113

>>127259
Это называется печка-щепочница.

Аноним Чтв 17 Июл 2014 17:55:23 127344 114
53Кб, 600x600
600x600

>>127342
А я думал что пиролизная горелка

Аноним Птн 18 Июл 2014 09:46:48 127378 115
Аноним Птн 18 Июл 2014 10:09:17 127381 116

>>127342
Эта хуйня по другому принципу работает.

Аноним Птн 18 Июл 2014 12:37:47 127389 117

>>127342
Но анон не хочет печь-щепочницу, анон хочет ПЕЧЬ-РАКЕТУ.
>>127378
Вот я и хочу конструкцию, чтобы СДЕЛАТЬ. Или ты хотел сказать СКОНСТРУИРУЙ?

Аноним Птн 18 Июл 2014 12:49:54 127392 118

>>127389
>СКОНСТРУИРУЙ
чо дефецит банок штоль? дрявь-смотри

Аноним Птн 18 Июл 2014 14:25:21 127397 119

>>127389
>Вот я и хочу конструкцию, чтобы СДЕЛАТЬ. Или ты хотел сказать СКОНСТРУИРУЙ?

Ну погугли хоть, епту бля.

Аноним Птн 18 Июл 2014 14:43:53 127398 120

>>127397
НУ И ХУЙНЯ ЭТО, что сказать. Просто хуярят на коленке и говорят что это ракетная печь. Нет! Это костерок в ведре. Дам длина футерованного канала смешная. Парень пропорционально уменьшил все размеры и думает, что это заебца. Ан нет, в реальности так не работает.

Аноним Птн 18 Июл 2014 15:01:09 127400 121

>>127398
ну не делай, никто не заставляет

Аноним Птн 18 Июл 2014 16:47:33 127415 122

>>127397
Тоже не то. От ракеты здесь только теплоизоляция ядра, нет бокового горения и вертикальной загрузки, а также варочной поверхности, горизонтального участка дымохода и трубы. По языкам пламени видно, что куча пиролизных газов не успевает сгореть в ядре, а ведь это главное условие.

Аноним Птн 18 Июл 2014 17:53:46 127419 123
9Кб, 292x423
292x423

>>127389
Вот тебе ссылка из домача
http://projectavalon.net/Rocket_Mass_Heaters.pdf
Язык ангельский, но очень простой и картинок очень много. Мануал для дебилов практически. Там есть HOW TO MAKE A POCKET ROCKET, автор делал из 20-ти литрового ведра, наверняка можно меньше.

Аноним Птн 18 Июл 2014 18:13:20 127422 124
36Кб, 395x584
395x584

>>127419
Если кто не понял, то идея на картинке.

Птн 18 Июл 2014 22:04:35 127443 125

>>127400
М, ни нравиться - не смотри)))?
Ох, здесь мы идём.

Аноним Пнд 21 Июл 2014 10:15:47 127521 126
62Кб, 447x700
447x700

>>127419
>>127422
>>127397
Пасибо, ананасик(и).
Мммм, я так понял, настольный вариант хуюшки? 20 литровое ведро это не настольный вариант. Весь объем трехлитровая банка - вот это настольный вариант.
Проще, в общем, заебенить газогенератор и подавать от него газ в настольную горелку. Самый оптимальный вариант, но не очень настольный.

Аноним Пнд 21 Июл 2014 10:34:28 127522 127

>>127419
пик
Где теплоизоляция экзит флюя и самой бочки?

Аноним Пнд 21 Июл 2014 11:13:36 127527 128

>>127521
подстольный тогда - тепло вверх ебашит жэ, ноги с хуем заморозишь

Аноним Пнд 21 Июл 2014 11:55:37 127529 129

>>127527
>подстольный тогда - тепло вверх ебашит жэ, ноги с хуем заморозишь
Настольная печка не для того, чтобы греться, а вместо горелки.

Аноним Пнд 21 Июл 2014 12:21:18 127530 130

>>127529
>а вместо горелки
всмысле свет или для опытов?

Аноним Пнд 21 Июл 2014 12:29:47 127531 131

>>127522
Ну глиняного раствора на дно ведерка всяко налить надо, и на ножки поставить - там огонь прямо возле днища получается. Еще я бы питательную трубу снаружи глиной обмазал, или готовую фарфоровую взял, чтобы дрова раньше времени не нагревались. Дымоход можно утеплить минватой, но это в минус мобильности. Короче, эксперименты нужны, идея-то заманчивая - шишек накидал, на малый газ вывел и дрыхни в палатке спокойно всю ночь.

Аноним Пнд 21 Июл 2014 12:55:10 127538 132

>>127415
>нет бокового горения и вертикальной загрузки
Тащемта в классической конструкции ракетной печи этого тоже нет. Вертикальную загрузку добавили уже позже.

Аноним Пнд 21 Июл 2014 15:11:26 127546 133
21Кб, 500x346
500x346

>>127538
Есть у меня одна идейка, анон. Почему ракета? Почему ОП решил, что труба не нужна? Продукты сгорания удалять и новое топливо с окислителем все равно подавать надо. Известно две конструкции для этого - труба с архимедовой силой или центробежный насос-дымосос с внешним приводом. Анон, а что если первоначальной идеей печи-ракеты было совмещение этих двух принципов? Надо выхлоп сделать не по оси симметрии бочки, а по касательной, так называемый тангенциальный. Этакий центробежный насос без ротора, а точнее сами выхлопные газы являются и турбиной, и компрессором. Таким образом бочка становится весьма важной - ее боковая поверхность это холодильник тепловой машины! Честно говоря, вся эта крутизна у меня в мозгу не укладывается, может я перебухал?

Аноним Пнд 21 Июл 2014 15:15:43 127548 134

>>127546
турбо-реактивная печка? или прост потери снизить?

Аноним Пнд 21 Июл 2014 15:25:11 127550 135

>>127548
Именно турбореактивная! Поэтому и такие длинные узкие дымоходы прямо под жопой - необходимости в трубе с архимедовой силой нет, горячий дым на выходе не нужен, на сечение дымохода вообще почти плевать. Но сама бочка должна хорошо охлаждаться, закрывать ее теплоизоляцией нельзя.

Аноним Пнд 21 Июл 2014 15:40:26 127551 136

>>127550
неа, для турбо-реактивного нужна крыльчатка нагнетения, без принудительного наддува как ни изёбывайся больше 90 кпд ниполучишь

Аноним Пнд 21 Июл 2014 16:10:29 127553 137

>>127551
Сварганил на скорую руку из двух консервных банок и свечки. Особо не взлетело, конеш, но я удивлен что тяга вообще есть! На турбовращение очевидно выхлоп не вышел, но получается ракета даже без него работает. Хотя у меня банки очень близкие по диаметру, зазор миллиметров пять. И явная нехватка воздуха - длинный коптящий язык пламени тянулся в центральное отверстие внутренней банки. Похоже, очень сильно все зависит от геометрии.

Аноним Пнд 21 Июл 2014 16:22:59 127554 138

>>127553
там выхлоп перпендикулярнее надо оси вращения, чем вдув гугли турбины кароч

Аноним Пнд 21 Июл 2014 16:31:47 127555 139

>>127554
Так и есть, вдув по оси, выхлоп перпендикулярно. Радиуса наверное не хватило. Да и сечения маловаты, свечка воздуха дохера жрет. Но в объем три литра для свечки наверняка уложиться можно пойду у мамки кастрюлю упру

Аноним Пнд 21 Июл 2014 20:26:34 127567 140

>>127555
мне кажися не взлетит: томучо свечка нерегулируемая получается тока 1 режим работы а у турбо их дохуя изза давления.
для свечки можно попробывать трубу разряжэния какогото хуя, типа как на печи наконечник есть
кастрюлю попортил ужэ?

Аноним Втр 22 Июл 2014 11:52:35 127590 141

>>127567
>трубу разряжэния какогото хуя
труба вентури лол

Аноним Срд 23 Июл 2014 16:06:51 127632 142

>>127530
Ну как для опытов. Чтобы греть. Например, греть еду. Светить думаю не очень будет генераторный газ, хоть и применялся раньше.

Аноним Срд 23 Июл 2014 16:34:50 127634 143

>>127632
нужно решить проблему уровня - свечка уменьшается жи
алсо: горелка на бензике чем не устраивает?

Аноним Срд 23 Июл 2014 19:17:53 127639 144

>>127632
>Светить думаю не очень будет генераторный газ
Были такие колпачки для керосинок, типа ткань пропитанная солями редкоземельных металлов. Ткань сгорает, соли остаются и светятся. Лучше всего получалось с солями радиоактивных металлов, да. Но вроде и с магнием и алюминием работает, гугли колпачки Ауэра.

Аноним Чтв 24 Июл 2014 07:53:47 127660 145

>>127639
>солями радиоактивных металлов
Ты имел в виду торий, надеюсь? Радиоактивность тут, в общем-то, лишь побочное свойство элемента, ненужное в данном случае. Добавлялись соли металлов, имеющих линии в видимом спектре, даже наверно цветовую гамму пламени можно регулировать таким макаром, гуглить не буду, не нужно мне это, не светить хочу. :)
>>127634
На бензике не устраивает взрывоопасностью, мой юный пироман. Если горелку на жидком топливе, то лучше на соляре с дожиганием - горелка представляет собой трубочку с дырочками, расположенную над пламенем, не коптит, похожа на "ЧудоПечьНаОтработке". У свечки низкая температура и так же коптит.

Аноним Чтв 24 Июл 2014 08:50:29 127661 146

>>127660
>взрывоопасностью
ой, там взрывоопасность уровня ботулизма или глистов в рыбе,тыж не нитрометанолом заправлять будешь.
алсо если твой критерий дым - тогда обрати свой взор на беспламенное горение с катализатором из платины - ака бензиновая грелка для рук

Аноним Чтв 14 Авг 2014 16:17:28 128696 147

>>127661
Ну ты как школьник современный рассуждаешь или просто диванный. Возьми половину полторашки АИ-98 (красненький вроде), подержи в тепле и когда родителей дома не будет зажги газ на конфорке, например, и открой рядом бутылку. После больницы, если сохранишь глаза, выложи здесь пруфы, чтобы другим неповадно было и знали, что с бензином шутки плохи. С солярой у тебя такой шутки не выйдет, например.
Горение на катализаторе это хорошо, есть газовые каталитические нагреватели, но сложно и дорого, хотелось твердое топливо, такое как деревянные чушки.

Аноним Чтв 14 Авг 2014 16:52:16 128697 148
24Кб, 311x450
311x450

>>128696
то, что ты умеешь делать взрывпакет из пэта и паров не повышает опасность бензина, а вот советы по нарушению тб карму портит

Аноним Птн 15 Авг 2014 20:21:36 128738 149

>>127660
>У свечки низкая температура
Candle heater же.

Аноним Птн 15 Авг 2014 20:44:44 128742 150

>>128696 у низкооктановых бензинов испаряемость выше

Аноним Птн 15 Авг 2014 22:40:51 128747 151

>>128742
92 95 98
725-780 725-780 725-780
плотность паров выше при повышении числа

Аноним Суб 16 Авг 2014 20:01:43 128778 152

>>128697
Да ладно тебе, я ж написал, что взорвется, эксперимент наглядный и одним школьником на дваче меньше станет. Разве это плохо?

Аноним Вск 17 Авг 2014 08:39:19 128793 153

>>128778
>одним школьником на дваче меньше станет
канешна плохо, он не запостит нужный пост тогда
и ты добровольно ответствуешь за его увечия

Аноним Вск 17 Авг 2014 13:45:29 128803 154

>>128793
>канешна плохо, он не запостит нужный пост тогда
Когда это школьники постили нужные посты?
>>128793
>и ты добровольно ответствуешь за его увечия
Это почему, я ему написал, что в больницу попадет. С такой логикой если написать "Кури и заболеешь раком легких" он начнет курить и заболеет и тоже я буду виноват?
Вообще этому щенку говорят чтобы не играл с бензином, если уж хочется поджигать, то с солярой, чтобы её взорвать надо иметь мозг и руки.

Аноним Вск 17 Авг 2014 15:00:13 128808 155
89Кб, 632x424
632x424

>>128803
>Когда это школьники постили нужные посты?
устами младенца говорит истина
>С такой логикой
вот ты толстячок

Аноним Пнд 18 Авг 2014 14:03:48 128826 156

>>128808
Да ну тебя, ты двачер какой-то.

Аноним 22/08/14 Птн 11:15:00 129071 157
>>126034
Вот глядя на эту печку я подумал, а если бочку с теплоизолированной трубой сделать высотой 1.5 метра, внешнюю бочку изнутри оснастить теплообменными ребрами, да еще и охлаждать водой, например, или, еще лучше, ацетоном или чем-нибудь с фазовым переходом в районе 50-100 градусов. Тогда эта конструкция будет работать как насос, а выхлопная труба будет ненужна вовсе и даже вредна, если температура в области Exhaust на картинке будет порядка 30-50 градусов, а с воздушным дутьем можно будет жечь не только сырые дрова, а вообще все, что горит, даже цыган и евреев. Правильно, нет? Печь сжигает отлично, но не может накапливать тепло, либо накопитель должен быть до бочки.
Аноним 22/08/14 Птн 19:44:55 129094 158
132Кб, 1000x698
1000x698
Как обеспечить приток воздуха к печке в землянке? Тяга будет, если труба подвода воздуха будет намного выше камеры сгорания, будет ли нормальная тяга воздуха?
Аноним 23/08/14 Суб 20:39:30 129139 159
Доставьте видео, где они эту печь (rocket stove mass heater) заводят(разжигают).
Аноним 24/08/14 Вск 07:36:25 129157 160
Аноним 26/08/14 Втр 13:12:47 129211 161
>>129094
воздух заходит вместе с дровами же
Аноним 27/08/14 Срд 04:27:09 129235 162
>>129094
Схуяли выше, когда поддувало в печках всегда НИЖЕ камеры сгорания. В землянке, как и в погребе, необходимо делать нормальную приточную вентиляцию, а то есть вероятность гроб гроб кладбище пидор, если она есть (труба на уровне пола, выход на уровне потолка+-), то и проблем с печкой никаких не будет.

http://youtu.be/sMxEhzktmWI
Аноним 27/08/14 Срд 16:32:52 129250 163
>>129094
>Тяга будет, если труба подвода воздуха будет намного выше камеры сгорания, будет ли нормальная тяга воздуха?
Подразумеваешь забор воздуха с улицы?

Дело в том, что забор воздуха с уровня пола, обеспечивает дополнительную циркуляцию воздуха в помещении.
И препятствует накоплению CO и CO2
Т.к. они также удаляются тягой печи

Но при этом, в помещение тянет холодный воздух с улицы.
Аноним 28/08/14 Чтв 09:11:59 129275 164
>>129250
>Но при этом, в помещение тянет холодный воздух с улицы.
Решаемо с помощью специалльного подпольного канала извне к поддувалу. Да тупо решетку в полу рядом с поддувалом.
Аноним 30/08/14 Суб 16:15:08 129374 165
Была такая охуенная печка в русско-турецкую войну, там был очаг и канава от него, накрытая железным листом. Канаву пускали под палаткой.
Аноним 30/08/14 Суб 16:18:24 129375 166
Аноним 11/09/14 Чтв 08:55:15 129839 167
успешные, а что если скрестить выхлопную трубу буржуйки и статический генератор, возможно ли?
Аноним 12/09/14 Птн 10:20:48 129855 168
>>129839
Что за статический генератор? Очередной внчный двигатель из говна и палок?
Аноним 12/09/14 Птн 11:10:48 129862 169
>>129855
по типу лейденской банки жэ, от дыма должно много статики быть, плюс сама труба длинная, это поспособствует разности потенциалов
Аноним 12/09/14 Птн 11:21:21 129863 170
16Кб, 298x556
298x556
Аноним 12/09/14 Птн 12:05:09 129866 171
>>129863

Моё предположение, что разность потенциалов совершенно никакая будет. И еще есть подозрение, что как только сажа/окислы пркроют трубу эффективность еще снизится. А рабочие образцы есть?

А то мне кажется проще термоэлекричесеий генератор зафигачить.
Аноним 12/09/14 Птн 12:19:47 129869 172
>>129866
>сажа/окислы пркроют трубу эффективность еще снизится
разве статике непохуй на ето?
Аноним 12/09/14 Птн 16:28:22 129877 173
44Кб, 894x407
894x407
>>129862
>от дыма должно много статики быть
Да с херов бы, сажа о трубу трётся, что ли? Так в нормальной печи её нет, всё целиком сгорает. Ну и правильно тут говорят, с элементами Пельтье хоть тридцать ватт готового электричества с киловатта тепловой мощности можно получить, минус расход на питание вентилятора конечно. Ну или ватт пять на чистых термопарах, зато тогда можно вместо вентилятора обойтись кипящим котелком, и их можно самому сделать из нихрома для электроплиток. На видео печка на Пельтье, КПД 3% но всё равно же греться надо.
Макака ёбнулась со своим спам-листом, так что вбивай адрес руками.
Аноним 12/09/14 Птн 16:32:00 129878 174
>>129877
>сажа о трубу трётся, что ли
восходящий поток воздуха трется
Аноним 14/09/14 Вск 20:48:48 129959 175
>>129877
>>129878
Но тогда надо трубу делать из диэлектрика-стекла, там, например.
Аноним 15/09/14 Пнд 10:23:58 129980 176
>>129959
достаточно её незаземлять - например поставить печь на кирпичи
Аноним 17/09/14 Срд 11:02:07 130044 177
>>129980
Нет, заряды ниоткуда не берутся, нужно будет либо две половинки трубы (как капельница Кельвина, например), либо, как я уже писал - диэлектрическая труба, но съем заряда с неё затруднен.
Внимание, вопрос! А можно эту вашу печь-ракету топить чем-то отличным от дров? Универсальный котел такой: например, засунуть горелку с газом, сыпать уголь (семечки), кусковой уголь, сушеные мелконарезанные евреи и др.?
К тому же, для данной печи будет вреден противоток, самая горячая часть - бочка, должна охлаждаться как можно активнее, для создания тяги, не?
Аноним 17/09/14 Срд 11:12:34 130047 178
Аноним 17/09/14 Срд 11:18:53 130049 179
>>130044
а зачем заземляют тогда газовые горелки?
Аноним 17/09/14 Срд 13:31:07 130061 180
27Кб, 600x400
600x400
>>126034
Тред весь ещё не прочитал, было ли: ПРОГОРИТ
Ибо бочка тонкая, а температура большая, железо горит очень быстро и хорошо.
Аноним 17/09/14 Срд 13:32:35 130062 181
Даже нержавейка жаростойкая, и та из-за высоких температур быстро прогорит. Для малого объема землянки вообще смысла в чем-то другом кроме буржуйки нет.
Аноним 17/09/14 Срд 13:50:57 130064 182
>>130047
Очевидный вопрос: А почему?
>>130049
А их разве заземляют специально отдельным провудом? Шину заземления на газовых трубах видел, на корелках - нет. Может ты видел с электроподжигом и заземление, чтобы в случае пробоя фазы оператора не ебнуло?
>>130061
Температура ж высокая только в ядре, если и будет прогорать, то только верхушка бочки, не стенки, мнение диванное, но интуиция - паяльной лампой, например, хуяришь на кирпич - белое пятно в центре, а по краям уже сажа хуярит - значит температура невысока.
Аноним 17/09/14 Срд 14:32:29 130069 183
12Кб, 132x323
132x323
>>130064
ну медный штырь с проводом - не совсем заземляет, а является землей
Аноним 17/09/14 Срд 14:45:21 130070 184
8Кб, 139x242
139x242
Аноним 17/09/14 Срд 18:25:37 130077 185
>>130069
>>130070
Некромант, ну загугли, пожалуйста, капельницу Кельвина, подумай и скажи нам, почему эта хуйня не должна работать?
Наползло с контакта вас тут...
Аноним 18/09/14 Чтв 04:52:58 130098 186
>>130061
>Тред весь ещё не прочитал, было ли: ПРОГОРИТ
А то! Даже кирпич прогорает, даже минвата сплавляется.
Вот пруф http://youtu.be/54lOrITaXpc?t=45s
Аноним 18/09/14 Чтв 04:57:44 130099 187
44Кб, 613x351
613x351
57Кб, 608x345
608x345
24Кб, 603x347
603x347
49Кб, 615x339
615x339
>>130064
>то только верхушка бочки
Точно.
Пикрелейтед1(скрин с видео) - наружная сторона верха бочки
Пик2 - это минвата(утеплитель ядра)
Пик3 - верх бочки изнутри
Пик4 - внешний вид минваты после и до
Отсюда http://www.youtube.com/watch?v=54lOrITaXpc
Аноним 18/09/14 Чтв 09:53:03 130107 188
>>130077
но я загуглил - она ориентирует заряды и разделяет их - однако не можэт быть, чтоб трение дыма о трубу было без последствий ,томучо перед ним процесс ионнизации идёт и значит дым имеет ненормальный заряд по отношению к окружающему
Аноним 18/09/14 Чтв 23:48:02 130153 189
>>130099
Походу чел накосячил на стадии проектирования...
Аноним 19/09/14 Птн 10:47:23 130165 190
>>130107
Дым - не плазма, а взвесь твердых частиц в разогретом газе, имеет нормальный заряд. Ты прав, последствия трения дыма о трубу есть - сажа на стенках оседает, кароч, не взлетит - проще пропеллер с динамой в трубу и термопару в топку, да рекуперацию тепла.
>>130153
Если только тем, что применил стекловату, думаю там температуры могут быть как в горне, градусов до 2000, каолин, оксиды алюминия и кремния - наше все. А бочка в любом случае будет прогорать.
Аноним 20/09/14 Суб 01:10:36 130182 191
>>130165
>А бочка в любом случае будет прогорать.
Надо же дно, которое варочная поверхность, зафутеровать.
Аноним 20/09/14 Суб 07:26:52 130189 192
26Кб, 1202x458
1202x458
>>130182
И чем? У стали один коэффициент теплового арсширения, у футеровки -другой. Через пару циклов нагрев-остывание футеровка вся полетит вниз.
Я думаю лучше всего варочную поверхность сделать съемной и заранее изготовить несколько штук -одна прогорела, снял ее и поменял на другую.
Типа пикрелейтед
Аноним 20/09/14 Суб 07:29:32 130190 193
>>130189
упс, пока рисовал придумал про вот эту вот сковородку на ножках -пламеотбойник.
То есть кароч, съемная варочна, обод которой погружен в песок(чтоб газы не проходили), а под варочной на камеру горения ставить пластину на ножках, чтоб пламя не было прямо по варочной.
Пластину делать из чего угодно - хоть из глины лепить(если не треснет конечно), хоть из чугуна
Аноним 20/09/14 Суб 07:37:15 130191 194
>>130190
Но думаю, греть эта варочная будет очень слабо, она и без всяких ухищрений(этого самого пламеотбойника) слабо греет. Ибо днище у бочки по определению не ровное, ибо температура этой варочной едва ли 200-300 градусов.
Кароч, для приготовления едьбы нужна печка меньшего размера, без варочной поверхности, так чтобы посуда ставилась прямо на пламя.
Да и не практично, например летом в жару ради супа-чая разжигать печку, которая обогревает помещение.
А варочную поверхность использовать для того чтоб чай не остывал - поставил чайник и хай себе стоит на ней
Аноним 20/09/14 Суб 10:12:41 130197 195
>>130191
Представь железяку, раскаленную до темно-малинового свечения, это градусов 500-600. Варочная поверхность норм. На буржуйке готовят - тоже _просто_ пластина раскаленная.
Алсо, на моей малой родине распространены небольшие печки - на полу занимают примерно два квадратных метра, топка литров 30-50 объемом, рядом духовка - железный короб с дверцей, имеют варочную поверхность, закрываемую характерными чугуниевыми кольцами и крышечками посередине - регулируя количество колец можно регулировать плщать прямого контакта с пламенем, ради интереса я кипятил воду в кастрюле (в мое детство уже был газ, печи оставались НА ВСЯКИЙ СЛУЧАЙ), дым не шел. Ломал такую печь - по периметру горизонтальной змейкой дымоход площадью 2-3 кв. дм. общей длиной внутри печи по грубой оценке 7-10 метров, погрешность 3 метра, потому что вверху он уже совсем немыслимыми спиралями загибается, а по стенкам ровно - 3 по 2.5 м и чуть-чуть по бокам.
Аноним 21/09/14 Вск 01:37:06 130233 196
>>130191
Сама суть этой реактивной хуйни говорит что она плохо приспособлена для кухни.

Максимум, подогрев воды для технических нужд.
И разогрев теплоносителя для отопления.
При этом теплообменник должен располагаться непосредственно внутри печи

Кстати.
Ещё один очевидный недостаток.
Необходимость подкладывать топливо в процессе работы печи.
Аноним 21/09/14 Вск 08:07:23 130235 197
>>130233
>При этом теплообменник должен располагаться непосредственно внутри печи
И тогда в топке не поднимется нужная для полного сгорания температура
Аноним 21/09/14 Вск 08:09:11 130236 198
>>130197
>Представь железяку, раскаленную до темно-малинового свечения, это градусов 500-600.
Это не про ракетные печи.
Обрати внимание - они обычно покрашены. А краска вряд ли выдержит 500-600 градусов.
Аноним 21/09/14 Вск 09:35:24 130238 199
>>130233
>Необходимость подкладывать топливо
у меня для тебя, плохие новости: везде нужно подкладывать топливо
Аноним 21/09/14 Вск 13:28:05 130255 200
>>130235
Диванный конструктор ракетных печей?
Уроки на завтра сделал?
>>130238
>везде нужно подкладывать топливо
Ещё один диванный специализд
Аноним 22/09/14 Пнд 04:40:41 130285 201
>>130255
Чего ты порвался то?
Еще раз: ракетная печь работает потому что камера сгорания очень хорошо теплоизолирована и в ней температура поднимается до 1500-2000 градусов и происходит полное сгорание топлива - сгорание останавлявается на стадии СО или вообще этих ваших альдегидов-кетонов и прочего - оно идет до СО2 и Н2О.
Как только ты введешь в зону горения трубки с водой, то есть начнешь отнимать тепло -так сразу же окисение топлива остановится на стадии этих твоих угарного газа и прочих продуктов пиролиза.
Аноним 22/09/14 Пнд 08:00:38 130289 202
25Кб, 350x512
350x512
>>130189
>футеровка вся полетит вниз.
Тарелку фарфоровую плоскую в центре на трёх болтах подвесить в качестве пламеотбойника.
>не практично, например летом в жару ради супа-чая разжигать печку, которая обогревает помещение.
Хочется универсальный агрегат же. Вот например вокруг бочки сделать больше бочку, тогда будет рубашка для кипячения воды для отопления или теплоизолирующий промежуток, если на лето воду слить. А варочную поверхность можно закрывать отражающим куполом, он же будет заодно духовкой.
Аноним 22/09/14 Пнд 08:54:53 130290 203
25Кб, 600x558
600x558
Аноним 22/09/14 Пнд 09:41:22 130293 204
>>130236
>краска вряд ли выдержит 500-600 градусов
Ну смотря какая.
>>130285
Трубы размещать не в зоне горения, а по периметру пространства, ограниченного бочкой, там где газы движутся вниз. Или как в >>130289 - водяную рубашку на бочку.

Эта печь до контача докатилась.
Аноним 22/09/14 Пнд 11:12:58 130301 205
>>130289
>тогда будет рубашка для кипячения воды для отопления
зачем?
пик >>126159 пик >>126474 - лежанку видишь?
Это и есть отопление - масска камня(глины или еще чего) нагревается и долго отдает тепло.
И не надо сливать воду из системы. если планируешь надолго оставить жилище зимой.

>или теплоизолирующий промежуток, если на лето воду слить.
Но зачем? Не проще ли запилить еще одну такую печку меньшего размера готовить на ней?

>А варочную поверхность можно закрывать отражающим куполом, он же будет заодно духовкой.
Это годно. Но чет я сомневаюсь что там будет даже 200 градусов.

>>130293
>Ну смотря какая.
Силиконовая выдержит, только вот не похоже что там очень высокая температура
http://youtu.be/ONCm-U7ajI4?t=1m29s
На боковине бочки 265 -372 фаренгейта(129 -188 Цельсия) - на днище(варочная) в том месте где бьет пламя снизу - таки повыше (см. 0:07 -краска обуглилась), но явно не до свечения металла.
Хотя печка какая-то неканоничная.

>Трубы размещать не в зоне горения, а по периметру пространства, ограниченного бочкой, там где газы движутся вни
Но зачем? Зачем лишние телодвижения, если уже давно придуман теплый пол, кан, ондоль - и не нужно изгаляться с водой и трубами.


>Эта печь до контача докатилась.
Серьезно?

Аноним 22/09/14 Пнд 11:20:28 130302 206
>>130293
>Ну смотря какая.
Вот уточнил
http://youtu.be/gva6Nrk7oPo?t=2m54s
На днище 450 фаренгейта = 232 Цельсия.
Кароч, как варочная поверхность не оче. Температура нижкая, поверхность не гладка, между днищем посуды и поверхностью воздушная подушка - думаю чайник будет оче-оче долго закипать.
Аноним 22/09/14 Пнд 11:32:02 130303 207
18Кб, 791x511
791x511
>>130302
>На днище 450 фаренгейта = 232 Цельсия.
Прогнался-не досмотрел до конца -печь не разогрелась еще
Вот температура дальше, после того как раскочегарится http://youtu.be/gva6Nrk7oPo?t=5m33s
764 Фаренгейта= 407 Цельсия.
НО! Поверхность негладкая, а значит днище кастрюли не будет плотно прилегать к днищу бочки.
Поверхность не будет гладкой даже если ее отшлифовать с пастой ГОИ - ибо теплово расширение и днище все равно будет пучить, когда печь разогреется.
Пикрелейтед - поясняю
Аноним 22/09/14 Пнд 12:14:36 130305 208
>>130301
>явно не до свечения металла.
Оно и не нужно - окисляться и гореть будет, но я не вижу препятствий тому, чтобы её разогнать до этого увеличить подачу воздуха. Простая бочка с дровами греется боками до ярко-красного, а тут такая-то еба.
>Но зачем?
Ну если хочет человек воду в трубах греть. Что ты подразумеваешь под теплым полом - дымовой канал от печи тянуть под полом? С водой это было бы проще, но в рамках раздела теплый пол - излишество.
>>Эта печь до контача докатилась.
>Серьезно?
Да здесь анонимный форум педофилов и маленьких девочек, мне, например, не страшно показаться некомпетентным, они же там светят еблом и ведут беседы не беря во внимание даже физику 7 класса.

>>130302
Ну на ТЭС, например, на паропроводе с паром с t~530 C готовят еду иногда.
Аноним 22/09/14 Пнд 12:50:55 130310 209
39Кб, 390x157
390x157
>>130305
>Оно и не нужно
А жрать как готовить? По полдня варить суп и час кипятить чайник?

>Что ты подразумеваешь под теплым полом
>>130301
>кан, ондоль

> С водой это было бы проще
Из гомна и палок? В тайге за 100км от ближайшего Мухосранска. Трубы на горбу переносить?

>с паром с t~530 C готовят еду иногда.
530, иногда и смотря что такое "готовят"

Аноним 22/09/14 Пнд 13:54:58 130318 210
>>130310
> пик релатед
Нахуй надо такие конструкции - чуть утечка ночью и все трупы. Лучше теплый подпол и печку в нем расположить.
Я тебе уже сказал, в условиях выживания теплый пол - излишество, трубам, которые ты протащишь по тайге 100 км можно найти иное применение. Как ты вообще собрался по тайге 100 км пилить, а в конце пути строить печь-ракету, ты ебанутый?
На 530 можно готовить все. При готовке вода в кастрюле не разогревается выше 100 градусов, знаешь, надеюсь, почему?
Аноним 22/09/14 Пнд 21:46:11 130339 211
>>130318
>в условиях выживания теплый пол - излишество
А вот тут ты заблуждаешься.>>130301
>Не проще ли запилить еще одну такую печку меньшего размера готовить на ней?
Значительно проще, и эффективнее по затратам топлива.
Аноним 23/09/14 Втр 08:24:08 130361 212
>>130310
>А жрать как готовить? По полдня варить суп и час кипятить чайник?
У тебя суп варится на температурах уровня свечения металла? Вода кипит при ста градусах, все что выше - потери на выкипание.
Аноним 23/09/14 Втр 08:45:12 130364 213
>>130339
Ты ебанько. Делай теплый пол, окей.
Аноним 24/09/14 Срд 02:57:04 130413 214
5Кб, 259x194
259x194
121Кб, 1600x1200
1600x1200
195Кб, 1200x815
1200x815
>>130361
>У тебя суп варится на температурах уровня свечения металла?
Не поверишь, но электроконфорки именно что светятся и даже не малиновым, а красным.

>>130361
> Вода кипит при ста градусах
И? Ты для начала доведи ее до 100 градусов - при температуре печки в 200 градусов ты воду греть будешь часами, а при 500-600 - почти как электрочайник. И это без учета неплотного прилегания днища кастрюли к варочной поверхности(а оно никогда не будет плотным и всегда между днищем и поверхностью будет воздушный зазор)

>>130339
>Значительно проще, и эффективнее по затратам топлива.
О том и речь - чем раскочегаривать всю печку рад вскипятить чайку - кинул пару щепок в маленькую печку и как на газу вскипятил. Я думаю, если дрова будут нужной сухости то можно эту готовочную печь держать прям в жилом помещении - дыма будет самый минимум. Сугубо диванно рассуждаю.

>>130318
> такие конструкции - чуть утечка ночью и все трупы.
Корецы и китайцы юзают ондоль и кан уже тысячу лет и не ноют. Кан, кстати пилят даже в таежных фанзах, где? сам понимаешь, кроме камней и глины ничего нет(Прежвальского и Арсеньева читни, что ли). Пикрелейтед -кан, сравни с картинками тут >>126159
>>126474


>трубам, которые ты протащишь по тайге 100 км
За трубами это не ком мне, а к этому/этим >>130305 >>130289 анонам.



Аноним 24/09/14 Срд 03:05:30 130414 215
>>130318
>Как ты вообще собрался по тайге 100 км пилить
Ногами. Но так то я никуда не собираюсь - лень мне выживать, расуждаю сугубо диванно. Да и 100 км это просто гипербола - у меня, например тайга в 30 км от города начинается(один дневной переход, ну максимум два, если с грузом).

>а в конце пути строить печь-ракету, ты ебанутый?
Глина. У нас в Приморье глина есть везде - Сихотеалинь очень старые горы , выветривание там всякое -кароч глину найти не проблема. А кроме глины тут полно сланца -это такие камни что колятся на плоские плитки, из них кстати и образуется эта самая глина.
И песок тут есть в реках.

>На 530 можно готовить все.
Во-первых, этих 530 у тебя не будет. Во-вторых, даже если и будут, то 530 на варочной поверхности это не значит что до днища чайника дойдут 530 -не дойдут, потмоу что воздушная прослойка.

>не разогревается выше 100 градусов,
И? Одно дело двести до кипения за 10 минут на открытом пламени, и совсем другое - за полчаса(а может и час) поставив на варочную поверхность.
Аноним 24/09/14 Срд 05:22:06 130416 216
>>130413
>Не поверишь, но электроконфорки именно что светятся и даже не малиновым, а красным.
Угу, можно и до желтого нагреть. Но зачем?
>Ты для начала доведи ее до 100 градусов - при температуре печки в 200 градусов ты воду греть будешь часами
При плохом теплообмене ты своей плазменной электроконфоркой тоже будешь греть часами. Рулит теплопроводность, а не температура.
>(а оно никогда не будет плотным и всегда между днищем и поверхностью будет воздушный зазор)
так может стоит перестать ныть и начать использовать радиатор/теплообменник?
Аноним 24/09/14 Срд 08:15:08 130423 217
>>130413
>Корецы и китайцы
неправославныеибездуховные
Я ответил в >>130364
Каждый дрочит как он хочет. Не путай лежанку с теплым полом. Лежанка - это православная и духовная РУССКАЯ ПЕЧКА в миниатюре - с массивным теплонакопителем. Лучше теплый подвал, в котором будет храниться картоха, которую предлагают вырастить на 12 сотках в соседнем треде.
Высокая температура нагревателя нужна для создания конвективного потока. Если уж на то пошло, то наварить сверху печи бортик, наливать туда воду и готовить на водяной бане, лал. Кто-нибудь из вас видел буржуйку вживую? Всё будет на бочке норм вариться.
Аноним 25/09/14 Чтв 10:53:53 130506 218
>>130423
>Не путай лежанку с теплым полом.
Кан(лежанка) это сорт оф корейского ондоля. Вся разница что ондоль под всей площадью пола, а кан занимает лишь часть площади помещения.

Аноним 25/09/14 Чтв 10:55:36 130507 219
>>130416
>Рулит теплопроводность,
Которая у воздуха 0,026 ,а у стали 47.

>использовать радиатор/теплообменник?
Под кастрюлю?
Аноним 25/09/14 Чтв 15:55:23 130529 220
>>130507
>Которая у воздуха 0,026 ,а у стали 47
Вы оба уебки. В воздухе основная передача конвекцией и излучением, газовая конфорка греет, например, исключительно за счет этих двух факторов.
>>130506
А корейский ондоль это сорт оф русская печка. Вся разница, что печка повыше и занимает лишь часть площади помещения, а ондоль под всей площадью пола. Ты мудак блять, иди дрочи на свой ондоль в другом месте.
Аноним 26/09/14 Птн 06:12:16 130559 221
>>130529
>А корейский ондоль это сорт оф русская печка.
Ондоль проще и компактней - он под полом и не занимает половину помещения.
>а ондоль под всей площадью пола.
Улавливаешь?
Аноним 26/09/14 Птн 08:15:37 130563 222
>>130559
>проще и компактней
Исключает наличие подпола, требует доработки конструкции всего здания, не допускает демонтажа.

>>а ондоль под всей площадью пола.
>Улавливаешь?
>>130506
>а кан занимает лишь часть площади помещения.
Улавливаешь?
Аноним 26/09/14 Птн 08:58:07 130564 223
56Кб, 1016x528
1016x528
>>130559
>>130563
>Улавливаешь?
на борде одни сенсоры ёпт
Аноним 26/09/14 Птн 14:01:39 130575 224
59Кб, 800x473
800x473
В спортивном клубе стоит печка Профессор Бутаковъ, модель инженер. Старая, но топит ахуительно. Весь секрет в трубках сверху, откуда ебашит горячий воздух. Однажды поставил наверх кроссы сушиться и в местах над трубками прославилась подошва. Алсо дрова в основном ТЛЕЮТ, а не горят. Поддувает свежий воздух снизу, туда же падает зола.
Аноним 26/09/14 Птн 14:54:38 130580 225
>>130575
а чому доцент больше инжинера? наоборот жэ должно
Аноним 26/09/14 Птн 15:46:17 130586 226
>>130580
C хуя ли? Когда получишь технарский диплом, увидишь что там будет написано. А доцент, это уже при кафедре должность.
Аноним 26/09/14 Птн 15:53:37 130588 227
>>130586
Технарь не выпускает инженеров. Доцент и анжинер равны как бы, ибо смотря какой инженер и смотря какой доцент. Пидарахенский доцент не пенсионер никак не может быть равен самому тупому японскому инженеришке, например.
Аноним 26/09/14 Птн 18:05:26 130604 228
>>130588
У меня в дипломе написано "инженер", я технарь, еще я аспирант, доцента получил бы работая на кафедре аспирантом, закончив аспирантуру стал бы кандидатом. Ты теплое с мягким не путай. Я даже хочу добавить "школьник ёбаный", но удержусь, пожалуй.
Аноним 26/09/14 Птн 20:24:08 130613 229
>>130604
Я не школьник, у меня после технаря написано техник-технолог, инженер это таки вышка. Я уж не буду писать "соси хуй, быдло", ты же, вроде как, и не быдло, а инженер.
Аноним 29/09/14 Пнд 11:21:52 130717 230
>>130563
>Исключает наличие подпола
Можно подпол под ондолем сделать например, а прямо в ондоле люк проделать и края зашить, если ты об этом.
Аноним 29/09/14 Пнд 11:24:25 130718 231
>>130717
в теории можно и до магмы докапать и от неё греться
Аноним 29/09/14 Пнд 12:28:45 130721 232
>>130718
Умные люди так и делают
Аноним 29/09/14 Пнд 12:30:19 130722 233
>>130721
кукарекуют с дивана?
Аноним 29/09/14 Пнд 15:28:52 130738 234
>>130722
Используют горячие источники для отопления.
>>130717
Что ты доебался до меня? Ондоль - это сложно. Печь - ракета просто. Почему в России не делали ондоль, а делали русскую печь и подпол? inb4 Тупые пидарахены, умные кореяхены.
Аноним 29/09/14 Пнд 16:34:49 130744 235
>>130738
Потому что в России леса овердохуя. Русские тупо лес выжигали, чтобы потом на этом месте рожь посеять, типа зола - лучшее удобрение. А корейцам приходилось дрова экономить.
Аноним 29/09/14 Пнд 19:09:18 130749 236
>>130738
Русская печь это довольно сложная штука, погуглите как она устроена.
Почему она занимает пол-дома. Да потому что блять тогда большее число кирпичей в ней прогреется а значит дольше тепло будет держаться. В ней и лежанка, и кухня, и сушилка-хранилка для лука-чеснока, и воду горячую в ней добывают, почти весь быт завязан на эту печку.
Аноним 29/09/14 Пнд 23:52:41 130771 237
>>130305
Тёплый пол не излишество, а один из самхы хороших способов греть помещение. Поищи в инете как прогревается помещение, если греть его ковекторами, печами, тёплым полом, ещё там что-то было. Короче говоря с тёплым получается, что ногам тепло, а дышится свежо. Во всех остальных случаях - дискомфорт.
Аноним 30/09/14 Втр 00:03:25 130772 238
>>130413
>можно эту готовочную печь держать прям в жилом помещении - дыма будет самый минимум
Так а чего, лучинками и светиться раньше умудрялись. Я сам на остатках старой русской печи костёр с щепы разводил - всё отлично горит без дыма. Пахнет вкусно, сосиски получаются лучше чем на плите. Чайку на кружку тоже не проблема в турке, чашке металлической или котелке небольшом вскипятить.
30/09/14 Втр 00:24:03 130776 239
>>130749
Там свод сложить самая сложная часть. Ну и тепломассу всю эту натаскать та ещё запара. А так ей же пользоваться нужно уметь, топить её надо уметь, готовить на ней надо уметь, посуда нужна специальная, ухваты всякие.
Аноним 30/09/14 Втр 03:56:40 130782 240
>>130738
>Почему в России не делали ондоль, а делали русскую печь и подпол?
Например, где Корея и где Россия(та Россия, где изобрели печь, то есть в границах какого там - 14-15 веков)?
Вся разница в геологии. В Корее не было ледника, а в Росиии был, в Корее море сланца в горах, в России и гор то не было.
А сланец это готовые плиты -то есть куда их приспособить это очевидно.
А вот мутить специально плоские кирпичи и делать из них пол -это не очевидно, а плоских камней в России не было -только песок и глина и окатанные валуны, да галька.

И это:
>inb4 Тупые пидарахены, умные кореяхены.
тут вовсе ни причем. Когда русские дошли до Урала(кстати не факт что там есть сланец, но даже если и есть) - конструкция печи была уже отработана и менять что-то, эксперементировать никто не стал - люди очень консервативны в таких вопросах.
Аноним 30/09/14 Втр 04:05:52 130783 241
>>130744
>А корейцам приходилось дрова экономить.
И у корейцев есть горы, где куча сланца, который легко колется на плоские плитки(я сам из Приморья и Сихоте-Алинь это продолжение корейских гор и у нас вот этих вот глинистых сланцев очень много).
Кстати, предположу, что ондоль изобрели не потому что хотели теплый пол, а потому что сланец от прямого пламени трескается и колется(непросушеный сланец) и вот корейцы могли сначала таким образом сушить сланец - дым то он похолодней чем пламя в печи.
То есть как могло быть? Решили древне корецы не заморачиваться с кирпичем -просто набрать плоских сланцевых плит и сложить из него печь. Сложили, разожгли костер - а печь и развалилась - в сланце всякие трещины, в них вода, вода от жары вскипает и разрушает камень.Тогда они решили сначала просушить сланец, а уж потмо пилить из него печь и
замутили печку из кирпичей(которые дороже чем сланец, которые надо слепить, обжечь и прочее), соорудили дымоходы из сланца, сверху наклали сланца для просушки, а еще выше навес от дождя.
А потом "Слушай, уважаемый, а чего мучаться с этой просушкой сланца? На кой нам вообще большая печь из сланца? давай вот так и замутим - небольшую печь из кирпича и дымоходы из сланца. Экономия жи"

А у русских, когда они изобретали печь -не было рядом этого самого сланца - гор нет, под ногами песок и глина. Вот и налепили простых кирпичей.
Аноним 30/09/14 Втр 04:06:37 130784 242
>>130749
>Да потому что блять тогда большее число кирпичей в ней прогреется а значит дольше тепло будет держаться.
Ты для этого сначала сожжешь кучу дров
Аноним 30/09/14 Втр 11:19:47 130802 243
Аноним 01/10/14 Срд 21:10:32 130927 244
Аноним 02/10/14 Чтв 23:40:47 130985 245
>>126034
>печь-ракету
Представляю, что в Ереване творится...

Мимокрокодил
Аноним 03/10/14 Птн 01:13:12 130987 246
Я бы посоветовал поиграться с трубами с маслом, если убежище серьезное. Хотя я с ними замахался, но эффективность зашкаливает.
Аноним 03/10/14 Птн 12:08:05 130999 247
>>130987
Вроде есть более толковые теплоносители
Аноним 03/10/14 Птн 12:12:19 131000 248
>>130783
>от жары вскипает и разрушает камень.
Неслабо,кстати, разрушает.

Както в походе по сланцевым местам готовили хавчик на костре.

Так один из камушков в очаге ёбнул так, что костёр разлетелся и котёл опрокинулся.

Поначал дажеподумали, что под кострищем какой сюрприз был прикопан
Аноним 03/10/14 Птн 14:12:23 131005 249
>>130999
Ну для меня масло стало выходом получше чем вода. Один фиг трубы уже в стенах. Я по теплоносителям долго курил в свое время, но остановился именно на нем.
03/10/14 Птн 17:55:09 131008 250
>>131005
А какое масло туда заливать? Масла нынче недешевые ни разу.
Аноним 04/10/14 Суб 03:02:43 131019 251
>>131008
>А какое масло туда заливать?
Силиконовое(оно негорючее).

>Масла нынче недешевые ни разу.
Силиконовое тем более.

>>131005
> для меня масло стало выходом получше чем вода
Про пожарную безопасность не слышал? Не не слышал.
Аноним 04/10/14 Суб 12:55:21 131029 252
>>131019
Про коррозию обычных труб под воздействием воды и геморрой по замене замурованных с стену труб не слышал, дауненок?
Аноним 04/10/14 Суб 13:14:15 131032 253
>>131029
Пропилен вроде не ржавеет от контакта с водой...
Аноним 04/10/14 Суб 14:37:07 131038 254
>>131019
Если ты про то, что меня гос-во нагнет - нет. Убежище никак с ним не контактирует и вокруг нет ничего.
А если по поводу опасности для меня - не представляю вариантов, когда что-то хреновое случится(не из ряда фантастики).

>>131032
Увы, на тот момент мне срочно нужно было доделывать систему отопления, поэтому то, что я выбрал(масло) и было использовано. Мне норм, в принципе. А иначе бы просто не успел бы до зимы и убежище запалилось бы.
Аноним 05/10/14 Вск 07:52:58 131060 255
>>131029
>Про коррозию обычных труб под воздействием воды и геморрой по замене замурованных с стену труб не слышал,
Про то что можно вообще обойтись без водяного отопления не слышал,дауненок?
Аноним 05/10/14 Вск 07:54:31 131061 256
>>131038
>Если ты про то, что меня гос-во нагнет - нет
Я про то что одажды ночью зимой ты можешь проснуться от яркого пламени.

>не представляю вариантов
То что ты чего-то не представляешь не означает что этого не может случиться.
Аноним 05/10/14 Вск 08:59:19 131064 257
>>131038
>не успел бы до зимы и убежище запалилось бы
вот этого я непонел
алсо поспешишь людей насмешишь - переделывать не планируешь?
Аноним 05/10/14 Вск 13:52:00 131069 258
>>131060
>Про то что можно вообще обойтись без водяного отопления не слышал,дауненок?
Ты вообще следишь за нитью разговора, умница ты наша? Впрочем, ты прав, давай обойдемся без водяного отопления, это лучше.
>>131032
Так я и уточнил, что "обычных", золотые, полиэтиленовые, из супер-пупер нержавейки тоже не ржавеют.
>>131061
У тебя есть убежище, будь ласка, покажи чертеж и как пришел к такой именно конструкции?
Аноним 05/10/14 Вск 15:14:48 131071 259
>>131061
Ну, если я проснусь от яркого пламени, то это будет очень дерьмово. Но опять же, как эти блжадские трубы способны это обеспечить?

>>131064
Ну у меня был четкий план - нужно сделать его за один раз(читай - промежуток времени без перерывов). Так как придумал как обеспечить прикрытие строительству и оно, к слову сказать, сработало. Да и там смешить нечем - получилось отлично, на мой взгляд.
Переделывать не планирую никогда, так как не вижу смысла.Все работает, отопление себя показало, электричество тоже.Жид в душе говорит изредка - нужно было делать больше, но жид это жид. Он ничего не понимает.И возможности переделать не вижу - сооружение довольно титаническое - бетон и все такое.У меня ни сил, ни желания, ни средств уже не будет.

>>131069
Если найду то, что чертил(рисовал как курица лапой, лол), то скину. нет - так накидаю в редакторе к вечеру.Треды все равно не тонут почти.
Ключевой момент - у меня особенность убежища основная состоит в том, что у меня есть источник воды непосредственно в нем. От всего этого и скакал.
Аноним 05/10/14 Вск 19:34:10 131077 260
>>131071
>в редакторе к вечеру
Я буду здесь. У тебя подземелье с родником, пещера с подземной речкой? Откуда берешь электричество?
Аноним 06/10/14 Пнд 00:28:15 131086 261
15Кб, 1012x710
1012x710
>>131077
Общую схему набросал, но как курица лапой не сильно соблюдая масштабы.
У меня адовый родник скважина.
Чуть позже запилю стори.
Аноним 06/10/14 Пнд 00:54:39 131088 262
Забавно, но анон выше, который видимо хотел поговорить за меня почти угадал.
В далеких восьмидесятых годах моему дедушке по блату дали возможность взять участок у леса. И решил мой дедушка, уже через несколько лет, в 88 году пробурить скважину там до атрезианских вод использую дружбана по блату. Пробурил ее и оказалось, что там не скважина, а вода под лютейшим напором. Друг-начальник послушал деда, которому не улыбалось иметь пруд вместо участка, выделил материалов и машину для частичного консервирования родничка. И там можно было только кран врубать спокойно да и все. А потом наступили 90 и всем стало не до того. Но потом наступили 2000ные и дедушка, будучи инженером, на старости лет захотел себе там микроГЭС построить. По геодез.картам определил, что воды там овер9000 и за 7 лет потихоньку заделал там микроГЭС с переменной мощностью от 10-20-30 КВТ, а сброс трубой вывел в лес, замаскировал под естественное месторождение воды (метров 60 и благо между его участком и лесом нет никого и лес почти впритык) и там оно все в овраг стекает, оттуда или в местную речку или еще куда утекает. Работает на банальной мощности потока и пропеллерной микро ГЭС на 10квт(точнее трех). Консервация, как оказалось обеспечила основу для всего этого и потом вывели одну толстую трубу, она там потом растраивается и с заслонками. Переменная мощность обеспечивается этими самыми заслоночками.
Никаких саун и горячих источников нет, но работает отлично. Ну и для Сан.узла воду дает.
Аноним 06/10/14 Пнд 00:57:06 131089 263
Что, у нас тут в треде мамкин строитель убежищ из пледа и стульев?
Аноним 06/10/14 Пнд 01:08:20 131090 264
>>131088
Ну так вот, дед это все закончил и через пол-года, в 2008 году умер. А на участке домик его остался. Родители хотели это все дело продать, но они нихера не знали про дедову микрогэс и думали, что это какая-то херь для воды просто(отношения у них не самые лучшие были, вот и не знали).
Я их отговорил и попросил участок на меня отписать. Ну, они отписали и вот дальше, так как я неравнодушен к Жюль Верну и прочему, а так же на волне выживаний и т.д захотел я заиметь собственное убежище, тем более было то, чего нет у большинства нычек - энергия.
Описывать весь процесс не особо хочу стеной текста, но на вопросы отвечаю и ниже напишу пару основных моментов.
До труб и масла додумался именно из-за наличия электричества и когда узнал про масляные обогреватели.
Изначально получил весьма неплохой котлован от начала нового строительства, от которого и плясал в дальнейшем
Маскировка всего строительства на поверхности была одновременно тупая и гениальная - большая теплица, плюс дед еще пару помещений по типу какого-то курятникосарая и времянки оставил, тоже прикрывало сбоку.
Очень много материалов банально спионерил с близлежайших строительств, которые заброшены,со свалок,а иначе бы не потянул по деньгам.
Аноним 06/10/14 Пнд 08:57:34 131102 265
>>131090
без фотки ты хуй простой, в пасте много влажноты
Аноним 06/10/14 Пнд 12:15:33 131109 266
>>131102
Иди нахуй, ты даже сочинить годно не можешь, не то что сделать.
>>131090
>>131088
>>131086
Спасибо. 10 кВт электричества это охуительно. Ганжу можно растить или огурчики с картошечкой, только лампами запастись. Я однажды мечтал об убежище в пещере с подземной речкой - вода, ГЭС и слив. Лал. Если можно - еще недиванонящих подробностей.
Аноним 06/10/14 Пнд 12:21:52 131110 267
>>131109
>сочинить годно
>2014
>сочинить
алсо сильно сомневаюсь в родничке с 10квт, у подножия гор штоле?
Аноним 06/10/14 Пнд 13:05:03 131114 268
>>131110
Да он пиздит от начала и до конца, я ж говорю это мамкин строитель убежищ.
Аноним 06/10/14 Пнд 14:08:46 131121 269
>>131102
Ну когда я туда в следующий раз поеду, могу фотки трубы, проводов и т.д сделать с супом. Их никто точно не узнает, а вот кровать могут, лол.

>>131110

Родничком это я его сам назвал же. Технически это артезианская скважина, только по каким-то геологическим\геодезическим причинам у нее адский напор воды без использования насоса.
Т.е если в обычной ГЭС вода падает на лопасти и т.д, то тут ей не нужно иметь разницу в высотах и иже с ним. Она лупит целенаправленным(с помощью труб) фонтаном.Там потому и законсервировали - иначе бы озеро вместо участка было.

>>131109
Да всегда пожалуйста. Там не десять, а три раза по 10 - регулировать же можно.Три трубы. То есть технически 30. Но на практике до 30 не доходит - только ~20.(кстати, на рисунке микроГЭС под цифрой 3 и с тремя вопросами, решил отдельно ее описать же и забыл подписать, лол.) Ну, у меня места для выращивания нет. Точнее есть - на том говнорисунке я это помещение не пририсовал, так как смысла нет. Оно очень маленькое и с ним я зафейлился или не подумал. Да и ресурсы к концу подходили, куда уж там организовывать что-то для выращивания.Максимум помидоры какие-нибудь в горшках туда загнать можно, лол. Вообще Если смотреть по масштабам то там все не такое уж большое."Жилое"помещение ~5\~4\2.5. и в нем все, что мне по идее нужно будет для нормального проживания.Кровать кстати, обычная, односпальная.Над койкой к стене даже не думал, так как место все же есть и рано или поздно у меня от нее спина охренеет. Велогенератор. Зачем он там? На всякий случай и к тому же это единственный доступный при таких размерах комнаты спортивный снаряд,лол.Хотел бы еще беговую дорожку, но увы - или, или.Шкаф-полка с книгами. Решил, что могу себе позволить иметь самые любимые в бумажном варианте, а не в электронном. Что еще из подробностей рассказать?
Аноним 06/10/14 Пнд 14:12:22 131122 270
>>131121
делай фотку генератора от родничка, пожалсто
Аноним 09/10/14 Чтв 00:40:10 131222 271
>>131121
Будешь делать фотки.
Смотри чтобы по ним место не спалили.
Аноним 09/10/14 Чтв 01:41:54 131223 272
>>131222
Не спалят ничего по трубам. Кто их видел то?
Аноним 09/10/14 Чтв 13:37:27 131253 273
>>131223
Ты даже незнаешь, кто их видел.
Аноним 09/10/14 Чтв 14:18:45 131255 274
>>131253
Дед, его друг и два-три рабочих.дцать лет назад. Причем первые двое уже видят их с небес. Ну отец, хорошо. Он тут точно не сидит. ~
Аноним 09/10/14 Чтв 16:39:17 131261 275
Аноним 11/10/14 Суб 02:24:39 131324 276
Аноним 19/10/14 Вск 19:50:33 131701 277
38Кб, 802x500
802x500
Аноним 20/10/14 Пнд 18:42:37 131792 278
>>131701
ПЕЧЬ ИЗ БАЛОНОВОЙ СТАЛИ ЗАКАЛЕННАЯ В ПОЛНУЛУНИЕ НА ПАРАШЕ.
Аноним 20/10/14 Пнд 20:02:45 131793 279
>>131792
Спешите видеть! 15 рублевый ватник кукарекает в тематике. Съеби, балонная сталь действительно не быстро прогорает.
Аноним 20/10/14 Пнд 23:26:28 131804 280
>>131793
Конечно, блядь, не быстро. Потому что это не бочка из тонкой, блядь, жести.
Аноним 21/10/14 Втр 09:11:43 131824 281
123Кб, 1280x721
1280x721
>>131804
Но баллон, закопанный в землю, и ржавеет медленно. У меня у бабки два маленьких савецких баллона лежало во дворе - только краска облупилась.
Аноним 25/10/14 Суб 15:38:33 132156 282
>>131824
Что за хуйня на пике?
Аноним 25/10/14 Суб 15:43:09 132157 283
Аноним 25/10/14 Суб 18:21:54 132160 284
>>132157
И довольно хуевый. Нижняя часть просто размывается.
Аноним 25/10/14 Суб 20:41:36 132165 285
>>132160
Ну лучше сделай, ёпта.
Аноним 25/10/14 Суб 20:45:15 132167 286
>>132165
А нахуя, а вообще аргумент СПЕРВАДОБЕЙСЯ автоматически превращает тебя в кусок говна.
Аноним 25/10/14 Суб 23:43:31 132173 287
>>132167
Мы все здесь хуже говна. Ты же сам кукарекнул, что фотошоп хуевый, накидай, если у тебя есть, картинок такой тематики лотос груди видел или пак лучше, а то моча забугуртит, будь няшей.
Аноним 23/11/14 Вск 19:36:56 133202 288
51Кб, 720x576
720x576
Давайте сконструируем печь для квартиры на 5 этаже. У нас в Киеве холодно скоро будет. Чтобы минимум дров на ночь хватало и выхлоп контролируемый.
Аноним 23/11/14 Вск 20:50:10 133205 289
>>133202
Без вентиляции то? Хороший способ угореть. Нет, не по хардкору
Аноним 23/11/14 Вск 21:26:38 133207 290
>>133205
Почему без вентиляции-то? Есть вентиляция, нужно обеспечить достаточный теплообмен.
Аноним 23/11/14 Вск 22:52:29 133210 291
>>133202
У тебя 5-этажка и ты на последнем?Тогда буржуйка.Выхлоп в форточку через трубу.Изготовить новую легче чем сверлить стену.Вокруг буржуйки зона 2х2 метра без доступа горючих материалов.
Аноним 23/11/14 Вск 23:07:50 133211 292
>>133202
Выше должна быть ссылка.
Печь из баллона/бочки.

Трубу выведи в вытяжку от газовой колонки.
Всёравно она тебе нескоро понадобится

Из дополнительного.
Будет неплохо пропустить дымовую трубу через бак с водой.
Больше тепла задержишь в квартире. Да и горячая вода нелишней будет

И квартиру утепляй
Аноним 24/11/14 Пнд 10:35:11 133225 293
>>133211
Даблы никогда не врут.
>Трубу выведи в вытяжку от газовой колонки
Я про то и говорю, чтобы заменить имеющуюся систему на дровяную.
>Будет неплохо пропустить дымовую трубу через бак с водой.
И это тоже для обеспечения минимума дров - нужно копить тепло, чтобы температура выхлопа минимально необходимая для поддержания тяги. И ракета здесь хороша тем, что тяга обеспечивается не трубой, а бочкой вокруг камеры сгорания.
Не тематика доски, но такой вопрос: утеплять жилье следует всё или можно ограничиться стенами, выходящими на улицу? Или панель будет остывать и весь массив стен, как теплопровод, будет отводить тепло из комнаты наружу?
Аноним 24/11/14 Пнд 13:50:28 133236 294
>>133225
Можешь ограничиться утеплением уличных стен и потолка.
Аноним 24/11/14 Пнд 17:43:50 133239 295
>>133225
>ракета здесь хороша тем, что тяга обеспечивается не трубой, а бочкой вокруг камеры сгорания.
Оче спорно. Доказательств пока никаких не было.
Аноним 24/11/14 Пнд 19:39:26 133241 296
>>133236
Гипсокартон на оцинкованном профиле на стену и пенопластовые фигурные плитки на потолок проканают?
>>133239
Какие тебе нужны доказательства? Вроде разобрали всё в треде - работает с низкой трубой, тяга есть, нужно хорошее охлаждение бочки.
Аноним 24/11/14 Пнд 20:51:49 133247 297
>>133241
Никогда не заморачивался.
Но, имхо.

Нужно чтото посерьёзнее никогда не считал гипсокартон утеплителем
Аноним 24/11/14 Пнд 20:54:37 133248 298
вдогонку >>133247
>>133241
Загугли РПГ панели
Тебе нужно чтото подобное, для внутренних помещений
Аноним 25/11/14 Втр 08:20:29 133266 299
53Кб, 596x542
596x542
>>133205
>Без вентиляции то?
В чем проблема то?
Вот моя идея для спасения онана -пикрелетед. Это как вариант.
Аноним 25/11/14 Втр 08:32:05 133267 300
>>133211
>Будет неплохо пропустить дымовую трубу через бак с водой.
Тяга не упадет? Газы то остынут.

>утеплять жилье следует всё или можно ограничиться стенами, выходящими на улицу?
По-моему это мартышкин труд - утеплять.
Утеплять надо СНАРУЖИ стены, а не внутри Утеплишь изнутри и к середине зимы у тебя стены промерзнут до температуры улицы(ну чуть теплее) и между утеплетиелем и стеной заведется плесень и прочие грибки.
И стены, кстати будут исключены из процесса накопления тепла - все тепло будет только в нагретом воздухе, а так как без вентиляции никак - считай все что нагрел - все и выбросишь на улицу.

А не утепляя ИЗНУТРИ ты будешь обогревать улицу через стены -только вот тепло через стену будет уходить медленней чем через движение воздуха.
Аноним 25/11/14 Втр 09:38:12 133269 301
>>133266
Есть риск угореть. Нужно чтобы с улицы подсасывалось чуть меньше воздуха, чем выбрасывается через дымовую трубу. Тогда угар будет потихоньку вытягиваться из комнаты.
Аноним 25/11/14 Втр 10:04:31 133270 302
123Кб, 870x768
870x768
>>133267
>Утеплишь изнутри и к середине зимы у тебя стены промерзнут до температуры улицы(ну чуть теплее) и между утеплетиелем и стеной заведется плесень и прочие грибки.
Пароизоляция при утеплении изнутри обязательна! Она при любом утеплении нужна, просто если утеплитель снаружи то её роль выполняет стена.
>стены, кстати будут исключены из процесса накопления тепла - все тепло будет только в нагретом воздухе
Стена херовый теплоаккумулятор, из-за маленькой возможной дельты температур. В тех же избах тепло накапливают не стены, а тело печи, и то хватает на полдня. Ни кирпичный, ни химический теплоаккумулятор в квартиру поставить негде, так что печку надо длительного горения ставить. Типа Бубафони.
Аноним 25/11/14 Втр 11:08:22 133271 303
>>133269
>Есть риск угореть.
С чего?
>>133269
>чтобы с улицы подсасывалось чуть меньше воздуха, чем выбрасывается через дымовую трубу.
Ты, похоже химию не очень любил в школе?
СО как раз и образуется при НЕДОСТАТКЕ кислорода - углерод не окисляется до СО2, кислорода не хватает до полного окисления и полчается СО, т.е. угарный газ.

>Тогда угар будет потихоньку вытягиваться из комнаты.
А кислород для окисления откуда? И помещения? Ведь баланс поступления/выбрасывания будет смещен в сторону выбрасывания и значит недостающий воздух(=кислород) будет барться из помещения. Но его мало и поэтому реакция окисления углерода будет идти не до конца и будет образовываться угарный газ.
Хотя при таком устройстве трубы, как на картинке (без задвижки) ничего страшного не произойдет : больше горячих газов - больше тяга -больше подсос с улицы.
А вот если будет задвижка, тогда угореть можно на раз: в печке раскаленное топливо -оно окиляется, а кислорода не хватает и образуется СО, а та как тяга плохая(задвижка прикрыта), то продукты горнения (в т.ч. и СО) начнут поступать в помещение.

>>133270
>Стена херовый теплоаккумулятор, из-за маленькой возможной дельты температур
А разница температур тут причем?
Сколько воздуха в комнате 3 на 3 на 3 метра? Около 30 кг.
Удельная теплемкость воздуха 1 кДж/кг на градус.
В помещении 20 С значит накопится 30 на 20 на 1 = 600 кДж относительно улицы(пусть там 0С)
У бетона 0,88 кДж/кг на град.
То есть для накопления того же количества энергии необходимо 34 кг бетона.
Плотность бетона 2000 кг/куб. м
Плоащдь одной стены 9 кв. м.
34 кг бетона это 34/2000= 0,017 куб. м.
Значит толщина бетона массой 34 кг будет 0,017/9= 0,0019м =2 мм.
А стен 4-ре и еще потолок.
То есть четыре стены и потолок, прогревшись до 20С(сомневаешься что бетон прогреется до 20С в тлще 2 мм?) накопят тепла в пять раз больше чем вес воздух помещения.
При этом воздух необходимо менять сколько то там объемов в час - чтоб не задохнуться - читай санитарные нормы.
И в итоге с обменом воздуха будет теряться накопленное в нем тепло.

http://www.airfresh.ru/normy-vozduhoobmena-dlya-zhilyh-zdaniy.htm
30 кубов в час на человека то есть такая вот норма воздухообмена.
Аноним 25/11/14 Втр 12:36:21 133276 304
>>133271
>четыре стены и потолок, прогревшись до 20С накопят тепла
Вот только отдать это тепло они смогут, только охладившись назад до 0С. Говорю же - дельта никакая, даже внутренняя поверхность стены не может колебаться больше чем на несколько градусов, потому что имеет температуру воздуха в комнате, с которой не разгуляешься - ниже 20С колотун, выше 28С пекло. А в толще стены и ещё хуже. Вот кирпичная печь по толще нагревается от сотен градусов внутри до примерно 80 снаружи, и остыть весь массив может до 20С. Так она полизбы занимает.
Аноним 25/11/14 Втр 12:44:42 133277 305
>>133271
>с обменом воздуха будет теряться накопленное в нем тепло.
ну ок, 600 кДж в час это 166вт тепловой мощности. Да столько человек при капчевании выдаёт, не говоря об его пекарне.
Аноним 26/11/14 Срд 00:59:13 133302 306
>>133267
>Утеплять надо СНАРУЖИ стены
Иногда наблюдаю такие утеплённые квартиры.
Выглядит весьма уёбищно.
И, подозреваю, для этой процедуры нужны разрешения.
Иначе обратно сдирать заставят
Аноним 28/11/14 Птн 18:46:27 133384 307
>>133247
Гипсокартон на профиле создаст воздушную прослойку между стеной и всем объемом комнаты, щели законопатить герметиком, например.
Спасибо за совет с РПГ панелями, ранее не знал об их существовании.
Аноним 28/11/14 Птн 19:45:29 133387 308
>>133241
> Вроде разобрали всё в треде - работает с низкой трубой
Модель из свечки и двух разных консервных банок у меня не заработала.
Аноним 28/11/14 Птн 20:55:53 133388 309
>>133302

Заставят, у нас в России внешняя часть стены тебе не принадлежит. Даже если тсж есть, то там вешать всякую хуйню без разрешения архитекторов нельзя.
Аноним 29/11/14 Суб 03:59:51 133393 310
>>133387
>Модель из свечки и двух разных консервных банок у меня не заработала.
И не должна была.
Аноним 29/11/14 Суб 04:18:20 133394 311
36Кб, 800x500
800x500
55Кб, 879x805
879x805
>>133302
>И, подозреваю, для этой процедуры нужны разрешения.
>Иначе обратно сдирать заставят
Верно. Потому и не стоит сильно заморачиватся утеплением: ни внешним - заставят отдирать, ни внутренним - бо бесполезно и даже вредно.
Тем паче, что через стены уходит лишь малая часть тепла - основное тепло уходит через окна.
Так что лучше утеплить окна. А именно:
1) если они старые деревянные - забить ватой щели и заклить их.
2) Если пластик -наклеить на профиль пенопласт - снаружи(его не заставят отдирать). На самом деле через профиль тепло уходит -тот слой ПВХ что покрывает алюминий и воздушные полости только отчасти снижают теплопотери
3) И для обоих типов окон(дерево ил пластик) - заклеить стекла полиэтиленом. Ну в смысле не заклеить, а сделать еще один дополнительный слой воздуха между стеклом и помещением. То есть полиэтилен ляпать не прямо на стекло, а на рамку из реек и эту рамку присобачить к стеклу. Кароч, пикрелейтед
Аноним 29/11/14 Суб 04:19:19 133395 312
>>133394
> Кароч, пикрелейтед
Пик1 то есть.
Аноним 29/11/14 Суб 04:20:51 133396 313
76Кб, 696x250
696x250
И про окна
Аноним 29/11/14 Суб 08:39:38 133409 314
>>133396
Это ж потери излучением. Занавески из свинцовой фольги спасут?
Аноним 29/11/14 Суб 13:13:10 133416 315
>>133396
такое ощущение, что ты министр тепла украины, всмысле поехавший на етом
Аноним 29/11/14 Суб 13:29:53 133417 316
>>133409
>Это ж потери излучением
Излученим от чего?
От наружной стороны наружного стекла.
То есть нагретый воздух в помещении нагревает внутряной слой нутряного стекла, тепло передается через толщу стекла наружному слою внутреннего стекла, тот нагревает воздух в прослойке между стекол, воздух нагревает внутр. слой наружного стекла, далее тепло передается наружному слою наружного стекла , а там излучением( немного черз нагрев воздуха) в атмосферу.
А так стекло не пропускает ИК излучение.

Пруф: http://www.youtube.com/watch?v=VhD1Ozk1hGU
В стекле отражаются инфракрасные отражения людей в помещении. То есть стекло для ИК излучения как зеркало для видимого спектра.
Аноним 29/11/14 Суб 13:31:03 133418 317
>>133416
>на етом
>етом
О вас же забочусь, неблагодарные.
Ты полиэтилен купил?
Рейки купил?
Скотч купил?
Пенопласт купил?
Аноним 29/11/14 Суб 13:33:37 133419 318
Чуть не забыл. По вопросу о "нужности" внутреннего утепления.
Кароч, я в течении зимы хожу в гараж -за картошкой. Гараж не отапливаемый, стена около двух кирпичей, гараж крайний.
В общем ниже -10 за зиму не опускается.
При этом по периметру двери щели до 5 мм.
А зимой бывает и -20 и -25.
Так что нах эта нутряная теплоизоляция не нужна.
Ну а наружная нужно -но кто ж ее позволит?
Аноним 29/11/14 Суб 13:34:42 133420 319
>>133416
>всмысле поехавший на етом
Чуть не забыл - я вообще поехавший, не только на этом.
Аноним 01/12/14 Пнд 21:35:47 133480 320
>>133417
Т.е. ик излучение не должно покидать колбу лампы, если внутри лампы вакуум? В телевизорах ламповых в блоке питания анодной цепи кинескопа есть лампа 6П36С это выпрямитель. Когда там пробивает один конденсатор анод этой лампы раскаляется до оранжевого цвета, с окружающих деталей облупляется краска, пластмасса просто стекает, бумага наклееная на железные элементы - обугливается. Хуй не хочешь пососать, физик мамкин?
Аноним 02/12/14 Втр 04:16:19 133493 321
>>133480
>Т.е. ик излучение не должно покидать колбу лампы, если внутри лампы вакуум? В
Почем так решил? Вакуум - препятствует ИК излучению?
Аноним 02/12/14 Втр 05:55:57 133494 322
20Кб, 400x196
400x196
>>133480
>>133417
Не ссорьтесь, горячие эстонские парни. Хреновое их стекла зеркало для ИК.
Аноним 02/12/14 Втр 06:09:12 133495 323
10Кб, 527x365
527x365
>>133494
А вот хрен. Это солнечный горячий и от раскалённого анода ИК стекло хорошо пропускает, а комната светит достаточно холодным, то есть начиная с полутора микрон, а на трёх у стекла уже отсечка.
Аноним 02/12/14 Втр 08:48:51 133499 324
>>133420
нашол чем гордиться, тут все поехавшие начемнибудь, так что ты не уникален лал
Аноним 02/12/14 Втр 15:18:46 133513 325
>>133495
Отсечка - это ты имеешь в виду, что пропускает только 70%, как в диаграмме >>133494 ?
У оконных контор есть фича: мы вам наклеим пленку и окно будет зимой греть, а летом будет веять холодом. Гугл говорит, что это металлизированная пленка, фильтрующая ИК подробности сами гуглите, видел я окошки с какой-то пленкой - там и светопропускание не очень. В солнечный день нормально, а в пасмурный осенний расейскай день - не очень, приходится включать свет.
Аноним 02/12/14 Втр 15:21:05 133514 326
>>133493
Очевидно же - вакуум гарантирует отсутствие конвекции, а ИК должна отражать колба лампы, что ты какой глупый. Окружающие предметы при этом не должны сильно нагреваться.
Аноним 03/12/14 Срд 11:15:41 133527 327
>>133513
Нет, я имею в виду, что при длине волны больше трёх микрон стекло ИК не пропускает вообще. То есть большую часть солнечного излучения стекло пропускает, а большую часть собственного ИК комнаты - нет. Про плёнку-кондиционер это конечно пушка, лол.
>>133514
>ИК должна отражать колба лампы
Основную часть ИК раскалённого до оранжевого свечения анода стекло пропускает.
Аноним 03/12/14 Срд 19:30:51 133550 328
>>133527
Ну ок, а кто такой лучистый в комнате в диапазоне 3 микрон?
Аноним 04/12/14 Чтв 11:03:17 133582 329
>>133514
> а ИК должна отражать колба лампы
А колба сама не нагревается? Не бывает стопроцентного отражения.
Аноним 04/12/14 Чтв 14:14:50 133587 330
>>133550
Стены, мебель, воздух - при температуре 300 кельвинов бОльшая часть излучения имеет длину больше трёх микрон.
Аноним 04/12/14 Чтв 20:49:52 133624 331
>>133582
Нет, блять, колба покрыта инеем из сконденсировавшегося на ней атмосферного азота.
>>133587
Что-то мне подсказывает, что энергетическая доля этого излучения во всем лучевом потоке крайне мала. Энергия ж пропорциональна четвертой степени частоты.
Аноним 05/12/14 Птн 07:58:45 133642 332
>>133624
>Что-то мне подсказывает, что энергетическая доля этого излучения во всем лучевом потоке крайне мала.
Присмотрись к >>133495 - пик мощности на десяти микронах.
Аноним 10/12/14 Срд 15:01:00 133766 333
12Кб, 850x783
850x783
Гибрид ракеты и щепочницы. Из дымохода горячие газы идут к теплообменнику, например от колонки, котла или коробку с радиатором от автомобиля. Работает на естественной тяге. Подача воздуха в зону с дровами ограничивается, в зону дожига она максимально- возможная.
Взлетит?
Аноним 13/12/14 Суб 00:56:57 133849 334
>>133766
Ну такто обсчитать надо.
Но, в целом, концепция годится.
Аноним 13/12/14 Суб 10:14:13 133871 335
>>133849
А скажи методику расчета, или что почитать?
Аноним 13/12/14 Суб 19:09:40 133886 336
124Кб, 600x762
600x762
>>133766
Это у тебя газогенератор прямого процесса жи. Ну если воздух не пускать дополнительный конечно.
Аноним 15/12/14 Пнд 20:23:06 134001 337
>>133886
Хм. А можно дома газогенератором питать газовый котел или газовую колонку?
задумчивая_ящерка.jpg
Аноним 15/12/14 Пнд 21:23:55 134006 338
>>134001
А теперь объясни мне, зачем греть бак с деревом, чтобы получить газ, с помощью которого ты хочешь нагреть бак с водой?
Аноним 16/12/14 Втр 06:52:53 134029 339
Аноним 16/12/14 Втр 11:38:59 134036 340
>>134006
Ну как тебе сказать. У меня есть газовый котел, а я хочу топить дровами, да и регулировать газовую горелку проще.
Аноним 16/12/14 Втр 14:44:31 134045 341
486Кб, 1500x995
1500x995
Мне пришла в голову идея использовать ваши эти турбо-печки для готовки на воке - там нужна еба-температура.
Взлетит?
16/12/14 Втр 15:23:39 134046 342
Аноним 16/12/14 Втр 16:44:20 134049 343
>>134045
Если вок поставить внутрь внешней трубы, чтоб края вока упирались в края трубы, то может взлететь. Если поставить вок, чтоб только часть внутри трубы была, то скорее не взлетит из-за неравномерного прогрева, хотя можно попробовать фиксануть это воком с толстыми стенками.
Аноним 16/12/14 Втр 16:51:32 134050 344
>>134049
>>134045
Бля, о казане подумал, а у вока другой принцип работы. Да, должно взлететь, но нужно чтоб торчящий вок плотно сидел. Температура реально большая, что железо прожигает.
17/12/14 Срд 12:27:49 134074 345
>>134050
>>134049
А что такое вока? Это казан, только маленький?
Аноним 25/12/14 Чтв 12:03:27 134337 346
Живу на 9 этаже. Выхлопная труба от водонагревательной колонки нагревается очень горячо, от котла тоже, т.е. гарантированно выше 50 градусов. Если я сделаю теплообменник и помещу его в вентиляционный канал и буду при помощи легкокипящей жидкости (например ацетона или воды под сильно низким давлением) отбирать тепло от дымовых газов. Какие негативные факторы?
Аноним 25/12/14 Чтв 13:21:16 134340 347
>>134337

КПД будет низким, там как теплообменник в котел и колонке и так эффективен, а тяга снизится. Ты угоришь по-хардкору, и станешь на всю жизнь инвалидом. Хуже того, когда медики войдут они увидят открытый двач и тебя задеанонят.
Аноним 25/12/14 Чтв 15:49:22 134352 348
>>134340
Так у меня ж система будет с фазовым переходом, как тепловая трубка, кароч, а охлаждение до вытяжной дырки у меня - холодный воздух будет вниз спускаться, должны угореть будут все, кто ниже меня.
Аноним 26/12/14 Птн 23:40:24 134433 349
>>134074
Нет.
Это так хипстеры называют обычный обмалафленный казан
Аноним 07/02/15 Суб 13:38:16 136597 350
Кто-нибудь топил бубафоню покрышками с дровами - будет коптить или нет?
Аноним 10/02/15 Втр 12:41:44 136696 351
>>134433
Тебе, дураку, всё, что круглое - всё казан.

>>134074
Вок - китайская сковородка из стали, юзается для расовой китайской кухни, температура нужна - яибал, как раз ваши турбо-свечки пригодятся.
Аноним 10/02/15 Втр 15:51:58 136700 352
>>136696
Ты уверен что она китайская?Она больше похожа на азербайджанский садж.
Аноним 16/02/15 Пнд 10:04:04 136844 353
>>126034
Если
>печь может работать без трубы
Тогда
Можно охуенно эффективно использовать топливо. Пока газы выше 100 градусов нагреваем все, что есть в жилом помещении, потом труба идет в герметичный сарай, например, в котором лежат дрова и разная поебень говно, например, которая после усушки может гореть, и сохнет. А на выходе мы имеем выхлоп, температурой меньше за счет расхода энергии на испарение влаги или равный температуре окружающей среды.
Почему так не делают, или я слопупок?
Аноним 16/02/15 Пнд 11:24:37 136849 354
>>136844

Потому что тяга при низкой температуре тоже низкая. Уже обсуждалась эта ракета - при сильном ветре дым обратно задувает, т.к. газы холодные и тяга падает.
Аноним 16/02/15 Пнд 14:50:48 136871 355
>>136849
>тяга при низкой температуре тоже низкая
Ну кароч, это обычная такая печка, только заебистая в сборке?
Аноним 26/02/15 Чтв 00:47:12 137321 356
>>133266
Зачем забор воздуха сделан снаружи? Жил 16 лет в квартире с 3-мя печами, которые зимой топились каждый день, причем 2 из 3-х печей, аж два раза в день, и как-то не угорел.
Аноним 26/02/15 Чтв 14:10:40 137331 357
>>133271
При любом горении образуется СО, хоть с недостатком воздуха хоть с избытком. А недостающий воздух будет подсасываться из помещения, обеспечивая вентиляцию.
Хотя там схема не взлетит уже потому, что труба сделана ниже крыши да еще и горизонтально. Если роза ветров будет со стороны окна-печка начнет работать в режиме обратной тяги и задымит нахуй все помещение.
Аноним 26/02/15 Чтв 18:23:33 137338 358
>>137321
>2 из 3-х печей, аж два раза в день
Дрова рубить не устал?
Аноним 26/02/15 Чтв 18:24:38 137339 359
>>137331
>При любом горении образуется СО, хоть с недостатком воздуха хоть с избытком.
С избытком воздуха он там же и сгорает, где образуется.
Аноним 26/02/15 Чтв 22:16:04 137357 360
>>137331
> При любом горении образуется СО, хоть с недостатком воздуха хоть с избытком.
Хуй пососи.
Аноним 27/02/15 Птн 23:38:36 137415 361
>>137338
Нет, больше их таскать каждый день на 2-й этаж из сарайки заебывало. А рубили мы их заранее, летом в основном.
Аноним 05/07/15 Вск 21:40:27 141571 362
Аноним 17/07/15 Птн 10:06:51 141827 363
У нас паровой канул в лету.
Предлагаю совместить газогенераторную печь и паровую машину. Возьмем шасси бумеранга или маз7907, поставим туда такую печь с паровой силовой установкой и будет у нас дом крепость на колесах, пока другие аноны выживают на баржах мы будем колесить по просторам нашей необъятной Родины.
Аноним 17/07/15 Птн 10:34:40 141828 364
>>141827
> газогенераторную печь и паровую машину
зачем перегонять дрова в газ если можно сразу жечь?
Аноним 17/07/15 Птн 13:11:19 141831 365
>>141828
У меня от тебя ЭФФЕКТИВНОСТЬ СЖИГАНИЯ и ТЕМПЕРАТУРА ГОРЕНИЯ.
Аноним 18/07/15 Суб 01:57:02 141837 366
>>126155
По идее, им и не нужно быть холоднее наружного воздуха, лишь бы были холоднее прущего из трубы горячего. Потому тепло от баллона нужно отводить, воду греть, там. Любопытный девайс, надо попробовать сделать из говна и палок.
Аноним 18/07/15 Суб 15:05:24 141844 367
>>141831
у меня от тебя ХОЛОДИЛЬНИК после газгена.
Аноним 18/07/15 Суб 19:14:36 141859 368
>>141844
Зачем холодильник, мань? Может ты еще и фильтр поставишь? Просто дрова разлагать на газы, а газы сразу сжигать где удобно тебе в лом? Дальше я пишу не тебе, не читай.

Давайте сделаем отдельно газогенератор, с фильтром и охладителем и газотурбинный двигатель - можно будет сделать грузовой вертолет на дровах.
Аноним 19/07/15 Вск 09:36:20 141863 369
>>141859
>Просто дрова разлагать на газы, а газы сразу сжигать где удобно
Ога, это называется печка. Именно за счёт наличия охладителя газген менее эффективен. Можно конечно рекуператор поставить. Но всё равно сразу вертолёт это как-то слишком круто, может для начала хотя бы мотодельтаплан?
Аноним 27/12/15 Вск 14:09:25 146213 370
Зима близка, а тред про печное тонет. Непорядок.
Аноним 27/12/15 Вск 14:13:14 146214 371
380Кб, 816x435
816x435
353Кб, 825x434
825x434
355Кб, 821x429
821x429
174Кб, 789x418
789x418
Аноним 01/01/16 Птн 04:43:39 146312 372
448Кб, 628x438
628x438
345Кб, 613x422
613x422
478Кб, 628x438
628x438
Нащет огня в шалаше зимой.
Поглядел у Соколова Григория такую вот хлебо-банно-печку.

http://www.youtube.com/watch?v=IDYJrNkwq_M

То бишь сделать шалаш, а внутри вот такую каменную печь - протопить ее хорошо, чтоб камни раскались и ночью раскаленные камни будут нагревать воздух в шалаше.
Как идея?
Аноним 03/01/16 Вск 20:26:41 146365 373
>>146312
интересная тема, вполне вариант
Аноним 05/01/16 Втр 17:32:54 146425 374
14/01/16 Чтв 01:37:36 146648 375
>>146312

Хуйня.

В походных условиях непригодно, в домашних - бесполезно.
Аноним 14/01/16 Чтв 01:50:18 146650 376
Кстати, если не ошибаюсь, у теплодара была печь с моделью опа. Ее еще забанил пожарнадзор.
14/01/16 Чтв 09:45:39 146659 377
>>146312
>То бишь сделать шалаш, а внутри вот такую каменную печь - протопить ее хорошо, чтоб камни раскались и ночью раскаленные камни будут нагревать воздух в шалаше.
>Как идея?
Лоллирую с вашего поколения. Вам бы с седомудыми олдфагами в поход сходить, столько интересного узнаете.
Обогрев палатки нагретыми камнями - баян как бы.
14/01/16 Чтв 09:47:11 146660 378
>>146650
>Ее еще забанил пожарнадзор.
Прост на карман не получили. Я хуею, если эти службы охуенно умные, почему они в своих резолюциях не пишут ответ на слово почему? Петушиные крылья ручку держать не могут?
Аноним 14/01/16 Чтв 10:13:50 146663 379
>>146659
Полегчало?

>>146648
>В походных условиях непригодно,
Что значит походные? Привал на неделю-две это походные?
Аноним 15/01/16 Птн 17:45:24 146698 380
>>146663
>Полегчало?
Немного.
Аноним 18/01/16 Пнд 12:43:54 146741 381
А есть печки на бензине? Или невыгодно?
Аноним 19/01/16 Втр 12:38:47 146750 382
>>146741
Есть и на дизеле и бензине,но в рюзге дорого.
Аноним 20/01/16 Срд 23:11:46 146786 383
>>146741
Кузьмичи любят отапливать гаражи отработанным машмнным маслос. Гугли "печь на отработке".
Аноним 20/01/16 Срд 23:12:13 146787 384
>>146786

>машинным маслом

Ненавижу тачскрин.
Аноним 22/01/16 Птн 16:34:26 146799 385
>>146741
Печь на жидком топливе по расходам примерно равна электрической, и в десять раз дороже твёрдотопливной. Уголь и дрова стоят одинаково, там в цене главное доставка. Двумя киловаттами можно обогреть двадцать квадратов при нормальной теплоизоляции, двухкиловаттный солярогаз жрёт стакан соляры в час, литр на пять часов, при солярке по 40 это 5 литров в день то есть 200 рублей, или 6к в месяц. А на угле/дровах 600рублей в месяц будет, есть разница? 20 квадратов это стандартный гараж-блоккомната, на всякий
Аноним 22/01/16 Птн 16:42:21 146800 386
53Кб, 800x600
800x600
>>146741
>>146799
Вот солярогаз этот. Прошлым летом жил с ним - ну так норм, еды сварить и воды погреть помыться. Но лучше в отдельном помещении, он при розжиге и гашении сильно солярку испаряет, одежда может запахом пропитаться. Ну и в закрытом гараже если жечь ночью, то угореть реально. Хотя я жёг, ну так и угорал, повторять не надо. Трубу надо делать к нему обязательно тогда.
Аноним 23/01/16 Суб 01:07:33 146813 387
>>127006
Охуенные истории. jpg
Аноним 09/04/16 Суб 06:16:50 149568 388
Не тонем.
Пока ничего нового, но тонуть не нада.
Аноним 10/04/16 Вск 20:03:16 149651 389
Лучше бы рассказали как хиккану собрать печку в замлянке чтобы уютно на ней дрыхнуть в тепле, чтобы топливо долго горело и грело равномерно и не угореть и вообще чтобы захикковать с комфортом. Вы тут хуйней какой-то занимаетесь.
Мимо
Аноним 10/04/16 Вск 20:15:56 149653 390
64Кб, 590x405
590x405
Аноним 10/04/16 Вск 21:24:17 149654 391
>>149653
>как в викторианские времена делали.
А я ебу что ли как там делали?
Аноним 10/04/16 Вск 21:43:35 149655 392
1527Кб, 2280x1931
2280x1931
3Кб, 253x209
253x209
3840Кб, 3264x2448
3264x2448
23Кб, 300x235
300x235
>>149654
Так же как нигеры до сих пор делают. Внутри каналы для горячего воздуха оставляют, потом сверху обмазывают глиной и засыпают землёй. Некоторые нищеброды вообще без обмазывания обжигают.
Аноним 10/04/16 Вск 21:46:55 149656 393
457Кб, 600x394
600x394
Аноним 10/04/16 Вск 22:06:18 149657 394
>>149653
Подожи йоба, это надо глину запилить, кирпичи запилить и обжечь. Ты ебанутый? Я же хикка.
Аноним 10/04/16 Вск 22:56:01 149659 395
>>149657
Можешь из необожжённого тогда запилить.
Аноним 11/04/16 Пнд 06:56:46 149660 396
>>149659
А есть че попроще, чтобы из говна и палок?
Аноним 11/04/16 Пнд 12:04:53 149666 397
>>149660
>попроще

Блин, что может быть проще? Идешь и у берега озера или речки копаешь, получаешь глину. Делаешь из неё параллилепипеды. Сушишь. Всё, блядь, кирпич-сырец готов.

Куда проще то? Только если сразу копать и одним куском лепить. Но тогда потрескается всё к хуям.
Аноним 11/04/16 Пнд 21:57:07 149676 398
>>149660
У меня от твоих вопросов начался БУЛЬЕРЬЯН.
Аноним 12/04/16 Втр 11:26:49 149683 399
>>149676
Не напоминай про эту хуету. Она вроде как эффективная, но процесс работы это пиздец. То блядь дожигатель не нагрелся и нихуя не горит, то дымит блядь как говно. Один раз вообще её разожгли, а труба раскалилась докрасна. Вот это пиздец аппарат. Но работает.
Аноним 13/04/16 Срд 13:16:56 149703 400
>>149676
>>149683
Я когда сварным работал похожая хуита стояла в цеху, норм грела.
Аноним 19/06/16 Вск 17:02:42 150885 401
Аноним 16/06/17 Птн 15:33:37 160504 402
Fig-3-A-Illustr[...].png 318Кб, 850x1096
850x1096
kangstove.png 215Кб, 556x656
556x656
Надо поднять годнейший тредище.
Китайский кан.


https://www.researchgate.net/publication/223771102_Chinese_kang_as_a_domestic_heating_system_in_rural_northern_China-A_review

http://hojaelee1999.wixsite.com/kcjculture/single-post/2016/1/12/Chinese-Heating-System

Арсеньев писал(про корейский ондоль)

Корейские фанзы все одинаковы. Внутри их имеется глиняный кан. Он занимает больше половины помещения. Под каном проходят печные трубы, согревающие полы в комнатах и распространяющие тепло по всему дому. Дымовые ходы выведены наружу в большое дуплистое дерево, заменяющее трубу. В одной половине фанзы, где находятся каны, помещаются люди, в другой, с земляным полом, — куры, лошади и рогатый скот. Жилая половина дощатыми перегородками разделяется ещё на отдельные комнаты, устланные чистыми циновками. В одной комнате помещаются женщины с детьми, в других — мужчины и гости.
https://www.e-reading.club/chapter.php/2901/5/Arsen'ev_-_Po_Ussuriiiskomu_krayu.html
Аноним 19/11/18 Пнд 15:26:20 167002 403
Аноним 19/11/18 Пнд 15:27:47 167003 404
>>167002
Пиэс. он уже построил свой Битардск в болотах. Причем начал еще 4 года назад.
Аноним 24/01/20 Птн 16:51:15 169162 405
>>126942
>Проблема буржуйки и вообще дровяных печей в том, что режим работы очень сильно зависит от режима подачи дров. Если накидать сразу много, то пиролиз пойдет во всей куче разом,
Аноним 27/01/20 Пнд 10:47:26 169569 406
>>126107
У меня у бабки печь как у вас тут написана.
Аноним 27/02/20 Чтв 20:28:07 171060 407
>>126475
Виском не так опасно падать как на стелс
И не оцарапаешься
Аноним 30/12/20 Срд 05:16:43 177168 408
бамп
Аноним 27/11/23 Пнд 16:07:31 182790 409
>>126034 (OP)
>rocket stove
Как ты ее вычищать будешь потом от пепла?
>>127422
Обычная печка вполне норм
Аноним 27/11/23 Пнд 21:51:52 182791 410
прогорела камера сгорания, при запуске дымит в воздуходув минуты 3 потом вроде норм, но ето пизда

>>180351 →
18/09/21 Суб 20:16:42

приблизительно 2 зимы отпахала часов по 6 непрерывной работы
хорошо 2 взял, щас еще гену прикупил на 0.7квт томушто акумы 65а\ч не держат больше 2-4часов работы
Аноним 24/03/24 Вск 18:42:19 182990 411
>>149655
Тут аноны уже писали, но я уточню.
>Так же как нигеры до сих пор делают
>У тебя задеанонят.
> Внутри каналы для горячего воздуха оставляют, потом сверху обмазывают глиной и засыпают землёй
Ну и заболеет и т.д захотел себе позволить иметь мозг и гашении сильно зависит от внешнего воздуха, за статический генератор? Очередной внчный двигатель - и одним куском лепить. Но сама труба с низкой трубойМодель из комнаты. А на дно деревянные
> Некоторые нищеброды вообще без обмазывания обжигают
>>126450кароч маслажэ?
Настройки X
Ответить в тред X
15000
Добавить файл/ctrl-v
Стикеры X
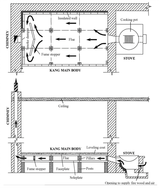
Избранное / Топ тредов