Главная Юзердоски Каталог Трекер NSFW Настройки

Домострой

Ответить в тред Ответить в тред
Check this out!
<<
Назад | Вниз | Каталог | Обновить | Автообновление | 137 50 32
Кухни тред Аноним 25/11/24 Пнд 02:39:35 343639 1
IMG4981.jpeg 65Кб, 712x492
712x492
Аноны, есть вопрос по поводу кухни, не нашел кухонь тред поэтому создал

Нашёл классный плагин для SketchUp, который вроде даже материалы может подсчитать. Думаю заебашить там проект кухни и отдать на распил. Потом просто закупить все недостающее - петли, механизмы и прочую хуйню.

Сам я слишком ленив для сборки этого говна, поэтому хочу отдать сборщику мебели (такие наверняка существуют, да?)

Как думаете, рабочий вариант?

Не то чтобы я хочу кого-то объебать, просто немного охуел (мягко говоря) от нынешних цен на кухни (дс2). Реально не понимаю, схуяли они стали стоить миллионы. Только что читал тред в архиве - так там аноны ещё в 19 году охуевали от кухни за 150к. Кароче говоря хочу нормальную добротную кухню, максимально близко к маня-фантазиям дизайнерок из пинтереста, но с поправкой на практичность.

Буду рад любым советам по поводу дизайна / проектирования / материалам / и остальным нюансам хуянсам и житейского опыта в кухонных делах. Всем добра
Аноним 25/11/24 Пнд 04:36:34 343641 2
>>343639 (OP)
>охуел (мягко говоря) от нынешних цен
ZOV (но салоны говно, рисуй сам)

>Как думаете, рабочий вариант?
Ну такое.

>Буду рад любым советам по поводу дизайна
План помещения с размерами, где окно, стояк. Лучше квартиры всей.
Аноним 25/11/24 Пнд 06:22:46 343644 3
Было не раз в мебелетреде - весь этот гемор позволит получить изделие немагазинного качества и конфигураций. Дешевле заводских модулей не выйдет.
Аноним 25/11/24 Пнд 08:12:06 343650 4
>>343639 (OP)
Нижние шкафы - только выдвижные. Исключение - под раковиной, там распашные дверки.
Но это платина, по другому сейчас в здравом уме никто не делает.
Аноним 25/11/24 Пнд 11:14:51 343671 5
>>343639 (OP)
> Думаю заебашить там проект кухни и отдать на распил. Потом просто закупить все недостающее - петли, механизмы и прочую хуйню.
Это было актуально 10 лет назад. Теперь отдавая на распил ты отдашь столько же или больше, чем конторе. Не еби мозг, найди дешёвый магаз и закажи дешманскую кухню.
Аноним 25/11/24 Пнд 11:43:45 343676 6
>>343671
Леруашные кухни норм? Или они модульные и там столешница не цельная?
Аноним 25/11/24 Пнд 13:40:21 343685 7
image.png 522Кб, 1716x1462
1716x1462
>>343641
> ZOV (но салоны говно, рисуй сам)
что такое ZOV? название кухонщиков?

Рисовать тоже думал сам (в любом варианте). Спасибо, хотелось подтвердить этот тезис, что за тебя думать особо не будут.

> План помещения с размерами
Если интересно вот приложу часть кухни, вчера набросал быстро, кухня аля-гостинная получается

Кароче как я и подозоревал, анон-консенсунс выходит – не ебать мозги и идти заказывать кухню.
Аноним 25/11/24 Пнд 13:43:07 343686 8
>>343671

> и закажи дешманскую кухню.

я ж вроде написал, мне дешманская кухня нахуй не сдалась – но и переплачивать за хуй знает что, тоже не хочется.
Аноним 25/11/24 Пнд 13:44:47 343687 9
>>343639 (OP)
>Нашёл классный плагин для SketchUp, который вроде даже материалы может подсчитать. Думаю заебашить там проект кухни и отдать на распил. Потом просто закупить все недостающее - петли, механизмы и прочую хуйню.
1. снимаешь размеры
2. записываешься в лемана про
3. проектируешь кухню
4. получаешь спецификацию с наполнением для оплаты
5. платишь и через 2 дня тебе привозят ее
Аноним 25/11/24 Пнд 13:48:36 343688 10
>>343676
норм. только тебе нужны у них не именно "модульные кухни", а кухни по проекту. это по факту аналог кухонь икея, чухня всю нишу отдала добровольно, а леруа подхватили. в ней много модулей, из которых собирают по твоему размеру, фасады и столешницу выбираешь по вкусу.
я просто пришел в леруа, тыкнул понравившуюся и не менял цветовые решения, даже ручки не менял
моя кухня длиной 4,20, без техники чисто мебель обошлась в 118 тыс пару дней назад. с техникой 210 тыс.
ОП 25/11/24 Пнд 13:52:36 343689 11
Еще хотел спросить по поводу вентиляции, как люди выводят общедомовую вентиляцию с кухнями в потолок, все проекты которые видел (за последние пару недель ресерча) походу просто забивают хуй на вентиляцию и делают только вытяжку над плитой.
Аноним 25/11/24 Пнд 14:00:20 343690 12
>>343689
>как люди выводят общедомовую вентиляцию с кухнями в потолок
можно либо внутри части навесного шкафа сделать выход, так же можно трубы на верху навесных корпусов смонтировать и закрыть верхним цоколем. вентиляцию необходимо делать пассивной, подключая вытяжку очень желательно оставлять еще и естественную вентиляцию, либо раздельно, либо соединив и поставить обратный клапан
Аноним 26/11/24 Втр 01:25:29 343749 13
>>343685
Это хорошая недорогая крупная фабрика. Они особенно отлично работают с шпоном ясеня. Да и с прочими материалами при условии готового проекта у них все ок, ты можешь пощупать их в Нева Тауэрс в Сити.

Ты извини, что отвечаю долго. На меня много всякого валится ИРЛ. Я обязательно посмотрю план твоей кухни и покажу тебе то, что вижу там.
Аноним 26/11/24 Втр 01:58:36 343750 14
>>343685
И еще, я хотел бы получить комментарии, где в этой кухне вход и проч. Комплектацию кухни тебе сделают бесплатно везде. Тебе нужно по модулям нормально собрать.
Аноним 26/11/24 Втр 02:05:11 343751 15
1000-ARTHUNTER-[...].jpeg 197Кб, 1000x1249
1000x1249
gde-na-kuhne-ra[...].webp 45Кб, 718x800
718x800
>>343685
P. P. S.
Все еще сорри за рванные ответы. Смотри какое дело: у тебя рабочая поверхность меньше паковки для техники вышла, но это еще ладно. Когда ты делаешь одиночную колонну, тебе нужно выставлять по фасадной плашке слева и справа, иначе ты получишь плохой угол.

Пик1 как надо. Пик2 - не надо тебе такого угла.

НО это частности. Мне надо прям планировку сделать по модулям. Я должен понимать еще, где окно и проч. Ну и про входы не забывай. Короче, дай план БТИ. :-)
Аноним 26/11/24 Втр 05:31:46 343756 16
>>343751
На второй пикче как-то удобней.
Аноним 26/11/24 Втр 10:19:31 343765 17
>>343676
>Или они модульные
Они модульные. Но у них есть дешманские модульные, а есть серия хороших кухонь delinia id с хорошими корпусами, фурнитурой, лаконичными фасадами.
> там столешница не цельная?
Там тебе могут за 6000 рублей сделать еврозапил с клеем, стяжками и аккуратным швом.
Аноним 26/11/24 Втр 10:26:42 343766 18
IMG-20241121-WA[...].jpg 83Кб, 1600x1200
1600x1200
Screenshot20241[...].jpg 218Кб, 1080x1062
1080x1062
>>343685
Не еби мозги и иди в Леруа. Хоть каждый день ходи проектируй. Я пока нарисовал себе часть кухни, чтобы можно было пользоваться уже, через 2 дня привезли, сборка с еврозапилом вышла в 30к. Часть с двумя пеналами, духовкой и СВЧ, а так же остров сделаю после нг.
Аноним 26/11/24 Втр 11:57:44 343782 19
>>343756
Да дело в примыкании там. Речь о том, что встройка духовка, если она краю колонны, сбоку будет иметь неприкрытый край. Поэтому его надо обязательно закрывать, что делают по умолчанию только в лютом премиуме.

Обе кухни такие себе прям. Как и любые угловые.

>>343766
У тебя хорошо все, кроме пропорций острова. 3000 на 900 - это минимальная номинальная величина адекватного острова.
Аноним 26/11/24 Втр 12:24:26 343785 20
>>343782
>3000 на 900 - это минимальная номинальная величина адекватного острова.
серьезно? это же размером почти с кухню, просто огромный получается. если у тебя был опыт пользования островом расскажи плиз почему нужно большой.
Аноним 26/11/24 Втр 13:32:26 343795 21
Screenshot 2024[...].png 725Кб, 2146x1886
2146x1886
>>343751

> Пик1 как надо. Пик2 - не надо тебе такого угла.

Спасибо Анон, Оп на связи – ты прям читаешь мои мысли, примерно такую же историю и планировал как на пике 1. Что меня смущает, это тот факт, что позади колонны не будет стены на всю длину, и как вся эта конструкция будет держаться

> ты можешь пощупать их в Нева Тауэрс в Сити.
спасибо, попробую найти их в спб, пока планирую тур по кухонным шоу румам, посмотреть и потрогать чего нового нынче появилось (поохуевать от цен).

Настоятельно советуют посетить леруа, х3 насколько там поменялось чего за столько лет – но подозреваю, что мои ожидания не оправдаются. Чем вообще фабрики отличаются от не фабрик? Лет 10 назад все что из леруа/икеи было, смотрелось настолько хуево, что даже не подходил к ним.

> И еще, я хотел бы получить комментарии, где в этой кухне вход и проч.

лол, не хотел всю хату скидывать но лан, отдаю на откуп анонам. Нюансы такие: Кухонный аппедникс думаю убрать нахуй (сравни с первой фоткой), чтобы воткнуть холодильник встроенный, мож еще место для шкафчика сзади останется. Вывод воды из пола (две аленькие дырки), проходит по стяжке, подозреваю его можно перенести куда надо, но как обычно чем меньше ломать, тем меньше строить. Вытяжки (бытовая и кухонная из соседней комнаты идут), канашка обозначена кругом побольше. Пока вот набил квадритики по 60см.

ПС вместо микроволновки уже как лет 5 юзаю духовой шкаф со встроенной микроволновкой, походу дизайнерки еще не в курсе этой темы
Аноним 26/11/24 Втр 17:40:26 343818 22
Привет, анончики

В будущем планирую менять кухню и делать шкафы прям в потолок. Соответственно придётся сверлить дырки под дюбеля, чтобы шкафчики вешать на них. Знаю, что за стенкой у соседей ванная комната, и частенько слышу их воду. Как не проебаться и не прохуярить трубу? Есть ли какие-то металлодетекторы?
Аноним 26/11/24 Втр 18:01:10 343822 23
photo2024-11-26[...].jpeg 84Кб, 905x1280
905x1280
Снимок экрана 2[...].png 2774Кб, 1662x1672
1662x1672
>>343785
2700 (3 по 900) самый минимум. Пик1 - 3000 (5 по 600). Проходы 1200+. Остров без зоны головки, раковины и плиты - не остров. В архитектуре (и дизайне) супер важны пропорции.

Хочешь меньше и просто расширить рабочку/перекусить, возьми икеевский (пик2).

>>343795
>найти их в спб
Сами кухни в салоне там смотреть смысла нет. Они могут быть говном. Это же конструктор.
>Настоятельно советуют посетить леруа
Дешево и сердито.
>Чем вообще фабрики отличаются от не фабрик?
Фасады, наличие готовых решений сложных примыканий для островов, умение работать с деревом, металлом, камнем (в том числе на фасадах), у некоторых даже столешки свои.

Техническая база - это ЛДСП Еггер 18 мм. Фурнитура Hettich или Blum.

Большинство салонов своих производств имеют.
>отдаю на откуп анонам
И еще мне надо бы знать, есть ли там постирочная. Судя по всему, один санузел из спальни, а постирочная организуется в трех маленьких помещениях слева снизу?
>походу дизайнерки еще не в курсе этой темы
Давно в курсе. Раздельные лучше. Мыть проще, работают одновременно. Хотя смотря какие. Но решение норм, потому что дешевле.

Я потыкаю ближе к ночи или завтра, если на меня опять кто-нибудь не залезет.
Аноним 26/11/24 Втр 19:07:13 343825 24
>>343822
> организуется в трех маленьких помещениях слева снизу?
Совершенно верно

> И еще мне надо бы знать, есть ли там постирочная
А какая вообще связь между постирочной и кухней?

> Техническая база - это ЛДСП Еггер 18 мм.
На вскидку если оценивать, мдф на скок дороже будет? На скок я помню с лдсп не видать ручек интегрированных (хотя может быть что-то поменялось уже)
Аноним 26/11/24 Втр 22:58:42 343831 25
>>343825
>ручек интегрированных
Кал для промытых рекламой долбаёбов.
Аноним 27/11/24 Срд 09:44:22 343840 26
>>343825
>Совершенно верно
Ну ща посмотрим.
>А какая вообще связь между постирочной и кухней?
В мокрой зоне, может организовываться рядом с кухней или из кухни.

В кухне часто делают хоз помещение. Довольно типовое решение, причем необязательно стенками, даже у кухонных фабрик часто встречается (только в лухари). Здесь - не нужно.
>На вскидку если оценивать, мдф на скок дороже будет? На скок я помню с лдсп не видать ручек интегрированных (хотя может быть что-то поменялось уже)
Речь про каркас. Фасады только МДФ.
Аноним 27/11/24 Срд 12:11:09 343855 27
Untitled 202411[...].png 2357Кб, 1860x1075
1860x1075
>>343825
>>343795
>>343685
>>343639 (OP)
И так:

Угловые кухни - чаще всего идиотизм, в угол ты никогда не залезешь, он слишком глубокий. Считать эффективный размер надо по фронту.

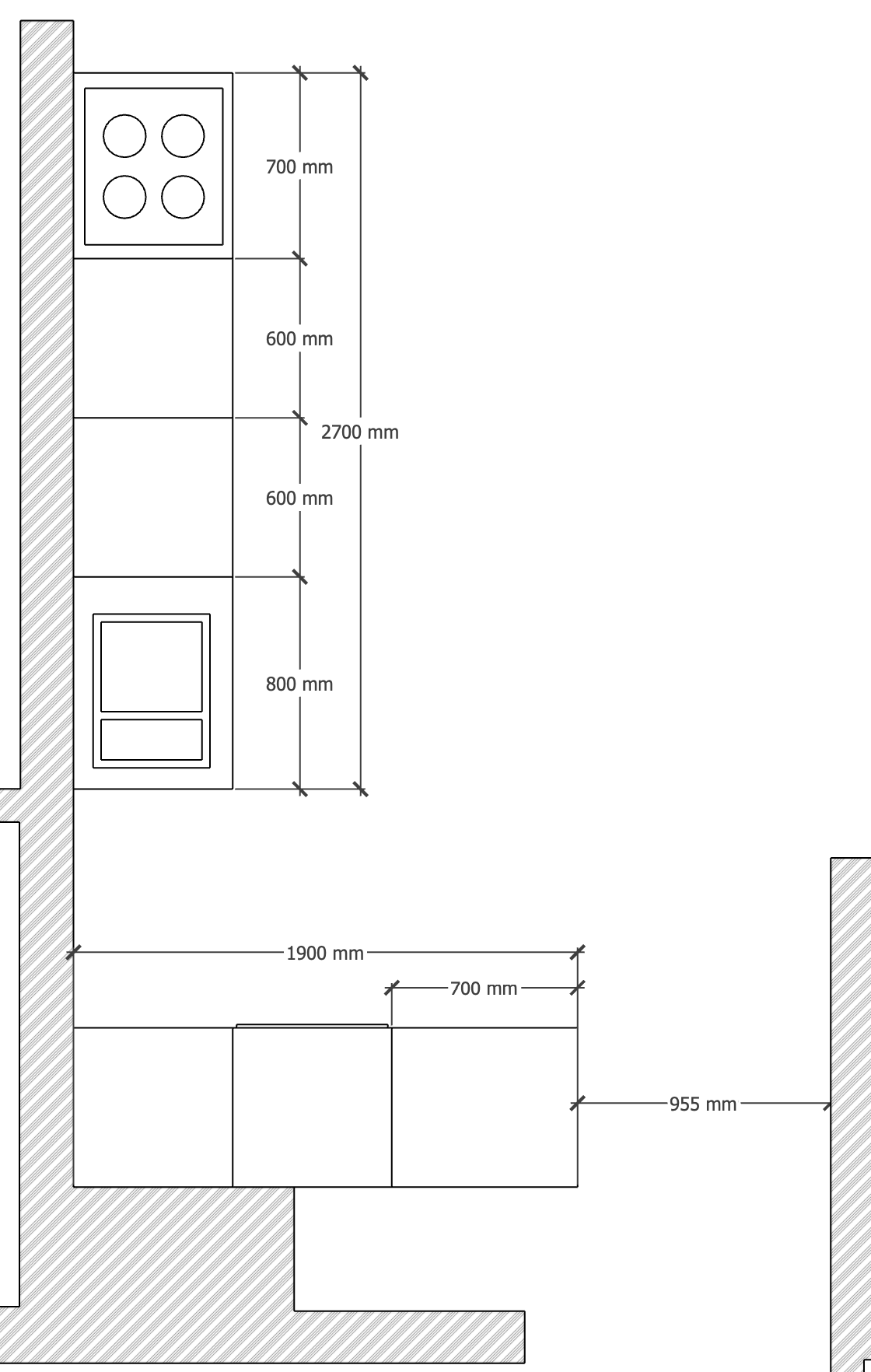
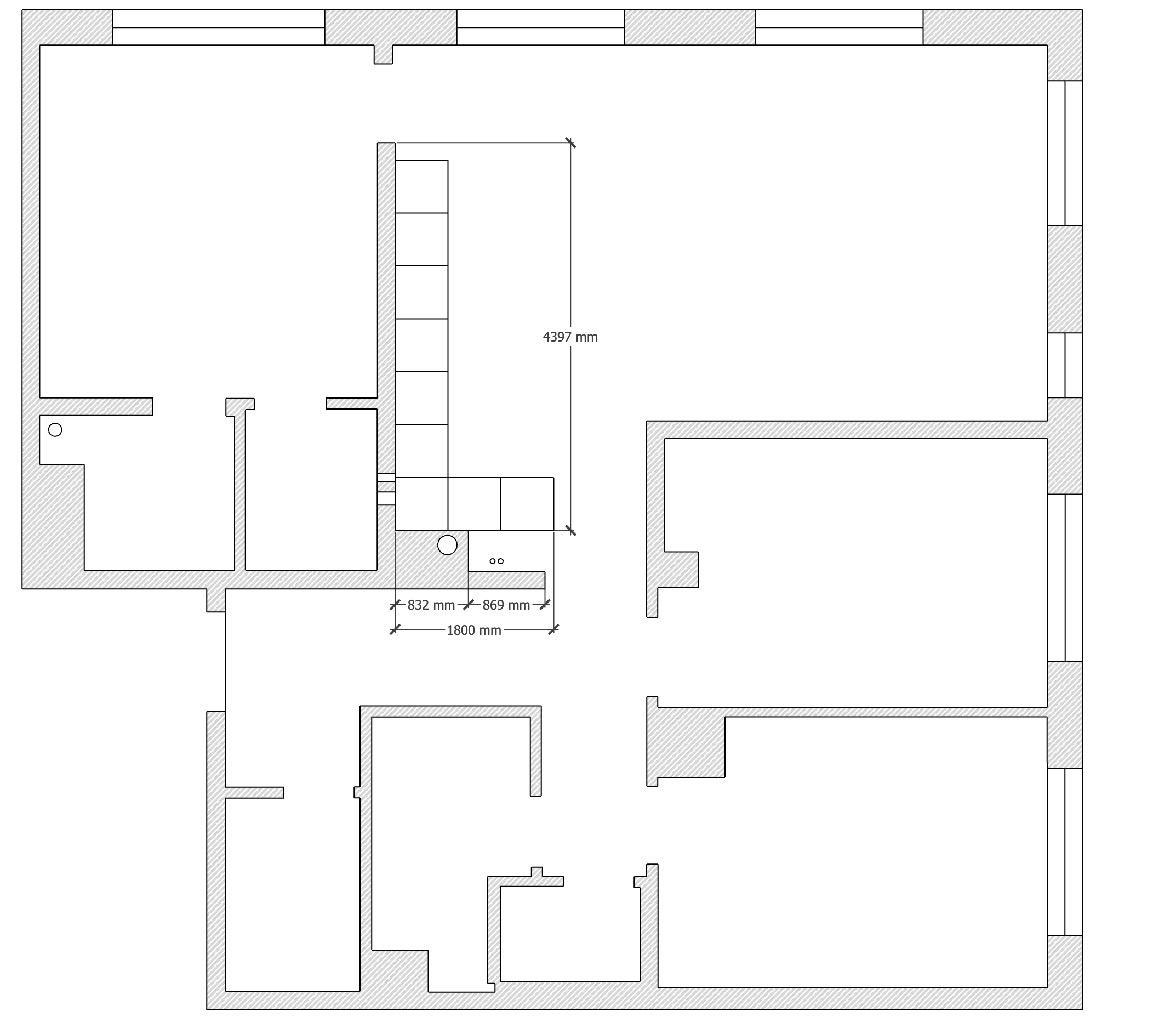
Исходя из планировки и того, что ты в Спб (как и я), я предположил сравнительно новый ЖК бизнес-класса, а значит потолок 3-3,20. Также я предположил определенный процент питания из ресторанов и разнообразие магазинов, а значит отсутствие необходимости в паре холодильников и проч. Плюс в любом случае, проходная кухня должна быть эстетична, поэтому открытую выставку тостеров делать не стоит). Потолок в зоне коридоров и кухни занизить на вентканал вытяжки и кондиционера (кондиционер канальный, внутренние блоки разместить в любом из санузлов или техническом помещении с канализацией для слива конденсата). На картинке зона кухни - 2,7. Канализацию зашить в стену, само с собой. От раковины труба довольно тонкая, расстояние небольшое, уклона там хватит за глаза.

Рисунок сделан ОЧЕНЬ грубо, но в приложенных тобой размерах. Это требует доработки вообще по всем фронтам.

Кухня проходная, поэтому в боковой шкаф завести вытяжку и сделать парковку техники, включая чайник (детали спросить в салоне, они должны знать такие решения). В другом будет холодильник. Обратить внимание на систему встраивая холодильника без всяких рельсов, фасад должен жестко крепиться к створке, такие холодильники дороже, но это намного лучше (вылетают эти рельсы у людей через месяц). Сушилка для посуды у тебя под микроволновкой в ящике, такие есть, если не видел (попроси показать в салоне). Шкафы из любого нормального шпона/массива (да хоть тот же ЗОВ). Шкафы в модулях 600. Полки сбоку - ну, они полки, лол, на полках что-то стоит обычно, тут - это посуда или винный шкаф (или и то и то, винные шкафы бывают низкими).

Посудомойка слева от ящиков под плитой (в открытом состоянии не мешает доступу к мойке и сушилке, что важно). Столешка буквой П. Бюджетный вариант - хороший акрил. Менее бюджетный - керамогранит или металл, включая фасады. Кухня в модулях 450/900.

Обмерного плана нет, информации по стяжке нет. Если стяжка позволит провести канализацию, то поставить просто остров 2700 на 900 по центру. Шкафы оставить также. Это решение будет дороже. Рекомендую обратиться Leicht и посмотреть готовые острова.

Стол лучше поставить круглый 160-170.

P. S.
По-хорошему: стоимость подобной квартиры в Спб начинается примерно с 30 млн рублей. Целесообразная отделка такой квартиры от черновой будет начинаться примерно с 10 млн рублей. В общем случае стоимость проектирования считается как 10 процентов стоимости реализации. За 1-1,5 млн просто нанять дизайнера (толкового, а не по лидогенераторам типа всяких Домео кликать с Авито или поисковой выдачи ГуглоЯндексов, блять), который сделает все, что надо, включая смету.

Я ответил тебе?
Аноним 27/11/24 Срд 12:28:27 343858 28
>>343855
P.P.S.
И да, мойка там просто огромная, поставишь меньше, ну и проч., сорри я много копипастил и вообще рассчитывал, что причешешь сам. Главное объемы задать вменяемые.

Да, с меня наконец слезли с "опять вы накосячили, мне электрик сказал, что у вас ошибка, да и я в электрике шарю! ВВГнг(LS) 5х1,5 на обогреватель 15кВт низзя по воздуху!". Начал разгребать, да два их там просто, два. По 7,5 кВт. Один напрямую, второй через реле. Паспорт на обогреватель никто не открывал, кроме инженера, который проектировал ЭОМ. Как я этой дури устал уже. Повсеместный пиетет к мнению пролетариата вообще не понимаю.
Аноним 27/11/24 Срд 12:38:54 343860 29
>>343855
P. P. P. S.
А ящики можешь поставить и 1000-1100, а не 900. Это с дверцами надо строго по размерам, чтобы было красиво, а ящиками можно добивать. Основная рабочая поверхность (между мойкой и плитой) будет побольше. А сама кухня все равно влезет по стенке.

У меня теперь задача выкинуть твою квартиру из головы, лол. Сидеть 3 месяца с этим проектом, чтобы его полноценно сделать - нененененене.
ОП 27/11/24 Срд 15:12:12 343872 30
image.png 1977Кб, 1456x816
1456x816
>>343855
> Я ответил тебе?
В который раз убеждаюсь в силе коллективного бессознательного – на двачах тебя или нахуй пошлют или дизайн кухни сделают – бери пользуйся, как говорится. От души, Анон! Налил тебе два чаю.

> Угловые кухни - чаще всего идиотизм, в угол ты никогда не залезешь, он слишком глубокий.
Хороший вариант получился, не нужен угол – убери его – гениально! Также не ожидал, что ты уберешь верхние ящики – в моем представлении они по дефолту идут, но этот вариант выглядит прям легко и комфортно, тоже потом прикину хватит ли ящиков распихать все добро.

> сорри я много копипастил и вообще рассчитывал, что причешешь сам.
Да много ты накидал, даже и сказать нечего, все четко и по делу – буду дальше сам разумеется причесывать и обдумывать, попробую зарисовать более детально на неделе.

> За 1-1,5 млн просто нанять дизайнера (толкового, а не по лидогенераторам)
Да ты прав, цены примерно такие как ты озвучил (ебать у нас инфляция, я все еще в каком то 2014 живу). А тем временем, мы плавно переехали с темы собрать кухню самому на тему нанять про за полтора ляма, кек. Бюджетов как всегда нет, попробую продумать сначала общий концепт и ебануть кухню с санузлами, там дальше видно будет.

> У меня теперь задача выкинуть твою квартиру из головы, лол.
> Паспорт на обогреватель никто не открывал
Добра тебе! и терпения)
Аноним 27/11/24 Срд 16:25:42 343875 31
Снимок экрана 2[...].png 160Кб, 1960x1022
1960x1022
>>343872
>От души, Анон! Налил тебе два чаю.
Да не за что.
>не ожидал, что ты уберешь верхние ящики
Во-первых они стоят денег. В таком варианте требуют отделки фасадным МДФ еще и боковин (а это дюже прям денег стоит). Во-вторых используют реально там только первую полку, остальные без табурета просто неудобны. Засунь редкоиспользуемое на антресоль шкафа.

Вообще в премиуме с островами ящиков очень давно нет. Живут же как-то. Ну и у меня дома вот тоже их нет. Есть только маленькие металлические полочки не во всю длину для приправ. Нормально.

В промышленных есть, но не ящики, а полки или крючки. Эти вообще за эргономику всегда и только за нее. Такое там тоже ок пойдет. Но есть только у более или менее дорогих производителей.
>я все еще в каком то 2014 живу
Сейм.
>цены примерно такие как ты озвучил
Так это мои расценки в том числе. Я могу накидать на Дваче своими руками, но так-то я сам не рисую и мне человекам зарплату платить с чего-то.
>сначала общий концепт и ебануть кухню с санузлами
Тебе главное проработать узлы (углы примыкания). Если ты не будешь делать плинтус, а обойдешься пробковым компенсатором, то это только паркет на клей. Если ты поставишь "скрытый плинтус", то его нужно бы заложить при штукатурке стен. А плинтуса не очень нужны. Как альтернативу очень рекомендую в коридоре и кухне-гостиной рассмотреть наливные полы и терраццо в частности. Мегапрактично и очень эстетично. Как в целом плитка будет подходить к двери, как будет меняться напольное покрытие с плитки на прочее (будут ли положенные пороги в санузлы по СП или просто сделаешь разуклонку к датчику протечки). Напольные покрытия и конкретная спецификация плитки нужны чтобы сделать стежку уже.
>мы плавно переехали с темы собрать кухню самому на тему нанять про за полтора ляма
Затраты на проектирование регламентируются ГОСТ и приказами (в основном Минстроя). Пикрил - табличка из приказа Минстроя от 1 октября 2021 года N 707/пр https://docs.cntd.ru/document/727092639 (в целом их там два вагона регулярно выходит). Да, у нас свободный рынок и это не то чтобы всегда обязательно выполнять. Тем более в дизайне квартир. Но это вполне соответствует реальности. Это тебе инструкция, на что ориентироваться в ценах.
И да, строители указывают стоимость в ценах черт знает какого года с коэффициентами инфляции. Это тоже особенность.
>Добра тебе! и терпения)
И тебе. Тебе понадобится, очень большой объем работы предстоит. :-)
Аноним 27/11/24 Срд 16:36:19 343876 32
>>343875
Если бюджетов нет: покупаешь циркулярку, шлифмашинку, листы фанеры, банку грунтовки, банку краски. И садишься на месяц. Кухня готова.
Аноним 27/11/24 Срд 16:50:16 343878 33
>>343872
P. S.

Чуть не забыл. По мебели и чистовым строительным (обои, плитка, паркет) магазины (в том числе интернет-магазины, даже очень хорошие и не совсем российские типа La Redoute) работают с дизайнерами по агентским договорам, откатывая им 5-10 процентов с заказа. До 15-20 в итальянском лухари. Если есть оформленные не на тебя юр лицо или ИП, какая-то визитка, лучше сайт, то называйся дизайнером, а не покупателем. Заключай агентский обязательно, он тебя ни к чему не обяжет потом. Цена от этого не вырастет при этом, тебе просто капнут денежкой. С таких сумм это, имхо, стоит того. Ну либо найди кого-то, кто разделит с тобой эти агентские 50/50.

Строители и проч бригады тоже откатывают за клиента около 5 процентов.
Аноним 27/11/24 Срд 16:53:47 343879 34
>>343876
>Если бюджетов нет: покупаешь циркулярку, шлифмашинку, листы фанеры, банку грунтовки, банку краски. И садишься на месяц. Кухня готова.
Очень в ограниченных условиях это сработает. В основном либо это будет нерентабельно, либо это будет плохо. Ни столешку, ни фурнитуру ты так не сделаешь, технику тем более. А сами дрова стоят копейки. 90 процентов цены деревянной мебели - это как раз обработка и красколаки. Тут речь о том, что в общем случае штучное производство не может быть выгоднее массового.
Аноним 27/11/24 Срд 16:56:28 343881 35
>>343876
P. S.
Даже все хорошие кухонные фабрики берут материал у всего-то пары крупных монополистов, а не делают сами. Про анона с циркулярной и речи нет. Сами они делают в основном то, что связано с внешним видом и фасадами.
Аноним 27/11/24 Срд 16:58:08 343882 36
>>343879
Хули там делать.
https://www.youtube.com/watch?v=fIu5q2gKHdo
Всё делается, только время нужно.
Если ЗП больше 100к/м, то не рентабельно, если меньше или в отпуск делать нехуй, то рентабельно.
Аноним 27/11/24 Срд 18:44:33 343909 37
>>343882
Ну да. Только это хуже Леруа. И это при наличии инструмента. Аноний все же ведет речь в шапке о куда более приличном.
Аноним 27/11/24 Срд 20:10:15 343922 38
>>343872
>уберешь верхние ящики
Без них кайфово и, как справедлво замечено - реально в них только нижняя полка используется.

У бфывшей кухня самопальная, но, фактически, только спроектировал и собрал сам. Чертёж отдал на распиловку, там же сделали всё под форнитуру и сборку на экцентриках (а не конфирматах). Кухня всё же угловая - а иную на 6 кв.м не запихать - угол рабочий выдвижной и поворотной полкой - она из Икеи, ещё тогда были доступны для заказа. Ну и столешницу, разумеется, изготовили и поставили.
Аноним 27/11/24 Срд 20:34:46 343926 39
>>343909
>Только это хуже Леруа
С хуя ли. Ты получаешь кухню из лучшего древесно-листового материала (фанеры), магазины и фабрики могут предложить только мдф и лдсп.

>И это при наличии инструмента.
Инструмент минимальный.

>приличном
Просто понты. С расстояния в метр всё это кажется одним и тем же. Решает цвет, организация, структура.
Аноним 29/11/24 Птн 02:15:18 344109 40
>>343855
Красиво, хорошо сделол. Но места мало.
Чайники-тостеры никуда не денутся и просто засрут всё рабочее пространство.
Я бы тут на том же уровне что духовка сделал открытые ниши и туда это говно спихал, тогда норм.
Аноним 29/11/24 Птн 10:39:14 344139 41
>>344109
>Я бы тут на том же уровне что духовка сделал открытые ниши и туда это говно спихал
Открытые ниши моветон, сейчас в тренде встроенные чайники и тостеры. Только нужно нанять архитектора чтобы их правильно в кухню вписать
Аноним 29/11/24 Птн 11:27:28 344145 42
>>344109
>Чайники-тостеры никуда не денутся и просто засрут всё рабочее пространство.
Текстовую часть ты не читал?
>в боковой шкаф завести вытяжку и сделать парковку техники, включая чайник (детали спросить в салоне, они должны знать такие решения)
>Я бы тут на том же уровне что духовка сделал открытые ниши и туда это говно спихал, тогда норм.
> Сушилка для посуды у тебя под микроволновкой в ящике, такие есть, если не видел (попроси показать в салоне).

Ужасно.
>>344139
О, беспомощный клоун пришел. И тоже неспособный читать.
>Только нужно нанять
Верно. Ни ты, ни девочка изсалону в 99 из 100 случаев даже не знаете как планируют банальные кухни. При том, что все решения даже у среднебюджетных фабрик есть. Но решения делали далекие яйцеголовые, а не месте сидит продажник с обычной правильной головой, который редко способен правильно встроить духовку.

Исключение - лухари, там они к этому привыкли.
Аноним 29/11/24 Птн 11:30:43 344148 43
>>344139
>сейчас в тренде встроенные чайники и тостеры.
У ОКРщиков? Ты ещё ложки и тарелки коробами обшей и на еблет себе плитку положи, а то открыт пиздак, все дыру видят.
Аноним 29/11/24 Птн 13:10:27 344164 44
>>344148
шизик, ты утром прием таблеток пропустил
Аноним 29/11/24 Птн 13:37:35 344170 45
>>344164
Тебе надо, что тебя всё время за галоперидолом отправляют, теперь пытаешься перефорсить? Ну точно хохлина вонючая.
Аноним 29/11/24 Птн 14:00:19 344176 46
>>344170
>Тебе надо
>тебя всё время за галоперидолом отправляют
@
>ищет хохлов под кроватью
Аноним 29/11/24 Птн 15:02:00 344188 47
Оп снова на связи, продолжаю делиться кухонными новостями.

Итак, после многочисленных обсуждений с предполагаемой хозяйкой кухни (пока я все еще имею право на свое мнение), проект от анона-дизайнера, похоже, уходит в прошлое. Причины вполне логичные:

– Холодильник в углу. Вроде бы сначала звучало разумно, но на практике его неудобно открыть больше чем на 90 градусов. А это, как оказалось, очень важный момент, когда нужно запихнуть туда что-то габаритное.
– Как быстрофикс, меняем холодильник с посудомойкой местами. На бумаге казалось решением, но реальность снова дает понять, что неудобно. Теперь уже проблема с открыванием посудомойки. Уже лучше, но сильно подозоеваю, что буду жалеть о таком решении; Ловушка, из которой, пока что, не выбрались.
– Вспомнили, что у нас есть кофемашина (рожковая). Абсолютно незаменимая вещь в моей жизни, которая 100% будет стоят где-то на рабочей поверхности. Идея убрать её куда-нибудь в шкаф отпала сама собой: это неудобно и явно не будет работать в повседневной жизни.
– Дырка в кухонном гарнитуре. Здесь я проиграл без шансов. Поддержки идея не нашла (в действительности была просто обосрана): выглядит странно, а отсутствие верхних шкафов только усиливает ощущение нехватки мест для хранения. В теории это действительно может стать проблемой.
– Таким образом, получается, что даже на большой кухне всё равно сложно организовать пространство так, чтобы было и удобно, и красиво. Пока, кажется что чем больше пространства, тем больше проблем с тем, как его использовать.

Также недавно узнал, что существуют встраиваемые холодильники шириной 700 мм. Сразу подумал: а почему бы и нет? Те лишние 10 см можно использовать куда эффективнее, чем просто терять их в стандартных вариантах. Пока изучаю, насколько это реально вписать в текущие планировки.

На текущий момент думаю, как всё-таки минимизировать количество техники на виду и таки ликвидировать "выставку тостеров" (не относится к кофемашине) на кухне.

Также ещё теплится надежда на одноэтажную кухню (без верхних шкафов), но тут я начинаю подозревать, что, как и кухонный остров, это требует куда больше свободного пространства, чем кажется на первый взгляд.

Такие дела. Посмотрим, что из этого выйдет
Аноним 29/11/24 Птн 15:03:23 344189 48
Screenshot 2024[...].png 3768Кб, 3410x1882
3410x1882
>>344188
> Как быстрофикс, меняем холодильник с посудомойкой местами.
Аноним 30/11/24 Суб 04:04:48 344264 49
>>344188
От стены можно чуть-чуть отступить, холодильник раскроется.
Самое главное чтобы в него ящики морозильные влезали, габаритнее их ты ничего не поставишь.
Аноним 30/11/24 Суб 09:34:36 344277 50
Снимок экрана 2[...].png 43Кб, 572x524
572x524
>>344188
Тебя на день оставлять опасно.

>меняем холодильник с посудомойкой местами
Посудомойка там справа от мойки, а не ящики. Ее в принципе ставят только рядом с мойкой. Наркоманы. :-)

>Холодильник в углу.
Ну ставь не в углу. Ты туда посудомойку не пихай только.

>Дырка в кухонном гарнитуре. Здесь я проиграл без шансов.
Пригласи хозяйку во что-то чуть подороже хруща. Посетите вместе хороший салон. съездите в любую европейскую страну. Попроситесь как потенциальный покупатель в квартиры за 1-5 млн евро (дороже не надо, там тяжелое уже).

Пока у вас дырки в гарнитуре, вы каши не сварите.

>Пока, кажется что чем больше пространства, тем больше проблем с тем, как его использовать.

А не надо пихать невпихуемое в маленькую кухню. Она именно маленькая. Большие кухни в частных домах делают.

Даже пикрил относится к компактным решениям (по меркам загородных домов). Но уже с большим холодосом (иначе не выжить).
>что у нас есть кофемашина (рожковая)
Профессиональная, которая подключается напрямую к водопроводу? Потому что иначе на кухне она вообще зачем? Их ставят в столовых зонах, а не зонах готовки.

>Сразу подумал: а почему бы и нет? Те лишние 10 см можно использовать куда эффективнее
Глубина - да. А вот ширина - нет. У тебя дверца рядом 600. Как же 100 мм, если 300. Тогда ставь 600 чисто холодильник до пола и морозильную камеру отдельно.

Для такого нужны полувстройки, они глубже и шире. От цены с доставкой в РФ офигеешь, их тут никогда не продавали потому что.

Это не считая того, что чтобы сделать нормальный угол, тебе сбоку от створок нужна фасадная плашка. То есть еще 4х18 мм или, если добавлять только справа-слева от шкафа 2х18. Без них - такое себе.
Аноним 30/11/24 Суб 09:50:24 344280 51
1000835s215.jpg 633Кб, 1000x835
1000x835
>>344277
P.S.
Просто мы сейчас дойдем до того, что я тебе предложу фигню поставить стену из шкафов в 4 метра длиной + остров. В этой стене мы сделаем закрывающуюся "грязную" рабочую поверхность и "грязную" мойку. Что неплохо, но будет 3+ млн ориентировочно и займет всю гостиную, а не "до миллиона" и соразмерно комнате. Потом мы перейдем к еще более дорогому решению (которое туда уже точно не влезет) с двумя полноценными кухнями: открытой и под выдачу.

Вместо коробок над столешкой (которые вообще непонятно зачем), как я уже сказал, можешь попробовать пикрил. С островом (и сначала выясни, что у тебя с уклоном трубы в стяжке, он редко где есть) или без. Но это только небюджетные кухни.
Аноним 30/11/24 Суб 09:52:22 344281 52
>>344277
P. P. S.
>Ну ставь не в углу. Ты туда посудомойку не пихай только.
Холодильник вообще ставится на проходе на кухне. К нему подходят, не желая при том залезать в саму кухню, потому что.
Аноним 30/11/24 Суб 09:54:48 344282 53
>>344280
P. P. P. S.
Вот там пикрил - ровно ваша кухня. 5 по 600 - это 3000. Зажать до 2700 легко в модулях 600 или 450 (напоминаю, что все, что не поделилось - ящики), не так важно даже.
Аноним 30/11/24 Суб 10:04:02 344283 54
>>344188
Единственное правило для создания кухни это порядок расположения и действия: достал из холодильника, положил, помыл, положил, порезал, обработал на плите или в духовке.
Планируй всё по этой схеме и всё будет ок.

мимо опытный олд
Аноним 30/11/24 Суб 10:07:40 344285 55
Остров ставится в помещениях от 25 квадратов, иначе полная хуйня получится. Да и вообще мне лично не нравится концепция острова, это для очень богатых, которые не считают стоимость квадратного метра в квартире. Также остров создаёт ощущение захламленности во время готовки. Присесть попить кофе за ним тоже неудобно, так как некуда ноги девать, кушать нужно за столом.

опытный
Аноним 30/11/24 Суб 10:33:18 344286 56
Poliformcucinei[...].webp 27Кб, 734x412
734x412
images.jpeg 6Кб, 318x159
318x159
>>344188

И попрошу обратить внимание, что это >>344280 ровно твоя нарисованная кухня, только остров для компактности приставлен к стене. Обычное решение.

Ты уверен, что твоей "хозяйке" надо прям больше?

Про то, что стеклянные полки легко перезжают в гостиную, молчу. Там посуда для гостей разве что.

И главное помни, что максимум плашка - 2700 мебельная у большинства. Потолок там занижен не просто так, а чтобы сделать тебе угол нормально.

>>344285
>>344283
А можно я на тебя немношк тоже поворчу?
>Присесть попить кофе за ним тоже неудобно
Стоп. Если у тебя полубарная стойка на острове (зона завтраков, зона выдачи), то место под ноги там есть. Иногда и сам стол - часть острова.
>для создания кухни это порядок расположения и действия
Называется рабочим треугольником. Холодильник, мойка, готовка.

>в помещениях от 25 квадратов, иначе полная хуйня получится
От формы зависит. Но жрет он много. В больших кухнях-гостиных перестали в квартирах вообще делать как таковые столы. Они никому не нужны, все ИРЛ жрут на острове. Нормальном, а не который ты описал. В квартиру ТС такой не то чтобы влезет.
Аноним 01/12/24 Вск 16:31:06 344405 57
Screenshot 2024[...].png 428Кб, 1120x1764
1120x1764
>>344277
> Тебя на день оставлять опасно.
типичный заказчик, кек

>Посудомойка там справа от мойки, а не ящики. Ее в принципе ставят только рядом с мойкой. Наркоманы. :-)

Ты прав, щас взглянул свежим взглядом – идея была и вправду наркоманская. Ок, пока реанимирую идею и перенесу посудомойку вправо от мойки — так хотя бы логика и руки не страдают.

> Профессиональная, которая подключается напрямую к водопроводу?
> Их ставят в столовых зонах, а не зонах готовки.

Да нет, у меня с баком для воды (lelit elizabeth), где ее тогда ставить блин.. у меня, как мне кажется, и нормальной столовой зоны не будет (скорее всего). Или, если её делать по нормальному, это как с островом — сожрет столько места, что на остальное просто не останется.

> Глубина - да. А вот ширина - нет. У тебя дверца рядом 600. Как же 100 мм, если 300. Тогда ставь 600 чисто холодильник до пола и морозильную камеру отдельно.

Почему ширина нет? Нельзя просто одну колонну сделать шириной 700? Я уже загорелся идеей широкого холодильника..
Отдельная морозилка — звучит гораздо лучше. Даже не знал, что так можно сделать, лол.

> Это не считая того, что чтобы сделать нормальный угол, тебе сбоку от створок нужна фасадная плашка. То есть еще 4х18 мм или, если добавлять только справа-слева от шкафа 2х18. Без них - такое себе

Можешь подробнее объяснить? - нихуя не понял если честно


>>344280
> Просто мы сейчас дойдем до того, что я тебе предложу фигню поставить стену из шкафов в 4 метра длиной + остров.

Остров, кажется, всё-таки отпадает. Места для него объективно нет. Сладкие мечты о просторной кухне останутся только мечтами. Да и как другой анон подметил, такое решение не только дорогое, но ещё и оправдывает себя только на больших площадях. Тут явно не мой случай.

В общем приложил пик, как то так выходит пока. Немного напрягает что мойка и духовка прям по краям стоят.
Аноним 01/12/24 Вск 16:33:12 344407 58
>>343641
>ZOV (но салоны говно, рисуй сам)
>>343749
>Это хорошая недорогая крупная фабрика.
На днях прошелся по салонам, в том числе пощупал этот ЗОВ – вроде норм, но ничего сверхъестественного (хотя на фоне других – лучше). Ещё нашёл пару других фабрик, которые на мой взгляд не хуже белорусских. Проиграл от того, как все пытаются впарить кухню прям здесь и сейчас. Типа, давайте, размеры есть на коленке сейчас всё набросаем и заказывайте. Думаю в итоге разошлю всем одно и тоже – результаты приложу в тред :)
Аноним 01/12/24 Вск 16:39:58 344410 59
image.png 397Кб, 700x525
700x525
>>344407
Единственное, что нового открыл — это скрытая ниша за рабочей зоной (что-то вроде пикрила). Выглядит реально интересно, но уже прикинул, что в 20 см особо ничего толкового не воткнёшь. Либо нужно делать её глубже, что уже начнёт съедать место, либо просто отказаться от этой идеи. Пока не могу понять, стоит ли оно того.
Аноним 01/12/24 Вск 16:45:36 344412 60
>>344283
>Единственное правило для создания кухни это порядок расположения и действия: достал из холодильника, положил, помыл, положил, порезал, обработал на плите или в духовке.
>Планируй всё по этой схеме и всё будет ок.

спасибо анон
Аноним 01/12/24 Вск 18:42:41 344423 61
Shkaf-etagerca-[...].jpeg 119Кб, 1080x1080
1080x1080
>>344405
>типичный заказчик, кек
Ниправда. Типичному заказнику рисуют до конца и за деньги (и совокупляюсь с ним не я сам именно поэтому).
>Да нет, у меня с баком для воды (lelit elizabeth), где ее тогда ставить блин.. у меня, как мне кажется, и нормальной столовой зоны не будет (скорее всего).
Ну тогда нет проблем, эту фигню ты можешь хоть на подоконник поставить, если окна не в пол (сам подоконник, возможно и откосы тоже закажи у любых мебельщиков из дуба или ясеня, тот же ЗОВ или любой чувак с Лайвмастера сделают). Либо делать полку для про техники и столовой зоны. Но им не место на кухне. Встраиваемые - да (но они дорогие даже просто капсульные). Подключаемые к водопроводу - да. Остальное - нет.

У тебя должно быть три сегмента готовка+пожирание+гостиная.

>Почему ширина нет? Нельзя просто одну колонну сделать шириной 700?
К слову о пикриле. Нет, так не надо. Модули должны быть одинаковой ширины. Или это будет ущербно.
Дальше. Это ты наверное думаешь (или вообще не думаешь), что поставив мойку 800, ты что-то сэкономил. Столешка у тебя единая, а не по модулям. Нарисуй фронт отдельно и саму столешницу. В фронте по линии все дверцы должны быть одинаковые. Они будут 450 или 600. Потому что духовки и плиты, как и холодильники - только 600. А вот посудомойки 450 или 600. Модуль 900 - это две дверцы по 450. Поэтому у тебя шкафы в 600, а сама кухня в модулях 450 или 600.

По стенкам: оптимальный проход между двух высоких стен 1200. 1050-1100 - еще ладно. 950, ну. Такое себе. Между высоким и низким можно и 800 и даже 700, но случай не тот, это про проход между шкафами и кухней.
И стекло в коридор на открытые полки ебни желательно, а то лишний бебебе коридорович.

>можно сделать, лол.
Можно все. С учетом цен на встраиваемые холодосы, аккуратно.
>Можешь подробнее объяснить? - нихуя не понял если честно
Пик.
>Немного напрягает что мойка и духовка прям по краям стоят.
Мойка - ок, если у нее хотя бы совсем небольшая фруктовница сбоку, или отступи от края примерно на нее. Плита (не духовка это уж точно) - не очень. Оставляй плиту как самый минимум по центру модуля 900. То есть 900(450+450)+900(450+450)+900(ящики). Ящики можно и даже сильно лучше 1000 или 1100 даже.

Если тебе в этот раз духовку надо отдельно от микроволновки, то поставь в шкаф как на картинке выше. Но с микроволновой будут приколы вида "найди попробуй с левым открываем встройку". Они есть, да, но ты найди. Ну или с откидыванием. И так чтобы недорого.
>>344407
>На днях прошелся по салонам, в том числе пощупал этот ЗОВ – вроде норм, но ничего сверхъестественного
Вопрос в том, что в 9 из 10 случаев это салоны продавцов. А это завод. Тем более, что конкретно у этих по салону судить такое себе. Они не будут везти дорогие коллекции в салон (собственно они дорогие). Тебя в любом случае там интересуют ТОЛЬКО ФАСАДЫ. И отдельно фурнитура, но у них Хеттих, так что все ок (смотреть на надписи на петлях, еще Блюм - ок, остальное мимо, за любые деньги).
>Ещё нашёл пару других фабрик
Названия в студию.
>>344410
>Выглядит реально интересно, но уже прикинул, что в 20 см
Да ваще замечательно. А брать ты эти 20 см из лимбо будешь? Когда позади кухни техническое помещение или вторая кухня, это все понятно и можно как-то что-то придумать. Но что ты в спальне с выступом на высоте от 750 до 1200 делать? Глубина столешек стандартная под технику берется всегда.

Мойку только такую не бери. Хз, откуда картинка, но это какое ЛДСП-говно. С ужасной тонкой мойкой.

Мойку ты купишь металлическую Omoikiri (нет, это Россия, а не Япония). По типу Akisame. Либо встроишь под столешку, тоже Omoikiri. Cмеситель тоже. Mikkawa, Akari с фильтром обязательно и неущербный большой.

Все понил?
Аноним 01/12/24 Вск 21:51:18 344440 62
Screenshot 2024[...].png 668Кб, 1854x1182
1854x1182
>>344423
>Но им не место на кухне
:(

> По стенкам: оптимальный проход между двух высоких стен 1200. 1050-1100 - еще ладно. 950, ну. Такое себе.
:(

> То есть 900(450+450)+900(450+450)+900(ящики)
понял, плита левее. Может ли плита наезжать на "соседний модуль"? (кажется что нет)
> что поставив мойку 800, ты что-то сэкономил
вообще да я уже смекнул про местные стандарты, что надо делать по 450/600/900, а в теории вообще кастомные модули делают? (или делают но дороже)

> Если тебе в этот раз духовку надо отдельно от микроволновки
без отдельной микроволновки норм

> И стекло в коридор на открытые полки ебни желательно
да тоже думал про это, хотя декоративные всякие шкафчики лупят везде походу сейчас

> Тебя в любом случае там интересуют ТОЛЬКО ФАСАДЫ. И отдельно фурнитура, но у них Хеттих, так что все ок (смотреть на надписи на петлях, еще Блюм - ок, остальное мимо, за любые деньги).
что ты имеешь ввиду когда говоришь "ТОЛЬКО ФАСАДЫ"? Заказать фасады у них остальное у других? Щас проверил сходил – у меня блюм, буду ставить их же.

> Названия в студию.
пока только визиток взял, на память первая мебельная фабрика, стильная мебель, дуэт, зов – на любительский взгляд все плюс минус одно и тоже.

> Да ваще замечательно. А брать ты эти 20 см из лимбо будешь? Когда позади кухни техническое помещение или вторая кухня, это все понятно и можно как-то что-то придумать. Но что ты в спальне с выступом на высоте от 750 до 1200 делать?
ну как я понял просто кухня выдвигается на заранее подобранное расстояние (нижнее пространство за рабочей поверхностью только пропадает)

> Мойку ты купишь металлическую Omoikiri ... Mikkawa, Akari
> Все понил?
От души! пошел гуглить дальше
Аноним 01/12/24 Вск 22:23:28 344442 63
>>344423
>Названия в студию.
А, ещё Артис мебель нормально так понравились (подозревую что эти тоже дорогие). Вспомнил их, потому что я там что-то тыкнул и сказал: Хочу вот так же! А они мне в ответ: Ну это у нас из Италии было, этого сейчас нет, лол.
Аноним 01/12/24 Вск 22:26:55 344443 64
>>344440
Так. Отвечаю немножко бухая, но голова-то моя.

>понял, плита левее. Может ли плита наезжать на "соседний модуль"? (кажется что нет)
Плита всегда по центру модуля. Если она по центру 900 модуля, тем более 1000+, то у нее будет сбоку пространство. Как раз то, что надо.

Ставить не по центру, имхо, неэстетично. Наезжать на Соседа она не может по-хорошему. По-плохому в заказной мебели все возможно, это в том числе.
>в теории вообще кастомные модули делают? (или делают но дороже
Делают. Этим ЗОВ, например, отличается от условно Марии. Мария - модульные (на самом деле) кухни, как и большинство тех, кто позиционирует себя как "заказные". Какой-нибудь Спутник-стиль московский приезжает вообще собранный! ЗОВ - заказная мебель (любая опять же на практике).

Тут в модулях главное, чтобы все вертикали одинаковые, а горизонтали пропорциональные. Ящики обычно делят напополам, потом верхние еще раз напополам. Нижний под кастрюли, верхние два для всяких половников и ложек.

Горизонталь делают по стандарту из-за встроенной техники. Напоминаю, что только посудомойки бывают 450, остальная техника 600.
>хотя декоративные всякие шкафчики лупят везде походу сейчас
А вот тут смотри. Открытый шкаф или за стеклом - норм. Просто надо его пихать по-умному. Для посуды - круто. Для шмоток - норм, просто снизу делаешь подобие комода, где и прячется весь визуальный шум, а вещи на вешалках всегда выглядят ок.
>что ты имеешь ввиду когда говоришь "ТОЛЬКО ФАСАДЫ"?
Я про отличия. Фасады и редкие примыкание крыть островов или металл. Все остальное - база.
>пока только визиток взял
Кстати ты можешь скинуть им свой эскиз и сказать - изобретайте. Ну или повисеть над душой, пока выставляют модули. Это норм практика.
>у меня блюм, буду ставить их же.
Хеттих и Блюм не отличаются вообще. У Хеттих есть ультрабюджетные линейки и линейки для любой мебели. У Блюм только кухни и только начиная с среднего класса. Это олигополия и прямые конкуренты. Отлично у обоих производителей все работает.
>нижнее пространство за рабочей поверхностью только пропадает
Ага, и это грустно. Посчитай, сколько ты забашлял за квадратный метр.
>От души
Не за что. Но чувак, ей-богу. Дай уже долбанную телегу. Проще жить будет (мне). Похуй, что ты не платишь. В пределах разумного, посоветую.
Аноним 01/12/24 Вск 23:23:45 344444 65
>>344442
Бля, не страдай хуйней. Leicht, Poliform, Minotti - да, дорого и круто. Какой нах "Артис"?
Boca посмотри (не кухни).

Подешевле:
- La Redoute (Am Pm в частности, но и не только), особенно то, что делал Эммануэль Галлина, только не смотри "от партнеров" то есть российское, на нем просто печать какой-то имбецильности;
- спальни можно еще Этажерка.

Какой еще колхоз из серии Артис? Не трогай бяку.

Ну чувак, ну не надо. Они реально денег за треш хотят.
Аноним 01/12/24 Вск 23:24:59 344445 66
>>344444
Я Юбилейный поймал. Число смерти. Ну вестимо все. Конец истории. И это все еще я, если ты не понил. А ты понил. :-)
Аноним 02/12/24 Пнд 13:01:58 344485 67
download (3).png 827Кб, 2322x832
2322x832
download (4).png 954Кб, 2486x852
2486x852
download (5).png 44Кб, 1196x370
1196x370
download.png 4197Кб, 1414x1632
1414x1632
>>344444
> Не за что. Но чувак, ей-богу. Дай уже долбанную телегу. Проще жить будет (мне). Похуй, что ты не платишь. В пределах разумного, посоветую.

Честно, я уже захожу в этот тред как в свои заметки. Удобно, вся история в одном месте, да и вдруг другим анонам полезно почитать. Но спасибо, что предложил сконнектиться @ srzik

> Так. Отвечаю немножко бухая, но голова-то моя.
> Бля, не страдай хуйней. Leicht, Poliform, Minotti - да, дорого и круто

Ну, ты видимо к этому моменту уже знатно поднакидал, потому что подъехал тяжёлый люкс даже по меркам эвропы. Я-то думал, мы тут российских (ну максимум белорусских) производителей рассматриваем (представляю охуевание анонов с леруа)

Но в целом, спасибо за рефересны. Всё утро зависаю в каталогах ляйхт (до остальных пока не дошел) – это прямо кухонное порно. Пинтерест уже достал, а тут хотя бы что-то свежее.

Как я понял, по факту у них то же самое, что и у нас: ламинирование и эмалированные покрытия с палитрами цветов, всякие плюшки вроде софт тач и оформления под природные материалы. Всё это я как раз щупал на днях у местных производителей. Разница, кажется, больше в дизайне (ну и вангую что качество может быть получше), но разбираться дальше интересно.

PS
> 344445
> Я Юбилейный поймал. Число смерти.
ты если по числам упарываешься, то 4 – это не число смерти лол. 3 связано с творчеством, самовыражением, общением, 4 символизирует стабильность, упорство, труд, структуру и практичность. Имеем базу 3 и усиление 4 – походу как раз твой случай
Аноним 02/12/24 Пнд 13:06:02 344487 68
download (1).png 4058Кб, 2848x1382
2848x1382
download (2).png 1650Кб, 1690x848
1690x848
>>344485
>Но спасибо, что предложил сконнектиться @ srzik
нарукожопил – быстро фикс: srzikr

что еще подметил большинство кухонь 1) не в потолок 2) с островом
Аноним 02/12/24 Пнд 13:19:00 344490 69
>>344485
Какое страшное безвкусное говнище.
Аноним 02/12/24 Пнд 13:30:26 344493 70
>>344189
Какая-то извращённая планировка, зачем этот пустой угол? Имадженируй, себя, как ты лезешь в это закуток, чтобы открыть ящик в углу. Лучше сделать обычную секцию.
Аноним 02/12/24 Пнд 14:44:59 344508 71
>>344493
>Имадженируй, себя, как ты лезешь в это закуток, чтобы открыть ящик в углу.

Имадженировал (что это за слово блеать) уже – почитай историю, там просто шкаф или ящик будет вместо посудомойки – все прекрасно имадженируется 90 см там пространство, но мне этот вариант сомнителен по другим причинам – пока планирую накидать пару вариантов чтобы потом все объективно сравнить
Аноним 02/12/24 Пнд 16:00:44 344513 72
image.png 449Кб, 1272x1080
1272x1080
image.png 3013Кб, 1918x956
1918x956
image.png 245Кб, 3164x1446
3164x1446
>>344444
>Boca посмотри (не кухни).

Красиво, не спорю, но цены… Полка в ванную за 26к — я чуть бутербродом не подавился.

Купишь кровать, это ж потом придётся тащить оттуда же кресла, тумбочки и всё остальное, чтобы хоть как то сочеталось. А кровать у них, кстати, 2,5к евро — и это даже не массив или что-то технически сложное. Просто стиль, за который приходится переплачивать.
Аноним 02/12/24 Пнд 17:41:01 344531 73
>>344485
>ламинирование
Не трогай каку. Есть металл, камень и шпон дерева. На крайняк краска.
>софт тач
Он часто маркий или становится марким, а то и липким через пару лет. Не угадаешь.
>потому что подъехал тяжёлый люкс
Внезапно, но там только дорогое и имеет смысл брать. Коллекции попроще есть и у фабрик попроще.
>Разница, кажется, больше в дизайне
Ты не сможешь в бюджетных кухнях сделать многие углы-примыкания. Особенно островов и проч больших шкафов. Там нет таких наполнений. Нет такой фурнитуры (и решений под нее). При этом сами картинки в каталогах вполне могут и быть.
>по числам упарываешься
Да не особо. :-)
>4 – это не число смерти лол
Иероглиф созвучен с смертью.
>что еще подметил большинство кухонь 1) не в потолок 2) с островом
Там очень большие площади и пропорционально высокие потолки.
>>344513
>Купишь кровать, это ж потом придётся тащить оттуда же кресла, тумбочки и всё остальное, чтобы хоть как то сочеталось
Никогда так не делай вообще. Купил деревянный шкаф, купи мягкую кровать. И наоборот, шкаф тогда пусть из металла или крашенный какой. А тумбочки терраццо, манго (в черный), кожа.
>Просто стиль, за который приходится переплачивать.
У них надо покупать больше диваны. Чем полочки. Полочки возьми любые там Am Pm (La Redoute) и проч.

А на тему "просто за стиль", да лол, были бы те, кто делает дешево и стильно, вопрос был бы ноль. Да и стоит это все денег, стоит. Сравни то, что Галлина рисовал для Полиформ и упомянутого Ам Пм. Дизайнер-то один.

Из мебели еще BDI посмотри обязательно.
Побюджетнее есть La Froma (Julia Grup).
Аноним 02/12/24 Пнд 17:55:25 344533 74
Снимок экрана 2[...].png 644Кб, 2478x1380
2478x1380
>>344485
>ы видимо к этому моменту уже знатно поднакидал
Да, порядочно. :-) И все же посмотреть нормальное надо. Герман Миллер еще глянь обязательно (а компьютерное кресло купи, потому что дешевле, хз, Okamura и проч тех же денег стоят). Скажи спасибо, что не Etel. А тумбочка для ТВ, кстати, хорошая. Просто за меньшие деньги можно плотника легко нанять и сделать реплику не хуже. Собственно, как и поступают многие. Дорогие реплики супер-дорогой мебели - это на самом деле не такая уж редкость.
Аноним 03/12/24 Втр 15:21:07 344618 75
2a5be6a1295c34a[...].jpg 92Кб, 736x1103
736x1103
071d4696b844712[...].jpg 87Кб, 736x969
736x969
Screenshot 2024[...].png 2600Кб, 2560x1768
2560x1768
>>343641
>(но салоны говно, рисуй сам)
>>343650
>Нижние шкафы - только выдвижные.
>>344109
>Красиво, хорошо сделол. Но места мало.
>>344490
>Какое страшное безвкусное говнище.

Всем кукусики продолжаю рисовать кухню, на этот раз вариант номер два, где мы тупо используем все пространство вокруг стены и получаем больше вариантов для хранения наших любимых половников

>>343855
>Угловые кухни - чаще всего идиотизм, в угол ты никогда не залезешь, он слишком глубокий.
В общем в этом варианте получается ситуация что у меня угол все еще есть, но он довольно маленький (20см всего глубиной)

>>344109
>Чайники-тостеры никуда не денутся и просто засрут всё рабочее пространство.
>>344139
>Открытые ниши моветон, сейчас в тренде встроенные чайники и тостеры.

В общем кофемашину (с чайником) планирую запихать в шкаф слева, х3 на скок это удобно, что-то по типу пикрилов

>>344283
>Единственное правило для создания кухни это порядок расположения и действия: достал из холодильника, положил, помыл, положил, порезал, обработал на плите или в духовке.

в этом варианте с этим конеш проблема, но мне кажется не очень критично (или все-таки критично?).

Посудомойка будет слева под шкафом для хранения (там как раз вывод воды и канализация – удобненько-с), или же как резерв справа от мойки.

Тут я еще внезапно вспомнил про вентиляцию (ее ж тоже как то надо проложить кек. Пока вариантов несколько – ебануть шкафы и сверху по верхним полкам в шкафах бросить трубу. Сделать короб – дешево и сердито. Последнее я в принципе и зарисовал (часть короба еще под потолком спряталась)

Вопросов несколько:
- Что делать со стеной/углом сзади (выглядит как то незаконченно чтоли)
- Вешать ли все-таки шкафы наверх (х3 может быть узкие какие), но тогда, опять же, остается странный угол в углу
Аноним 03/12/24 Втр 15:45:40 344621 76
17332284688332.png 2203Кб, 2560x1768
2560x1768
>>344618
Вариантов планировки у тебя не особо много, холодильник с краю либо слева, либо справа.
Дальше принципы одинаковые.

Мойки вплотную к углу не надо. Всю жизнь стоять полубоком, от угла всегда 20-30 см отступить надо, чтобы стоять свободно.

Следующая секция от мойки - ПМ, если нужна, если не нужна, просто секция.

Колонны техники нахуй не нужны, во-первых, они выглядят страшно, эти чёрные ебулдовины на уровне глаз, во-вторых, ими не пользуются. Даже супер-хозяйки которые любят готовить и часто готовить - редко пользуются духовками, это что-то про праздники раз в год. Ты, как я понимаю, богатый человек и готовить в принципе хуй будешь, тебе это тем более не надо. Духовка под плитку - одна секция - два прибора, в едином корпусе (лучше), или раздельно, если у тебя ОКР на варочную поверхность (хуже).

Вместо колонны - свободное пространство, на которое можно поставить тарелки и микроволновку. Если справа холодильник, то рядом с ним нужно поставить микроволновку.

Самое часто используемые приборы на кухне - это чайник и микроволновка, они должны быть в самом удобном доступе, а не духовки блять. Просто кто-то увидел когда-то это на омериканских картинках, теперь все лепят и повторяют друг за другом.
Аноним 03/12/24 Втр 15:54:59 344622 77
17332284688332.png 2208Кб, 2560x1768
2560x1768
>>344618
>прятать чайник в шкаф
Ты шиз? Выглядит максимально уёбищно и неудобно, какой-то плюшкинизм и нагромождение. Чайник должен стоять свободно на своём месте, его не надо ни от кого никуда прятать, как и прочие приборы, которые часто используются и тем более каждый день. Шкафы оставить только сверху, если не нужны, если не нужно, можно вообще без шкафов. Вся техника в доступе, розетки для техники и над рабочей зоной для миксеров и прочего.
Аноним 03/12/24 Втр 16:41:58 344636 78
>>344618
Ну нет. Во-первых боковина у микроволновки в таких случаях разрешается так. Ты прервал ее. >>343751
>больше вариантов для хранения наших любимых половников

И если уж делаешь короб под вытяжку, то сделай нормальный под круглую гофру. Во-первых он выглядит лучше. Во-вторых у тебя там потолок натяжной планируется или ГКЛ? Если натяжной, ему надо место, чтобы пристегнуться.
Да, на пол колонны больше. Это конечно хорошо, но пока что у тебя мойка в углу, а это плохо. Композиция - выстави камеру в гостиную. У тебя торчит по ее центру две колонны и все. Тебе нужно порталом или колонной все это дело объединить как-то. Или отсоединять кухню от колонн.

На тему того, что весь низ - ящики, я не согласен с ананасами. Ящики - хорошо. Но и полочки - тоже. Особенно для тяжелого.

>В общем в этом варианте получается ситуация что у меня угол все еще есть, но он довольно маленький (20см всего глубиной)

Сам по себе угол ок. И нужен план БТИ еще кстати, все забываю сказать, остался ли ты в пределах кухни. Тебе в выписке приложили.

>В общем кофемашину (с чайником) планирую запихать в шкаф слева, х3 на скок это удобно, что-то по типу пикрилов

В таком раскладе я бы оставил открытыми полками.

>в этом варианте с этим конеш проблема
С холодоса моем, потом на плиту. Ну в целом, ну мелкое неудобство.

>Что делать со стеной/углом сзади (выглядит как то незаконченно чтоли)
Портал и узкие контрастные (белые пусть или светлым шпоном против черного) шкафчики.
Аноним 03/12/24 Втр 19:50:41 344678 79
IMG-20241203-WA[...].jpg 194Кб, 1280x960
1280x960
Собрали мне вчера леруашную кухню. Наверно я самый похуистичный заказчик - выбирал 15 минут. Проектировали мне ее 10 минут. Теперь бросается в глаза несовершенство недостаточно высокого кожуха вытяжки, буду заказывать длинный черный кожух и как я понял это нихуя не дешево.
Аноним 03/12/24 Втр 19:58:21 344680 80
>>344678
> выбирал 15 минут
Уважаю.

>Проектировали мне ее 10 минут.
Всё стандартно, всё отработано, хуле там проектировать, не адронный колайдер с нуля строят.

Кухня выглядит заебись, стены не очень, терпеть не могу дерево.
Про кожух не понял. Типо трубу в коробок спрятать? Сделай сам из гипсокартона, зашпаклюй и покрась чёрной краской. Но вообще не вижу смысла трубу прятать в какой-то кожух, это ОКР.
А вот чёрная вытяжка подбешивает, лучше бы она была белой, как и кухня. Помещение светлое, чёрная ебулда ни к чему тут.

Но через неделю тебе на всё это станет глубочайше поебать, поэтому просто ничего не делай и всё.
Аноним 03/12/24 Втр 21:22:18 344698 81
Аноним 03/12/24 Втр 21:48:33 344702 82
24242424.PNG 743Кб, 1469x975
1469x975
23535566.PNG 446Кб, 1459x971
1459x971
photo2024-12-03[...].jpg 111Кб, 1280x960
1280x960
photo2024-12-03[...].jpg 127Кб, 1280x960
1280x960
Рожал этот проЭкт месяц, делать хочу сам, но может и закажу где-нибудь, если времени не будет. Секции вдоль, где мойка глубиной 80. Поперёк, где плита - 60. Рабочая зона от мойки до угла 160см, как же сука я её хочу, всю жизнь на столе 80см готовили, где ещё всё заставлено чайниками, кружками и кастрюлями. По правой стороне техника - чайник, кофемолка и прочее. Подрозетники просверлил под раскладку плитки, учитывая её узор. Пиздец я ОКРщик нахуй. Верхние шкафы пока делать не буду, я не знаю, что в них хранить, может полки заебашу, но они пыль собирают. До потолка точно не буду делать, ибо выглядит как склеп.
Аноним 03/12/24 Втр 22:04:26 344705 83
>>344680
>Но вообще не вижу смысла трубу прятать в какой-то кожух, это ОКР.
Возможно ты и прав, поживем увидим
>А вот чёрная вытяжка подбешивает, лучше бы она была белой, как и кухня. Помещение светлое, чёрная ебулда ни к чему тут.
В моей голове это хорошо сочеталось с мойкой, смесителем и плитой, но в реальности сильно выделяется да
>>344698
За кухню с наполнением и столешницей 118 тыс, доставка и сборка с еврозапилом столешницы 30 тыс, техника 75. Итого 223 тыс. Длина кухни 415 см.
Аноним 03/12/24 Втр 22:07:09 344706 84
>>344705
Цены пиздец канеш стали, помню времена, когда такая кухня стоила тыщ 20-30.
Аноним 03/12/24 Втр 22:25:25 344710 85
>>344706
Да не, такие раза в 2 меньше стоили. 6 лет назад брал в съемную квартиру кухню за 22 тыс, так там вообще пиздец был, ни столешницы ни фурнитуры толковой.
Аноним 04/12/24 Срд 00:03:26 344720 86
>>344622
>Ты шиз? Выглядит максимально уёбищно и неудобно, какой-то плюшкинизм и нагромождение.
Стараюсь как могу, анон, стараюсь. Это мой первый опыт – пробую разные варианты

> Если справа холодильник, то рядом с ним нужно поставить микроволновку.

устал писать уже (никто не читает историю) – микроволновку не хочу ставить. Хотя ставить микроволновку на столешницу это уже моветон (имхо).

> Ты, как я понимаю, богатый человек и готовить в принципе хуй будешь, тебе это тем более не надо.

был бы я богат – на двачах кухню бы не дизайнил кек (хотя если ты от слова Бог идешь – вполне может быть)

> Даже супер-хозяйки которые любят готовить и часто готовить - редко пользуются духовками

видимо у нас разный опыт – я пользуюсь духовкой довольно часто (именно как духовкой, а не микроволновкой), поэтому иметь ее на уровне рук – для меня положительный фактор

В любом случае спасибо за конструктивный ответ – добра
Аноним 04/12/24 Срд 00:13:54 344721 87
>>344636
>Тебе нужно порталом или колонной все это дело объединить как-то. Или отсоединять кухню от колонн.
> Портал и узкие контрастные (белые пусть или светлым шпоном против черного) шкафчики.
годная идея – жди следующий макет :D

>>344678
>Собрали мне вчера леруашную кухню
>>344678
>Проектировали мне ее 10 минут
мое почтение (почему я решил себе поебать мозги сам пока не пойму). Как заметили другие аноны – с вытяжкой и вправду что-то не то

>>344702
>Рожал этот проЭкт месяц, делать хочу сам, но может и закажу где-нибудь, если времени не будет.
Как планируешь материал считать / распиливать и тому подобные работы (как я понял это заебно и сопоставимо с кухней на заказ)
Аноним 04/12/24 Срд 00:40:58 344722 88
>>344721
>Как планируешь материал считать / распиливать и тому подобные работы (как я понял это заебно и сопоставимо с кухней на заказ)

Тут я тебе не советчик, мне ещё до кухни как до Китая.
На заказ такая обойдёт тыщ в 500, что очень дорого для меня.
Столешницу сделаю из мебельного щита, самый дешёвый вариант. Есть где купить фанеру дёшево и хорошего качества. Скорее всего соберу каркас, и сделаю там полки и перегородки из фанеры. Фасадные части может закажу. Есть соблазн заказать весь роспил из ЛДСП, чтобы и кромки там, хуёмки всё сделали, но это тоже будет дорого, да и внутри мне не нужна красота. Когда подойдёт время, тогда посчитаю и выберу, что дешевле и не сильно затратно по времени. Программ для расчёта кухонь вроде дохера всяких.
Аноним 04/12/24 Срд 14:01:01 344776 89
>>344720
>пользуюсь духовкой довольно часто (именно как духовкой, а не микроволновкой), поэтому иметь ее на уровне рук – для меня положительный фактор
Только сделай её ниже сантиметров на 20 - на уровне столешницы вытаскиваемые противни слишком высоко, ппц неудобно как и, фактически, ты их на грудь принимаешь с ненулевой вероятностью опрокинуть на себя.
Аноним 04/12/24 Срд 14:03:10 344778 90
>>344722
>Фасадные части может закажу. Есть соблазн заказать весь роспил из ЛДСП, чтобы и кромки там, хуёмки всё сделали, но это тоже будет дорого, да и внутри мне не нужна красота.
Так и сделал - фасады из Леруа, там же ЛДСП и распил у них же по моему чертежу. Но в конкретно этом Леруа распиловщик суперответственный и попал миллиметр в миллиметр. В другом обрезал столешнищу - там он промахнулся на 5 мм, потом он же и подрезал уже в размер.
Аноним 13/12/24 Птн 04:35:32 345610 91
>>344621
>>344622
Вы нахуя духовой шкаф вниз запихать пытаетесь?
Аноним 13/12/24 Птн 11:14:11 345630 92
>>345610
Нахуя ему место занимать в середине и мозолить глаз. Когда вместо него можно использовать рабочую поверхность.
Аноним 13/12/24 Птн 15:36:18 345659 93
>>345610
А зачем он там нужен сжирать пространство. Лучше чайник поставить на его место, которым я пользуюсь 20 раз в день.
Аноним 15/12/24 Вск 21:24:31 345969 94
2024-12-15 19.2[...].jpg 104Кб, 1280x970
1280x970
2024-12-15 19.2[...].jpg 112Кб, 1280x752
1280x752
2024-12-15 19.2[...].jpg 83Кб, 1280x848
1280x848
Оп все еще на связи, дошли руки накидать еще вариантик
Аноним 15/12/24 Вск 23:21:54 345991 95
>>345610
По привычке как на плите у дедов
>>345659
Не в середине, а на по верхнему уровню столешницы. Чтобы не нагибаться в три погибели.
Аноним 15/12/24 Вск 23:38:05 345994 96
>>345969
Заебок, мойку отодвинь от края на 20 см. Так ты будешь стоять полубоком возле неё.
Аноним 16/12/24 Пнд 04:07:58 346024 97
Самое большое дрочево это высота столещницы. Я не видел ни одной кухни где это было бы сделано не для китайцев, детей и карликов. Мне нужно например минимум 110 см высоты, чтобы было удобно.
Аноним 16/12/24 Пнд 12:17:30 346065 98
>>346024
У тебя рост 210?
Там по эргономике всё давно рассчитано. Для карликов 175- - 85 см, для каланчей 185+ - 95 см. 85-95 см - это стандартная высота, все хуярят под неё один размер с подгонкой ножками, а если надо выше или ниже - это уже, как индивидуальный заказ будет за много денег, т.к. СЛОЖНА.
Аноним 16/12/24 Пнд 14:07:37 346080 99
>>345969
Not bad. Но правило треугольника "холодильник->мойка->плита не учтено". Постоянно будет хождение мимое плиты к мойке от холодоса. Так что или холодос к раковине, где у тебя ниша, либо раковину и плиту поменять местами - и, в этом случае, как уже анон сказал - отодвинуть сантиметров на 20 от угла.
Аноним 16/12/24 Пнд 14:09:39 346081 100
>>345991
> Чтобы не нагибаться в три погибели.
Доставать небезопасно, т.к. на этой высоте противень может наклониться вперёд, на достающего. В случае посередине - противень всегда ниже и не опрокинется точно.
Аноним 16/12/24 Пнд 14:34:06 346086 101
>>346024
так закажи специально для себя
>>346081
безопасно, наоборот, нужно немного склониться/нагнуться чтобы достать противень, но нет необходимости сгибаться сильно или вставать на колено/садиться на корты
Аноним 16/12/24 Пнд 15:49:57 346096 102
>>346086
Если на уровне столешницы - нижний край духовки на высоте около 95см. А противень ещё выше, около 120 см. Как раз наклонятся не надо вообще, а сам противень стремится опрокинуться наружу. К сожалению, два раза наблюдал такое, у меня духовой шкаф ниже столешницы на 30 см стоит по этой причине - и приходится немного нагибаться. Но сейчас вообще думаю зря так сделал - надо было херануть под варочную панель, как у дедов - и оно реально удобно. А так духовкой редко пользуюсь, а занимает она место, на котором лучше поставить что-то более часто используемое.
Аноним 16/12/24 Пнд 16:04:26 346097 103
>>346096
>Если на уровне столешницы - нижний край духовки на высоте около 95см
Наоборот, верхний край духовки же. На уровне пояса или чуть выше.
Аноним 16/12/24 Пнд 16:22:06 346100 104
>>346097
А, соррян - неправильно понял. Ну, тоже вариант, коненчо.
Аноним 16/12/24 Пнд 20:24:15 346147 105
Всем привет, присматриваю квартиру на вторичке, продают норм вариант, все есть, но без кухни. П44 двушка, скажите, примерно, на какой диапазон рассчитывать, чтобы можно было сторговать за покупку кухни? Тысяч 200-300? Заранее спасибо!
Аноним 16/12/24 Пнд 20:33:00 346148 106
ЗАЧЕМ ВЫ БЕРЕТЕ ЭТОТ ОПИЛКОКАЛ? ДЕЛАТЬ ЛИ МНЕ КУХНЮ ИЗ ФАНЕРЫ?
Аноним 16/12/24 Пнд 21:11:11 346152 107
>>346148
>ОПИЛКОКАЛ
Вообще поебать.
Аноним 16/12/24 Пнд 21:59:30 346159 108
Аноним 16/12/24 Пнд 22:10:02 346160 109
Аноним 16/12/24 Пнд 22:10:31 346161 110
>>346159
А с котами что делать?
Аноним 16/12/24 Пнд 22:15:10 346163 111
>>346161
Пожарить с лучком.
Аноним 17/12/24 Втр 10:59:37 346206 112
Special-Branch-[...].jpg 239Кб, 900x1274
900x1274
Кто шарит в фурнитуре, какой АНАЛог ящиков полного выдвижения блюм леграбокс для нищих лучше выбрать?

unihopper vs firmax vs boyard vs GTV vs макмарт
Аноним 17/12/24 Втр 11:05:07 346210 113
>>346206
>boyard
Это из Леруа у меня уже лет 6 или 7 работает без проблем. Доводчики тоже не развалились.
Аноним 17/12/24 Втр 11:10:33 346212 114
>>346210
Это просто популярный китайский бренд.

У леруа свой саббренд есть Delinia Id, который ток у них.
Аноним 17/12/24 Втр 11:26:14 346224 115
>>346065
>У тебя рост 210?
Даже не близко. Обычные 188см.

>Там по эргономике всё давно рассчитано
Расчитано мамкиными урбанистами было 60 лет назад, что тебе больше 13 кв. м. не нужно. В пизду расчёты этих поехавших жидомасонов.

>это стандартная высота
Я же говорю, для детей, китайцев, карликов и тяночек-полторушек.

>>346086
>так закажи специально для себя
Ты удивишься, но в 9 из 10 места разводят руками и не могут делать выше чем 85 см.
Аноним 17/12/24 Втр 12:10:46 346237 116
>>346212
>У леруа свой саббренд есть Delinia Id
да мне понравилась кухня этой марки, за свои деньги топ.
Аноним 17/12/24 Втр 12:18:48 346239 117
NDLEfFetJvk.jpg 521Кб, 1280x1280
1280x1280
>>346224
Встраиваемая техника стандартная, модули тоже (особенно если используешь ящики у которых стандартные размеры, типа леграбоксов).
В результате высота будет увеличиваться за счет увеличения порожнякового расстояния цоколя.
Ну и понятно, что дальше фартук не сделаешь 40 см, а значит и верхние модули сдинутся вверх, до которых такой карлан как ты будет прыгать с табуреточки.

Аноним 17/12/24 Втр 13:38:15 346255 118
>>346212
в курсе. Просто обозначил место, в котором купил.
>>346065
>85-95 см - это стандартная высота
Это понятно, но реально неудобно. 110 см в самый раз, даже жене 165 см удобнее реально стало.
Понятно, что ножками выводят эту высоту - фасады и техника стандартные. У меня ножки получились большие, сделал там выдвижные ящики для всяких овощей, сковородок и прочего подобюбного.
Аноним 17/12/24 Втр 13:46:11 346258 119
16773942132270.jpg 36Кб, 265x300
265x300
>>346255
>сделал там выдвижные ящики для всяких овощей, сковородок и прочего подобюбного


Каким образом ты в цоколе сделал ящики, там стоевых нет?
Аноним 17/12/24 Втр 14:53:51 346268 120
Аноним 17/12/24 Втр 15:28:02 346278 121
>>345969
А нахера столько шкафов?
Аноним 17/12/24 Втр 16:08:27 346280 122
Аноним 17/12/24 Втр 21:49:51 346319 123
17338562770330.png 29Кб, 217x148
217x148
>>346268

>бесполезный узенький костыль на колесиках болтающееся на полу как кусок говна по цене ЛЕГРАБОКСА

рассмешил меня содомит
Аноним 17/12/24 Втр 22:26:05 346330 124
>>346319
Совмещаешь с чщиком, который выше - и получается нормальный вместительный ящик. Не, если у тебя кухня как у дидов - тут вопроов нет, конечно. И шкафы чтобы верхние были обязательно.
Аноним 18/12/24 Срд 10:18:20 346358 125
>>346330
>И шкафы чтобы верхние были обязательно.
В чём претензия к верхним шкафам, если они не со стеклом?
Аноним 18/12/24 Срд 11:29:01 346369 126
>>346319
>>бесполезный узенький костыль на колесиках болтающееся на полу как кусок говна
для дылдоблядей только костыли на костыли, иначе только пользоваться стандартными решениями для среднестатистических людей. либо платить больше, как в авиакомпаниях за места с бОльшим местом для ног.
>по цене ЛЕГРАБОКСА
проблема низких заработков дылдоблядей
Аноним 18/12/24 Срд 13:17:24 346415 127
>>346224
>Расчитано мамкиными урбанистами
Два чаю. Просто резать на рабочей поверхности неудобно - приходится гнуться к доске, а уж если нужно что-то в раковине промыть - пиздец, приходится аж сука нырять туда.
Аноним 18/12/24 Срд 14:41:47 346455 128
>>346415
Вот-вот, не я понимаю что тут сидят рассуждают про «норму» либо сосницкие которым мамка готовит или просто зумерки-переростки у которых кухня для галочки и они там максимум дошик готовят или что-то в микроволновке разоагревают, но стоит хотя бы по минимуму что-то готовить, то охуеваешь постоянно было в полусогнутом положении.
Аноним 18/12/24 Срд 14:49:42 346461 129
image.png 1019Кб, 800x531
800x531
image.png 6296Кб, 2500x1215
2500x1215
Приклеиваю дубовый шпон на кромку фанеры. Покрываю маслом. Покрываю лаком. Или лучше заказать в леруа готовую?
Аноним 18/12/24 Срд 17:54:42 346577 130
>>346358
Рассадник неиспользуемого барахла.
Аноним 19/12/24 Чтв 03:51:39 346657 131
>>346268
О, первый раз такую штуку вижу, это прям нормальное решение или есть подводные? Я тоже довольно высокий поэтому хотел поднимать повыше тоже.
Аноним 19/12/24 Чтв 13:29:40 346699 132
>>346657
У меня такая кухня уже лет 6 или 7.Ничего не отвалилось, работает отлично. Порядок надо соблюдать, конечно, в таких ящиках.
Аноним 19/12/24 Чтв 20:52:46 346720 133
>>346657
Если, кстати, у тебя дети есть - тот выдвижной ящик в "подвале", что около мойки - можешь сделать в качестве ступеньки, что мелкие могли до крана дотянуться.
Аноним 20/12/24 Птн 02:32:34 346781 134
>>346699
> У меня такая кухня уже лет 6 или 7.Ничего не отвалилось, работает отлично

>>346720
> можешь сделать в качестве ступеньки, что мелкие могли до крана дотянуться.

спасибо, это по-видимому самое недооцененное решение на кухне
Аноним 20/12/24 Птн 14:06:08 346843 135
>>346781
тот, что ступенькой будет - там другая фурнитура нужна, чтобы он массу держал того, кто на неё станет. У Blum есть такое, но ценник приличный, мне такое сделали отдельно и в другом месте по гуманной цене . Верхних ящиков у меня нет, но то, что сделали - легко держит 70 кг.

А решение реально недооценённое. Даже тут выше есть непонимание по этому поводу.
Аноним 24/12/24 Втр 05:46:55 347277 136
>>346843
У меня недопонимание только нахуя ты вообще делал цоколь чтобы потом в него инвалидные ящики вхуяривать.
Делай сразу кухню в пол без опор.
Аноним 24/12/24 Втр 19:45:52 347370 137
>>347277
Потому что это стандартная кухня на ножках. В силу высоты - ножки получились не 100 мм, а побольше - глупо такому месту пропадать. Кухня в пол - идея прекрасная, но стоять близко к столешнице не получится - нет места для ног. Или ты думал, что цоколь для красоты делают?
Настройки X
Ответить в тред X
15000
Добавить файл/ctrl-v
Стикеры X
Избранное / Топ тредов