Главная Юзердоски Каталог Трекер NSFW Настройки

Дизайн

Ответить в тред Ответить в тред
Check this out!
<<
Назад | Вниз | Каталог | Обновить | Автообновление | 9 6 6
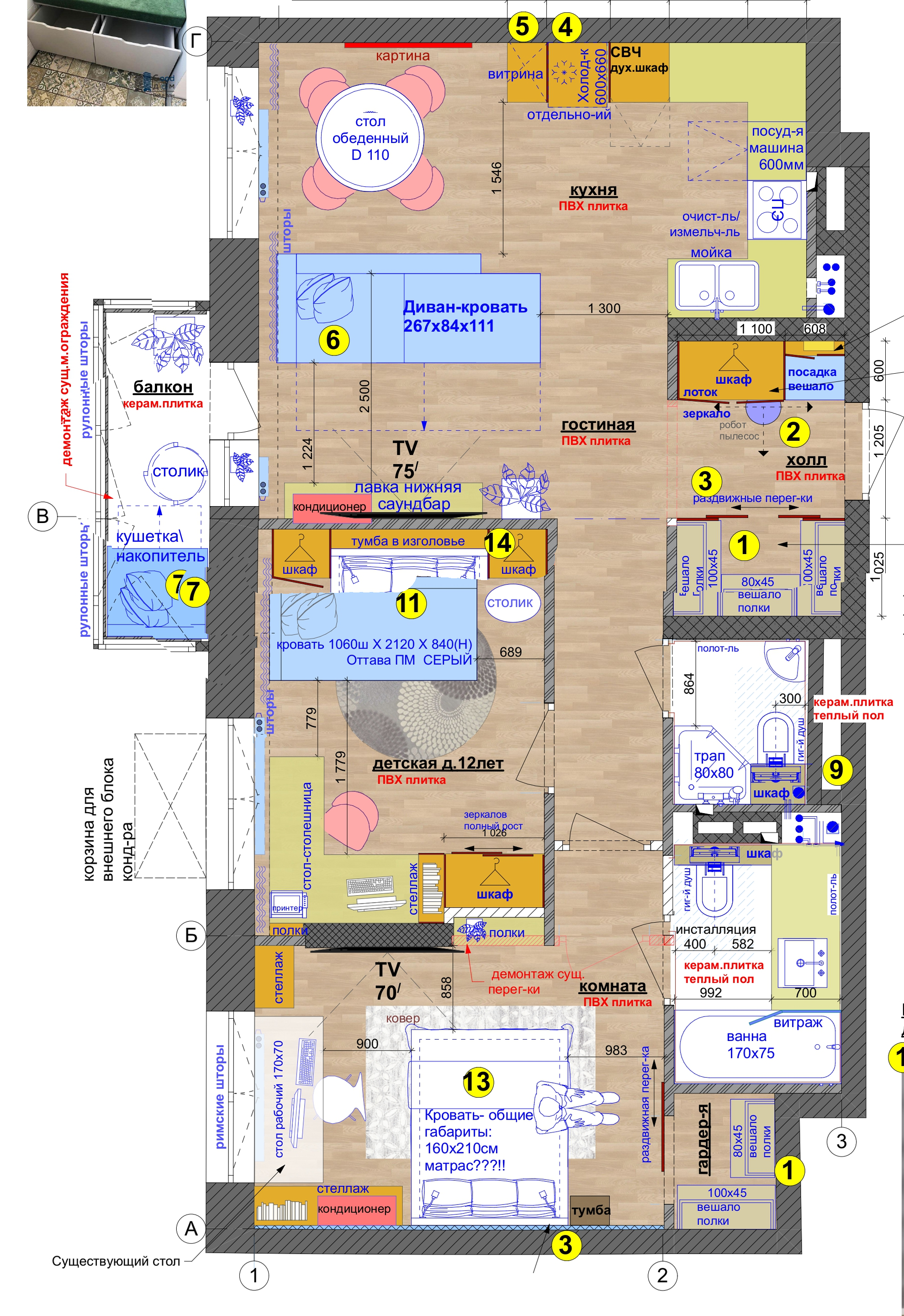
ПланировОчка Дратути 14/01/26 Срд 21:07:57 92496 1
Вариант 3page-0[...].jpg 6262Кб, 3508x4961
3508x4961
Вариант 2page-0[...].jpg 6440Кб, 3508x4961
3508x4961
Вариант 1page-0[...].jpg 7019Кб, 3508x4961
3508x4961
Дратути. Помогите, пожалуйста, выбрать оптимальный дизайн для квартиры, семья из 3х человек
Татьяныч 18/01/26 Вск 20:44:35 92501 2
image.png 5276Кб, 1979x2881
1979x2881
>>92496 (OP)

Я бы делал большую мастер-спальню из "вариант 2" и кухню как "вариант 1"
Татьяныч 15/02/26 Вск 12:18:43 92548 3
>>92496 (OP)
Плохо уже на этапе планировки. Судя по "чертежам" сделал старательный студент за 300 руб. метр.

Квартиры в 2д вообще не планируют. Это вообще типичный быдлодизайн имени ЛДСП, да еще и не сказать чтобы дешевый такой уж.

>пожалуйста, выбрать оптимальный дизайн для квартиры, семья из 3х человек
Ты не стал оплачивать мои услуги, а занес деньги криворучке подешевле. А мне из вот этого проект рисовать и исправлять сидеть? Чтобы что? По-моему это уже наглость. Оптимальный вариант - перерисовать все нахрен по-человечески. Зато я ответил честно.
Татьяныч 07/03/26 Суб 20:38:50 92609 4
>>92496 (OP)
Почему строят квартиры с двумя толчками по соседству, это же бред? У меня тоже квартира с двумя, но второй хотя бы в мастер спальне находится, и то не хочу его под туалет выделять.
Татьяныч 08/03/26 Вск 00:49:49 92610 5
изображение.png 129Кб, 1229x949
1229x949
>>92609
Два сан. узла делают не из-за расстояния. А чтобы не чистить зубы в том же совмещенном толчке, в котором только что посрал супруг, например. Или чтобы срать одновременно.

Потому что привязывают их к одному стояку.

С стояками в России беда. Ну не хотят платить нормальному дизайнеру, хотя это добавило бы к стоимости квартиры от силы несколько тысяч рублей (этажи одинаковые почти, корпуса тоже модульные). Иногда платят, как например Легенда или ПИК, но лучше бы это совки проектировали, блять: на инсоляцию насрать (сделать в спальне площадь остекления в 2-3 раза больше, чем в бОльшей гостиной - легко), комнаты такого размера, что кровать еле влазит (зато на планириовке от застройщика выглядит красиво). Вот, например, двушку с пикрила ПИК кроили так, что в соседнюю спальню проем получился под дверь 700. Ну в гостиной конечно одно окно, лол. Если на плане от застройщика кровать сделать размером с матрас (а то и меньше) и не показывать напольные конвекторы, то комната выглядит иначе. ИРЛ только это так не работает.

P. S.
Вон у хомячка тоже высралась "удобная" кровать. 1600х2100. Хотя матрас 1600 - это уже квинсайз. Реальные кровати квинсайз в основном 1800х2200, кингсайз - 2000х2200. Дизайн, блять, уровня "насрать мебель в прямоугольник, чтобы все влезло". И столы стандартные 1200, а не 1100 на 4 персоны и выше.

Глазам больно, блять. Про то, что у кондиционеров есть дренаж, который желательно бы сливать самотеком без помпы (причем в канализацию), автор этих картинок вообще не знает. Ну будут ведро ставить, чо. А квартира обычная, угу. Пихуй. Просто пихуй.
Татьяныч 09/03/26 Пнд 23:02:21 92613 6
>>92496 (OP)
Оп, ну как у тебя дела там?
Татьяныч 13/03/26 Птн 11:57:43 92619 7
Screenshot2026-[...].jpg 131Кб, 952x538
952x538
>>92610
>Два сан. узла делают не из-за расстояния. А чтобы не чистить зубы в том же совмещенном толчке, в котором только что посрал супруг, например
А нахуя вообще делают совмещенные санузлы? Почему в совковых квартирах ванна и толчек разделены, а сейчас какую-то неудобную хуиту выдумывают во всех новостройках, чтобы генерить гаввах с покупах?

Даже в зассанных общагах, где живут маргиналы, санузлы раздельные. А тут условно средний класс(которого в рф нет, на самом деле) тужится пыжится, выплачивая еботеку - чтобы чистить зубы или принимать ванну под пердежь и запах говна - срущего рядом сожителя. И это никак экономическими причинами нельзя объяснить, ощущение, что намеренно устраивают какой-то геноцид психического здоровья, или искусственный отбор терпил.

>Или чтобы срать одновременно.
Если только. И то, чтобы проблема очередей в толкан была ощутима - нужно, чтобы в хате жило от 5 человек примерно. Да, очередь может появиться и при двух и при трех человеках, но при совмещенном санузле - очередь сразу умножай на 1,5-2, потому что кроме желания посрать - у людей еще будут желания почистить зубы, умыться, вымыть руки. И что, на кухню для этого идти каждый раз? И вообще блять это что, трасса нахуй, какие совмещенные санузлы, какие в жопу очереди, человечество что, ебанулось?

Я больше ахуеваю с того, что скоту скармливают совмещенные санузлы под предлогом "удобства" и экономии площади 1м2, и 4м2 материалов на стену. Что в пересчете на стоимость современных человейников - просто несущественная хуйня. Причем, даже скот это говно коупит и защищает тем, что якобы стиралку будет куда поставить. Вы че, ебанулись блять?

И застройщики вместо того, чтобы ПРОСТА И БЕЗ ЗАДНЕЙ МЫСЛИ делать раздельные санузлы, прогревают на два совмещенных сральника, преподнося это как предмет роскоши и удобства. Сами создали проблему - сами продают говнорешение.

Я реально, будто, в идеократию какую-то попал, пиздец. Почему люди считают совмещенные санузлы нормальными, почему относятся к этому спокойно, объясните мне. Это же противоречит самому естеству, самой человеческой природе. Мы же не срем на кухне, мы же не в хлеву живем, как скот, живем(пока что).
Татьяныч 13/03/26 Птн 12:01:02 92620 8
Я могу понять совмещенный санузел исключительно в нищих студиях, где предполагается изначально, что там будет жить только один человек, да и то даже ему будет тесновато, психологически дискомфортно и неудобно. Очередей посрать и почистить зубы там не будет.

Но когда я в двухкомнатных и трехкомнатных хатах в новостройках на планах вижу совмещенный санузел - мне становится физически хуево.

Неужели людей уже настолько оскотинили?
Татьяныч 15/03/26 Вск 00:40:13 92623 9
>>92619
>Почему в совковых квартирах ванна и толчек разделены
Хуже советского очка, еще и без рукомойника, просто нет. Жопу не помыть, руки не помыть. Зато толкан раздельный. СССР много что делал нормально, но много что пролюбил.

>чтобы проблема очередей в толкан была ощутима - нужно, чтобы в хате жило от 5 человек примерно
Двух человек достаточно, чтобы захотелось иметь собственный сральник.

>Да, очередь может появиться
Не может. Стандартно каждой спальне положено по сан. узлу. В лухари +1 гостевой. Делать их раздельными смысла нет. Но желательно конечно проходными, а туалет закрывать своей дверью.

>Я реально, будто, в идеократию какую-то попал, пиздец. Почему люди считают совмещенные санузлы нормальными, почему относятся к этому спокойно, объясните мне.
Потому что ты не пожил в разном.

Два совмещенных сан. узла удобнее, чем просто раздельный. Не обсуждается. И площадь они занимают не сильно большую.

Проблемы современных новостроек вообще не в этом. А в том, что застройщики заебали расставлять мебель так, как она не влезет. Заебали показывать везде на планах стены 50 мм, уменьшать мебель и проч. Реальные двушки в ПИКе - это в основном нормальные человеческие студии. Да, у хрущей была та же площадь. Но у хруща комнаты-вагоны, маленькие окна и никаких внутрипольных/напольных конвекторов в полуметре от стены. Но это все обьяснимо одним словом - продажи.

>ПРОСТА И БЕЗ ЗАДНЕЙ МЫСЛИ делать раздельные санузлы
>тужится пыжится, выплачивая еботеку - чтобы чистить зубы или принимать ванну под пердежь и запах говна - срущего рядом сожителя. И это никак экономическими причинами нельзя объяснить, ощущение, что намеренно устраивают какой-то геноцид психического здоровья, или искусственный отбор терпил

Застройщики вообще тебе только канализацию подводят и воду. Планировки же важны, потому что диктуют мокрые зоны.

>>92620
Ну короче провокация на холивар и какой-то бред.
Настройки X
Ответить в тред X
15000
Добавить файл/ctrl-v
Стикеры X
Избранное / Топ тредов